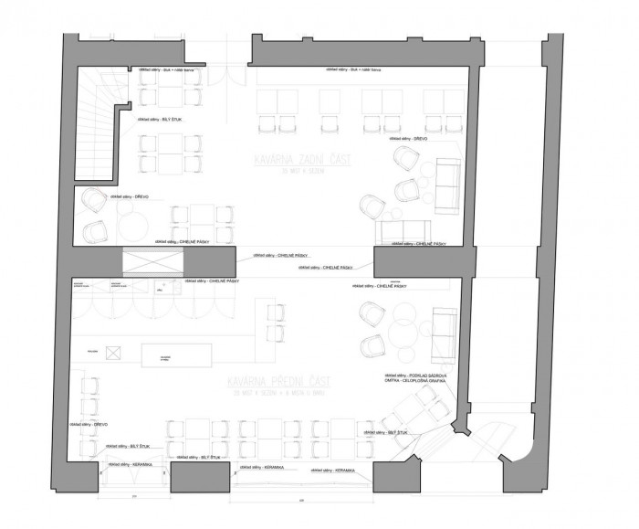
V krásném činžovním domě v přilehlé ulici u hlavního historického náměstí je umístěna nová realizace kavárenského prostoru. Jedná se o krásnou dispozici dvou velkých místností propojených středovým průchodem. Zadání bylo navrhnout osobitou kavárnu, která bude otevřená jak pro mladší tak pro starší generace.

Při návrhu jsme vycházeli z typologie místa a struktur, které nám původní ale velmi zdevastovaný dům nabízel (fabiony, původní topení, fragmenty cihel a struktur…) a tyto detaily jsme se snažili maximálně obnovit a navrátit tak místu původní charakter. Nové prvky jasně doplňují tento „historismus“, tedy nesnaží nijak napodobovat, jsou naopak protikladem (bílý barový pult, židle, stoly…).

Chtěli jsem aby kavárna maximálně promlouvala s jemnou symbiózou s Riegrovou ulicí, na které je umístěna. Široký bulvár, pěší zóna, hodně světla, to vše nás navedlo k tomu udělat maximální okenní otvory. Středová část se bude v letním období zcela otevírat díky shrnovacím dveřím, kavárna se tak stane součástí uličního prostoru, a to jemnou nenásilnou formou.

V interiéru jsou jednoznačně nejvýraznějším prvkem černobílé kachličky, které jsou použity jak ve vlastní kavárně, tak v zázemí. Jejich tvrdý design byl zvolen záměrně, a to především z důvodu upoutání pozornosti kolemjdoucího – každý, kdo nyní prochází okolo, uvidí jako první tmavé rámy a právě ony graficky velmi výrazné obklady, až posléze, když dojde čelně před kavárnu, objeví kouzlo světlého prostoru.

Všechny nové prvky byly navrženy a realizovány s místními firmami.

Generální partner
Hlavní partneři