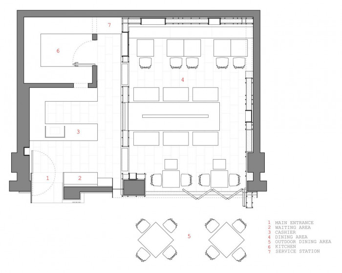
Nudlová polévka je jedním z typických jídel, které si můžete koupit na ulici po celé Číně. Zatímco řada prodejců láká své zákazníky na dokonalou chuť svých nudlí, někteří se rozhodli jim zážitek z dobrého jídla okořenit ještě vytříbeným designovým prostředím. Dobrým příkladem je LongXiaoBao, nováček, který se staví na vlastní nohy v městě Changsha s ambicí šířit místní Shaoyang styl přípravy rýžových nudlí do zbytku Číny.

Aby jejich první restaurace získala jasnou identitu, požádala společnost LongXiaoBao Lukstudio o návrh originálního interiéru. Tvůrčí tým ve svém originálním návrhu vychází z tradice výroby nudlí, kterou transformuje do prostorového řešení restaurace, kde ocelová lana a prostorové konstrukce znázorňují právě hlavní komoditu restaurace – rýžové nudle.

Usídlený podél nákupní promenády poblíž řeky Xiangjiang, „Noodle club“ na sebe klidně a tajemně upozorňuje skrze výkladní skříň z litého betonu se strukturou bambusu. Dominantou celého vstupu portál plátovaný ze zrezivělých ocelových panelů, výkladec je pak orámován sítí z kovového lešení.

Při příchodu do interiéru vítá zákazníky barový pult s motivem litého „bambusového“ betonu, se kterým jsme se setkali již na fasádě. Při postupu interiérem se díky transparentnosti ocelových sítí postupně otevírají další prostory a vrstvy. Původní zděná stěna je obalená boxem z kovových prutů, do jejichž rastru jsou vloženy dřevěné boxy pro vystavení tradičního čínského porcelánu – nápaditý prvek umocňující kontrast tradice a moderního přístupu. „Nudlové“ dráty pak tvoří i hustou zavěšenou síť u stropu, která umocňuje efekt použitého osvětlení. Vyvážení původního rustikálního interiéru s těmito reflexními prvky vytváří poetickou představu stolování pod „nudlovým“ baldachýnem.

Hrou s dualitou mezi původním a novým, rustikálním a rafinovaným, východní a západní tradicí Lukstudio zavádí přechod mezi konceptem rychlého občerstvení a stravováním ve výjimečném designovém prostředí. Restaurace „Noodle Rack“ se odlišuje od stigmatu kýče rychlého občerstvení „z domu na ulici“ na každé ulici Číny. To dokazuje, že čínské restaurace mají potenciál být renovovány do prostorů sloužících ke shromažďování srovnatelně s novým trendem kaváren.

www.lukstudiodesign.com

Fotografie: Peter Dixie for LOTAN Architectural Photography (www.lo-tan.com/)

  • Autoři: Christina Luk
  • Ateliér: Lukstudio
  • Země: Čína
  • Realizace: 2015
  • Město: Changsha
  • Ulice, číslo: W1003, Wanda Plaza, Zhongshan Road No. 589
  • PSČ: 410000
  • Datum projektu: 2015
  • Realizace: 2015
  • Užitná plocha: 50.00m2
Generální partner
Hlavní partneři