TOITO architekti - Byt P
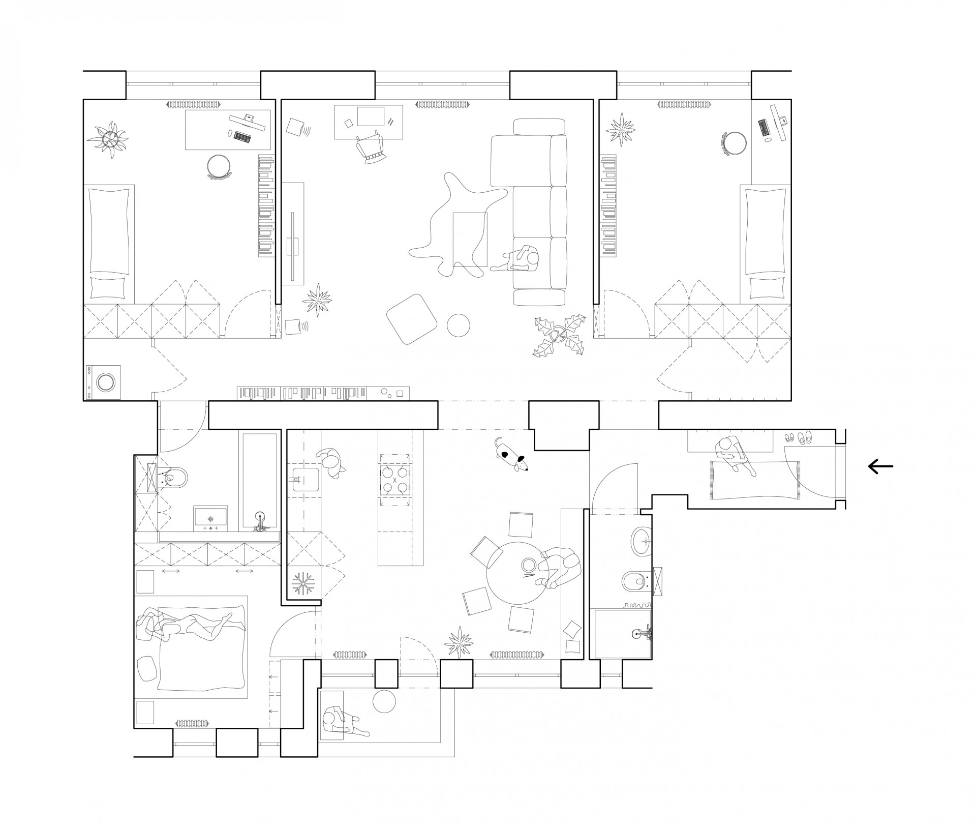
Toto je byt pre štvorčlennú rodinu v centre Bratislavy. Navrhli sme nový preplávajúci pôdorys s dostatkom úložných priestorov. Čistý byt ponechávame na zabývanie samotnej rodine.
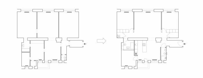
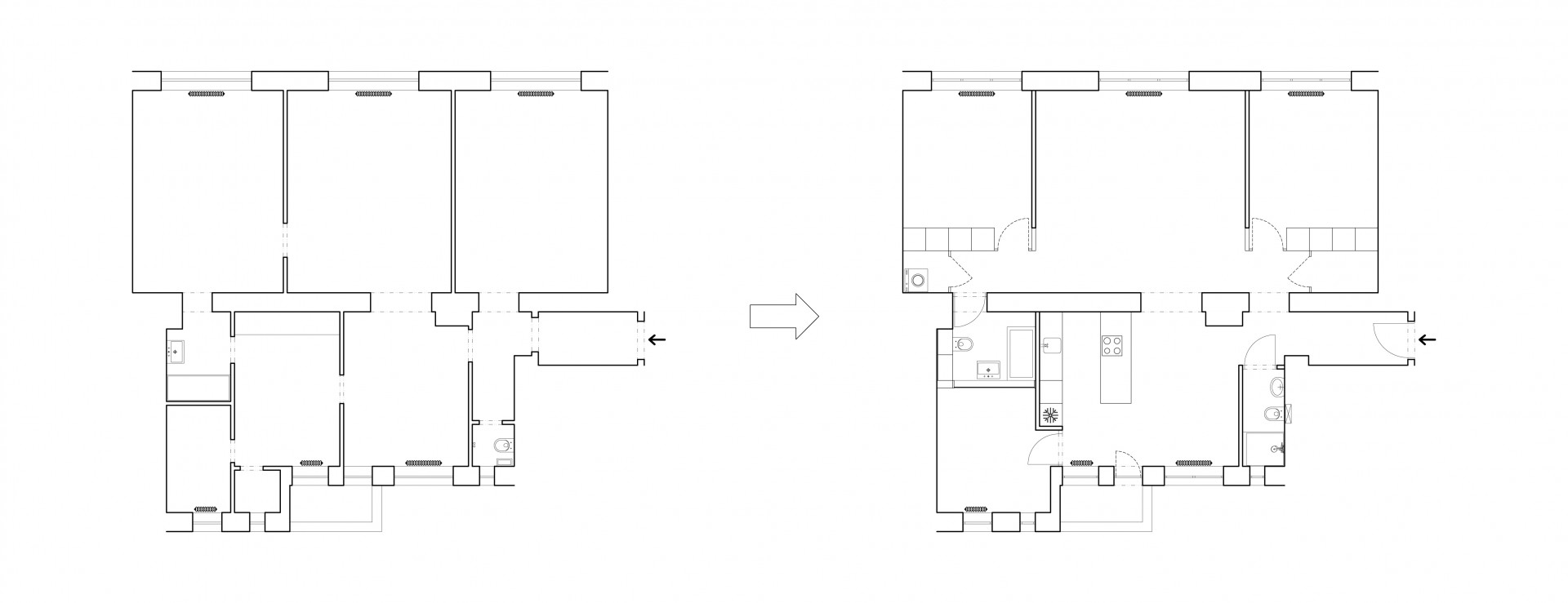
Bytový dom v mestskom bloku bol postavený v roku 1947 z ruín mesta. Zbombardovaná rafinéria „Apolka“ (1944) bola blízkym zdrojom stavebného materiálu. Tehlové steny majú viacero odtieňov. Na niektorých sú odtlačky rúk a topánok. 2019 prichádzame do bytu s dispozíciou, ktorá delí. Každá izba je samostatný (po)byt.
Nový návrh je doslova holobyt, bez nároku na zásahy do interiérového dizajnu. Sofa, jedálenský stôl, mobiliár, doplnky boli tabu. Nosnou témou sú stavebné úpravy a minimalizácia materiálov s jasným odkazom na dom a jeho históriu. Materiály sú zámerne konvenčné, sledujú jednotenie. Šatníky a sklady sú súčasťou stavebného interiéru.
Dispozícia je postavená na preplávajúcej dennej časti s nepravidelným tvarom. Nosná stena v strede domu nedelí, spája. Zálivy a neukončené priečky centrum bytu nafukujú, denná časť strácaj jasné hranice, je košatá. Nočná časť je roztrieštená po okrajoch. Izolácia izieb vytvára súkromie a pohyb zároveň. Rodičia sú skrytý v izbe za kuchyňou, prví pri rannej káve.
- Autoři: Katarína Príkopská, Ivan Príkopský, Tomáš Szöke
- Spolupráce: Karol Volf, Veronika Vaňová
- Země: Slovensko
- Realizace: 2020
- Město: Bratislava
- Datum projektu: 2019
- Realizace: 2020
- Užitná plocha: 111.00m2
- Stavba: http://www.akopreseba.sk/
- Stolárska výroba: https://www.facebook.com/L.Savagewoodwork.sk/
- Osvetlenie: https://casca.sk/
Mohlo by vás zajímat