TOITO ARCHITEKTI - Mladá rodinná usedlost

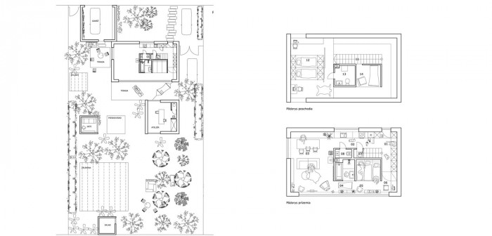
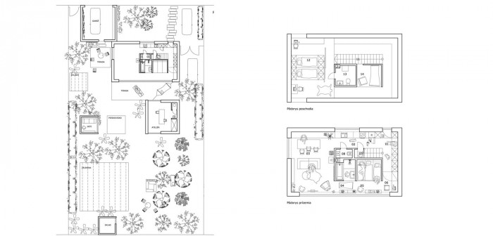
Toto je malý rodinný dom pre štvorčlennú rodinu v Budmericiach. Parcela sa nachádza v novej štvrti rodinných domov v blízkosti historického parku. Klient bol už v zadaní naklonený otvorenému priestorovo-zložitejšiemu riešeniu. Výsledkom je návrh súboru menších objektov - usadlosť. Dom s ateliérom ako prvé dva objekty, naseduje garáž, domček pre deti, záhradný sklad.

Objem domu je čistá murovaná hmota s pultovou strechou. Do domu je vložené teleso z murovaných tehál a masívneho dreva. V ňom sa nachádza komora, wc, kúpeľne, spálňa, čitáreň, schodisko. Okolo vstavby sa v otvorenom kruhu odvíja vstup, kuchyňa, denná časť, nočná časť rodičov, šatník a opäť vstup. Na poschodí je priestor pre deti. Zhora sledujú kuchyňu a tak trochu rodičov. Vložený živelný objekt do nudného obalu dáva do pohybu udalosti dňa. 

Foto: EARCH

Foto: EARCH

Generální partner
Hlavní partneři