Tomáš Petrášek (DEBYT) - Čajovna v Blatné

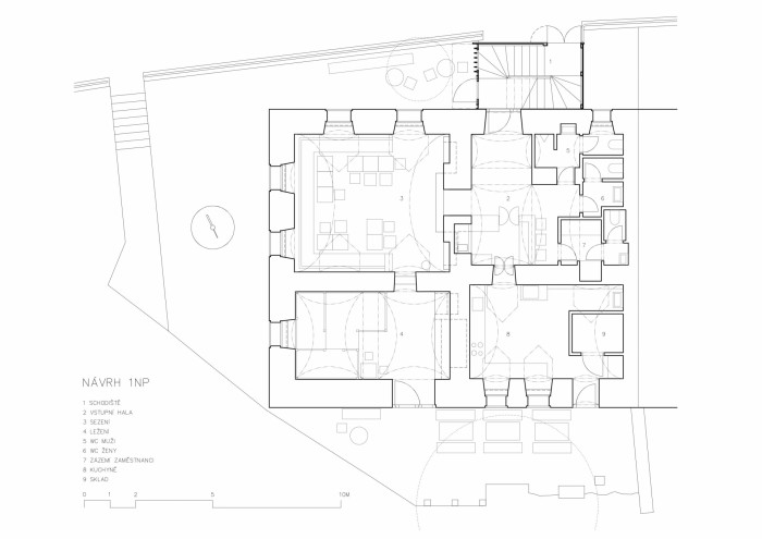
Rekonstrukce bývalého měšťanského pivovaru v Blatné zahrnovala úpravy přízemí s novým provozem čajovny, jednoduchou adaptaci patra na nové obchodní prostory, výstavbu schodišťové přístavku a řešení vnější fasády celého objektu. Původní majitel zahájil a nedokončil plánovanou rekonstrukci, při níž bylo zejména v interiéru nenávratně poškozeno mnoho původních prvků.
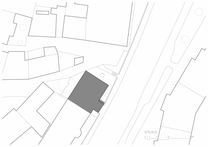
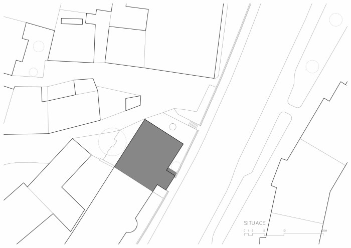
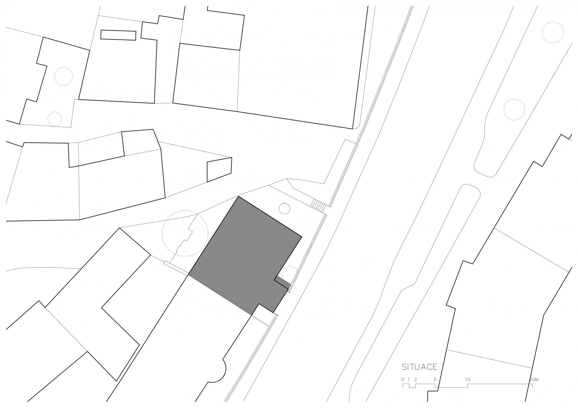
Objekt se nachází v těsné blízkosti dopravního průtahu zbudovaného v osmdesátých letech minulého století na jehož druhé straně vznikla nová intenzivní bytová a komerční výstavba, která výrazně změnila dosavadní komorní charakter starého předměstí. Díky své vyvýšené poloze oproti původnímu terénu se tento průtah stal zároveň výraznou bariérou v místě střetu s původní zástavbou. Řada objektů podél dřívější frekventované cesty tak ztratila přirozený přístup z ulice a zůstala „utopená“ pod opěrnou zdí nové silnice.
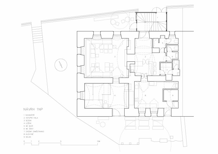
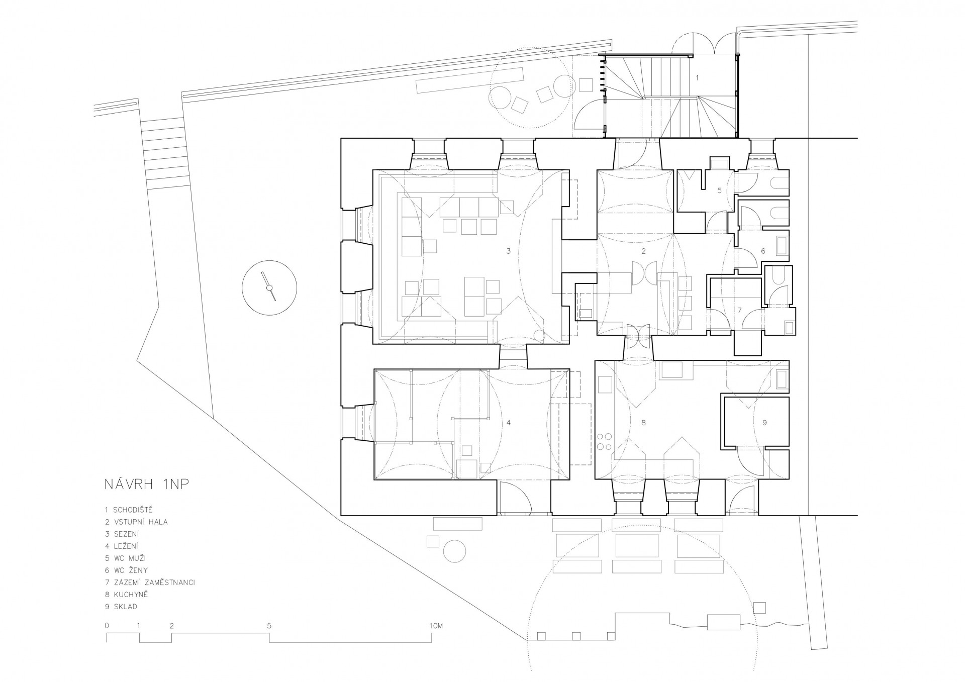
Zbudování vstupní schodišťové přístavby k objektu je odpovědí na tuto problematickou polohu. Vnější kryté schodiště propojuje původní terén a vyvýšenou úroveň chodníku podél komunikace a a pokračuje i do horního patra objektu. Nahrazuje tak zároveň vnitřní schodiště, které se již do interiéru přízemí kapacitně nevešlo. V jeho místě vzniklo sociální zázemí restauračního provozu.
Čajovna v přízemí, kterou si majitel vysnil během svých cestovatelských výprav po světě, dává duši celému domu. Je rozprostřena do několika místností, z nichž každá má charakteristický plastický prvek ve svém průčelí, který odkazuje na členitost štítové fasády. Hlavní pobytová místnost je pak snížena o dva schody, aby získala monumentálnější měřítko ve srovnání s intimnější povahou okolních místností. Každý prostor nabízí různé způsoby posezení, které se liší mírou intimity a společenské interakce.
Došlo k obnově členité historické fasády s drobnými akcenty současně pojatých dveří na dvorní straně. Střecha dnes nevyužívaného podkroví byla zbavena torz vikýřů a neautentické betonové krytiny, která byla nahrazena keramickou pálenou taškou. Ta je použita i na zastřešení venkovního krytého schodiště, opláštěného modřínovými prkny.
Na interiér čajovny přímo navazuje pobytový dvorek s posezením pod starým ořechem, který je otočený do dochované části staré blatenské zástavby a de facto rozšiřuje veřejný prostor na soukromý pozemek majitele.
- Autoři: Tomáš Petrášek
- Ateliér: DEBYT
- Země: Česká republika
- Město: Blatná
- Realizace: 2002-2020
Související projekty
Související architekti
Související ateliéry a firmy
Mohlo by vás zajímat




















