TONIK Health Club Social Areas Refurbishment

ÚVOD
Klub je umístěný v nové, moderní budově, interiér byl však pojat jako odraz jednoduchého okolí, postrádal ucelenost, použité materiály byly sice ušlechtilé a drahé, ale nijak příjemné a nepříliš slučitelné s programem. To platilo především o vstupní hale a recepci. Cílem naší modernizace bylo docílit toho, aby tyto dva hlavní prostory klubu působily vlídnějším a příjemnějším dojmem, současně aby však byly dokonale zpracované do nejmenšího detailu za využití veškerých současných možností. Vždyť právě zde, ve vstupních prostorách si klient vytváří první dojem o celém klubu.
PROGRAM
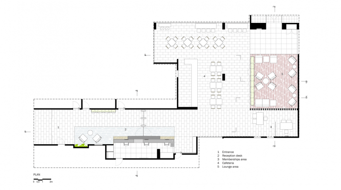
Jádrem každého studia, které poskytuje klientům určité služby, je právě recepce. Ta byla sice zpracována poměrně velkoryse, nebylo však patrné jasné propojení mezi průchozím koridorem do klubu a vstupní oblastí spolu s recepcí. A navíc vyšlo najevo, že původní recepční pult už technicky nevyhovoval současným požadavkům, a celá recepce i opticky působila poněkud zastaralým dojmem. Dále bylo třeba vytvořit při recepci jakousi „čekárnu‟ ještě před vstupem do samotných klubových místností, a místo určené k prodeji výrobků značky TONIK.Když vejdete do recepce, otevírá se před vámi rozlehlé foyer, prostor určený členům. Dále je zde kavárna a hala. I tyto prostory však byly před modernizací nevhodně rozčleněny, špatně vybaveny a jednotlivé prvky nevytvářely příjemné prostředí.
KONCEPCE VNITŘNÍHO PROSTORU
V rámci naší modernizace jsme citovali především sofistikovanost, komfort a pohodlí, a to v kontrastu se stávajícím základním vybavením, které jsme chtěli doplnit. Klubové barvy značky TONIK se staly spojovacím prvkem celého projektu, a současně i napomohly identifikovat jednotlivé oblasti, kde došlo k použití dominantní barvy i na dekoracích a použitém nábytku. V recepci je modrá barva použitá na koberci a vyznačuje oblast pro zákaznický servis u recepčního pultu, čímž dává nenásilně najevo, kde bude probíhat komunikace. Dál modrá pokračuje do oblasti “čekárny”, kde zelená stěna dodává místu pocit klidu a harmonie. Strop nad recepcí byl navržen s cílem akcentovat tuto zákaznickou část studia. Vybrána byla škála odstínů od bílé po šedou s cílem dosáhnout elegantní až vznešené atmosféry.
Ve vlastním foyer byly poněkud pozměněny komunikační trasy s tím, že tak byly lépe vyčleněny jednotlivé oblasti, které vedle sebe existují, tj. kavárna, hala a oblast pro členy klubu. Následně bylo navrženo i nové rozložení stolků v kavárně a současně jsme využili vysoký strop, abychom neměli v hale pocit omezení. Hala vyniká už svým jedinečným postavením v rámci budovy, a dále také použitými materiály – navrženými s cílem vybavit tento prostor tak, aby působila luxusně a současně i velmi příjemně a pohodlně. Jsou zde tedy použité teplé odstíny a různé textury, a to na koberci, použitém dřevě, texturovaných tapetách, zelených rostlinách, jedinečném souboru designového nábytku i sofistikovaně umístěného osvětlení. To vše se podílelo na přeměně tohoto prostoru podle původního projektu, ale především dodalo hale jistou intimitu a skromnost, aniž by došlo k vytvoření přehnaných fyzických bariér.
Stručně a jasně, náš zásah do jednotlivých výše citovaných prostor si položil za cíl implementovat rysy typické a jedinečné pro značku TONIK, které zde dosud neexistovaly, a současně se postarat, aby jednotlivé prostory spojovala určitá harmonie, a to i přes jejich specifické odlišnosti.
- Autoři: João Escaleira Amaral, Manuela Tamborino
- Ateliér: Estúdio AMATAM
- Země: Portugalsko
- Město: Lisabon
- Ulice, číslo: Rua Joaquim Rocha Cabral 26
- PSČ: 1600-075
- Realizace: 2014
- Užitná plocha: 265.00m2
Související architekti
Související ateliéry a firmy
Mohlo by vás zajímat






























