Treea - Rodinný dům Svinná u Trenčína

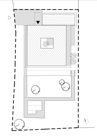
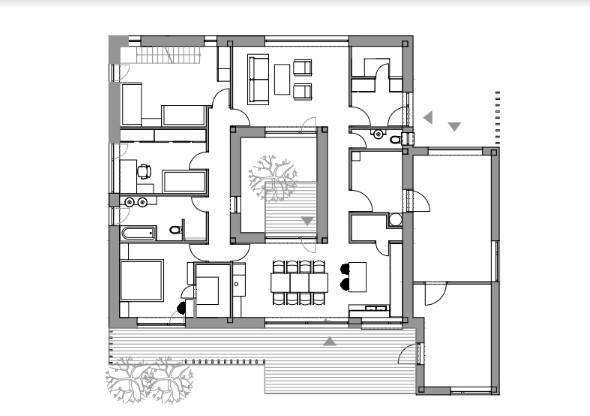
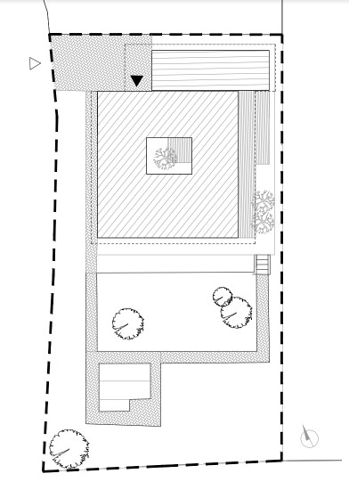
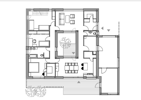
Priatelia z detstva. Navrhujeme im rodinný dom v obci Svinná, neďaleko Trenčína. Limitmi parcely je blízkosť železničnej dráhy, odstupy od susedných domov a výškový limit stavby. V dôsledku požiadavky suseda netieniť jeho parcelu z južnej strany sme navrhli dom, ktorý má jednopodlažný charakter, avšak s pridanou hodnotou mezonetu. Dom skrýva v sebe koncept prehľadnej, otvorenej dispozície s prevýšenými spoločenskými miestnosťami, ktoré medzi sebou komunikujú cez otvorené átrium. V tesnej blízkosti susedov a železnice má svoje vlastné súkromie, intimitu a napriek tomu je plný svetla.
Čiastočne dodávateľsky a čiastočne svojpomocne realizovaný dom sa stáva domovom prispením vnímavého prístupu majiteľky a stálej komunikácie s architektom až do dnešných dní. Dva roky trvajúca práca na interiéri prináša svoje ovocie v podobe bývania s atmosférou a citom. Dom inšpirovaný štvorcom prináša hry svetla nielen v jedálni, cez átrium a terasu, ale hlavne v chlapčenskom mezonete, či v prevýšenej obývacej izbe. Práve tu západné slnko vytvára atmosféru jedinečnej hry farieb svetla a potvrdzuje tak základnú myšlienku návrhu - hry detí.
- Autoři: Peter Kasman
- Spolupráce: Maroš Miko
- Země: Slovensko
- Město: Svinná
- Datum projektu: 2015
- Realizace: 2018
- Užitná plocha: 266.00m2
- Plocha pozemku: 973.00m2
Související architekti
Mohlo by vás zajímat






















