TREF-Architekti - Vila v Beskydech
Objekt je situován na severní hranici jižně se svažujícího pozemku o velikosti cca 6.500 m2, v jehož spodní části je vzrostlý les. Pozemek je součástí přírodního táhlého terénního útvaru - rokle, svažující se ve východo-západní ose k nedaleké přehradě.
Navržený objekt je co do měřítka jednou z nějvětších stavebních struktur v obci, ihned po bývalé škole, nebo památce lidové architektury - dřevěném evangelickém kostelíku z r.1783, se kterým je také v přímém vizuálním kontaktu. Právě tento objekt se stal předobrazem pro celkovou koncepci vily, která ve svém soudobém pojetí interpretuje dualitu exteriéru a interiéru, pro lokální architekturu tak typickou.
Výsledkem je 3D fasáda z trapézového perforovaného plechu vers. celodřevěný interiér. Perforovaný trapézový fasádní plech jako druhá kůže objektu, sluno- a větrolam, bezpečnostní bariéra v jednom, propůjčující hmotě novostavby specifické měřítko, technicistní prvek, integrující dům do okolní přírody.
Konstrukčně se jedná o dřevostavbu, tedy místně tradiční stavební techniku, avšak posunutou technologicky na úroveň současnosti - křížem lepené dřevěné panely v kombinaci s ocelovými nosnými prvky dávají vzniknout dřevěnce III. tisíciletí.
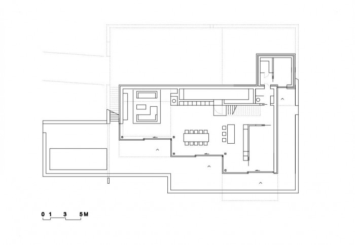
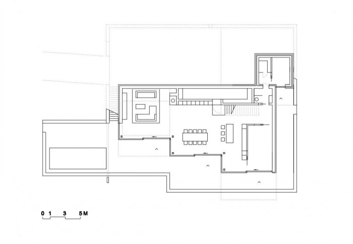
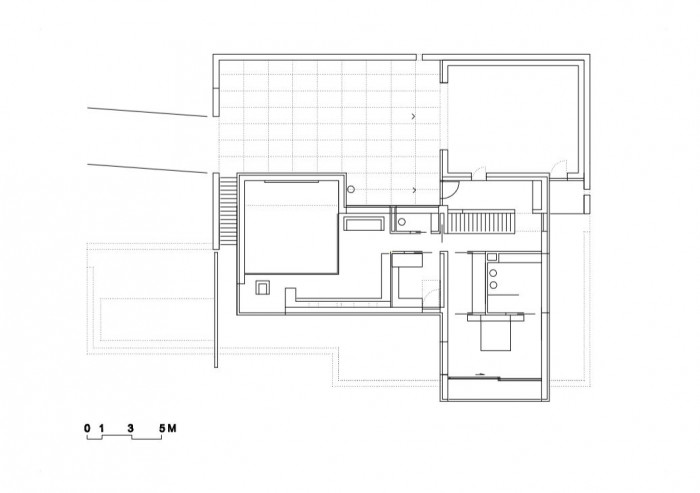
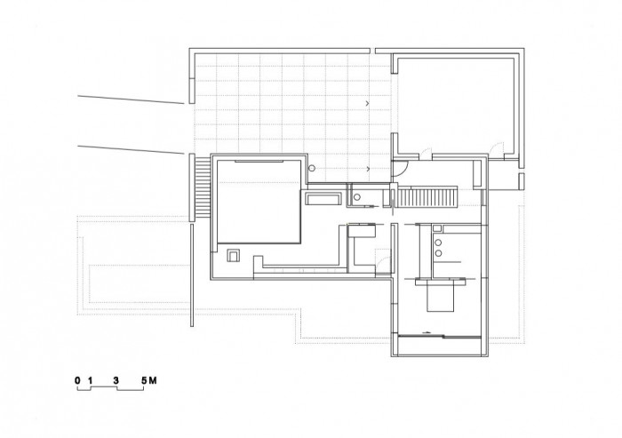
Koncepce vnitřních prostor domu je variací na téma „plan libre“- všechny obytné místnosti orientovány na jih, ze severu vstupní dvůr, garáž a hospodářské prostory domu. Vstup na úrovni ložnicového podlaží, obytné pak o úroveň níže, jeden prostor s předsunutou terasou s obytnou a sportovně relaxační částí s bazénem. Velkoplošné prosklení, zajišťující propojení exteriéru s interiérem - okolní příroda se stává integrální součástí interiéru domu. V jihozápadní části domu prostorová koncepce graduje dvoupodlažní galerií s knihovnou a rohovým oknem, zprostředkovávajícím nejatraktivnější výhledy na místní krajinu, včetně nedalekého evangelického kostelíku.
Na vile je použito velké množství materiálů v různých variantách. Architekti při návrhu uplatnili dřevo, hliníkový plech a jiné kovy, sklo i kámen.
Objekt je navržen jako pasivní dům s inteligentním systémem řízení budovy, solárním ohřevem TUV a s vytápěním tepelnými čerpadly.
- Autoři: Zdeněk Trefil
- Ateliér: TREF-Architekti
- Spolupráce: Petr Ramík, Zoe Malovcová, Patrik Obr, Tomáš Chytka
- Země: Česká republika
- Město: Valašské Meziříčí
- Užitná plocha: 394.00m2
- Poznámka: Výtvarné dílo v interiéru - Jan Zemánek
Související architekti
Související ateliéry a firmy
Mohlo by vás zajímat