Vallo Sadovsky - Nádvoří v Trnavě

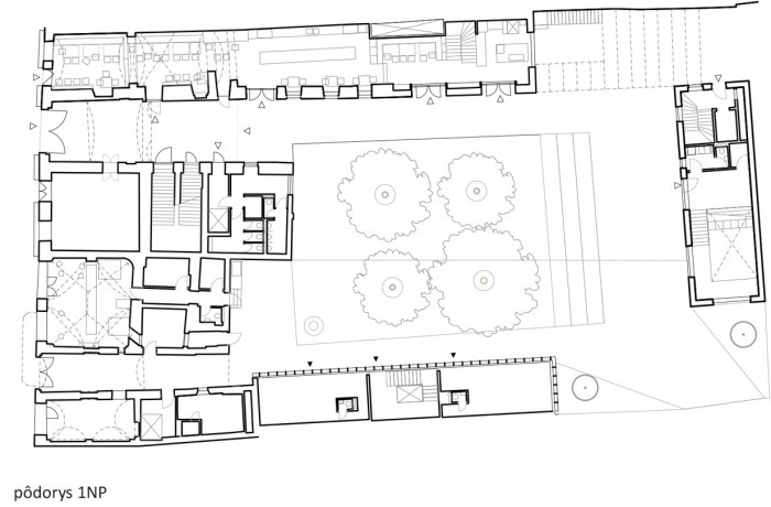
Komplex vznikol spojením viacerých susedných parciel, ktoré majú vstupy z troch rôznych ulíc v historickom centre Trnavy. Tieto parcely boli zastavané prejazdovými meskými domami, ktoré sa spájali zadnou stranou dvorov. Po spojení týchto priestorov tu vznikol voľný priestor v strede mestkej štruktúry, ten sme doplnili o nové objekty. V strede medzi nimi vznikol verejný priestor “nádvorie”. 

Nachádza sa tu mnoho rôznorodých poloverejných, či privátnych funkcií, ktoré nádvorie aktivujú, či už denne formou terasy reštaurácie, či retailov, alebo občasne formou eventov. Multifunkčný centrálny priestor je vymedzený štvoricou stromov, zmenou povrchu a osvetlením.

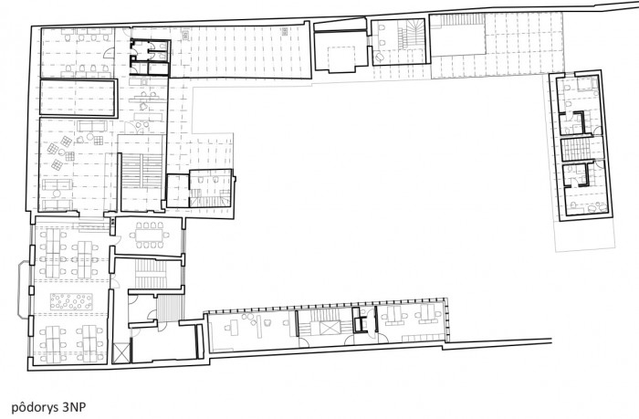
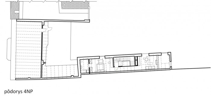
V oboch rekonštruovaných objektoch sme sa snažili odprezentovať všetky dôležité časové stopy prestavieb, pričom sme dbali na jednotný materiálový jazyk dodržujúc zásady pamiatkovej ochrany. História objektov siaha do 14.stor., so zmenami z 16.-20.stor. V objektoch sú sústredené rôzne funkcie ako kultúrne centrum, reštaurácia, pekáreň, predajne, kancelárske priestory, či co-working v podkroví, v rámci ktorého sú domy prepojené.

Foto: EARCH

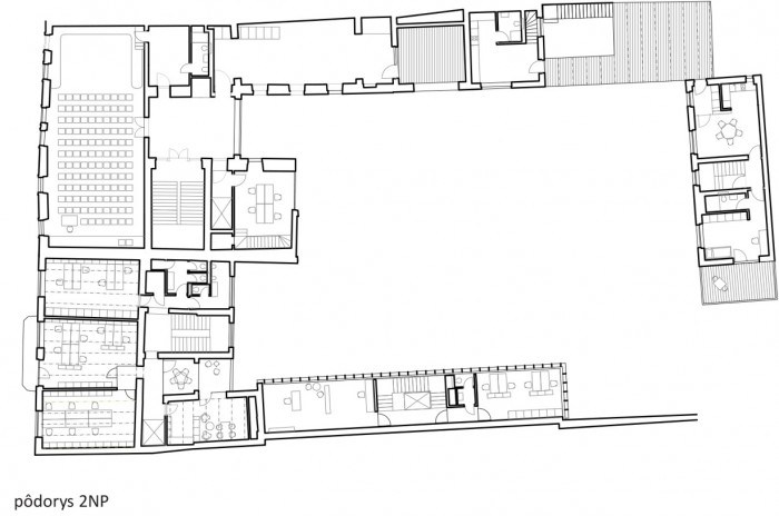
Severná dostavba dodržiava hmotu pôvodného krídla, naznačením aj v oceľovej konštrukcii s napojením na východný objekt areálu. Obsahuje okrem terasy kultúrneho centra aj študentské ubytovanie, retail, či pokračovanie reštaurácie v pôvodnom objekte.

Dostavba v južnej časti je navrhnutá ako rozšírenie objektu na Štefánikovej 3, postavená k slepej stene susedného objektu. Špecifikom je úzky pôdorys a prevažne jednostranná orientácia smerom do nádvoria. Kontrastné tvaroslovie fasády je zmiernené pravidelným rytmom a použitými materiálmi. V rámci okolitej štruktúry sa tak zachováva prirodzený ráz vnútromestskej rozdrobenosti. Dispozícia je členená vertikálne na prenajímateľné priestory, administratívu a podkrovný apartmán. 

Foto: EARCH

Foto: EARCH

Foto: EARCH

Generální partner
Hlavní partneři