V

Vojtěch Šrut - Hasičská zbrojnice Krásná Studánka

Jednotka dobrovolných hasičů v Liberci Krásné Studánce je jednou z osmi jednotek dobrovolných hasičů na území města. Má kategorii JPO III/1, vyjíždí do deseti minut od vyhlášení poplachu jako opora profesionálních hasičů. Zasahuje při požárech, povodních a dalších mimořádných událostech. Hasičská zbrojnice v Krásné Studánce je jedinou veřejnou budovou v městské čtvrti. Slouží také k příležitostným společenským akcím a jako volební místnost. 

Jednotky dobrovolných hasičů stojí jen na aktivitě svých členů. V tomto ohledu prožívají hasiči v Krásné Studánce zlaté časy. Jádrem mužstva je skupina vrstevníků, kteří společně vyrostli v kroužku mladých hasičů, dál bydlí nebo pracují nedaleko zbrojnice a služba v jednotce je pro ně samozřejmost. Dnes mají vlastní děti a historie se opakuje.  

V roce 2014 přišel velitel jednotky Josef Hazi s myšlenkou na přestavbu 70let staré a nevyhovující hasičské zbrojnice. Novostavbu, která by nahradila původní zbrojnici, navrhl architekt Vojtěch Šrut, který je také členem jednotky.

Možnost financování v rámci evropského přeshraničního projektu, ve kterém se modernizovaly hasičské zbrojnice dvou českých a dvou německých sborů, objevil opět velitel Josef Hazi. Sám partnery našel a přesvědčil k účasti na projektu. 

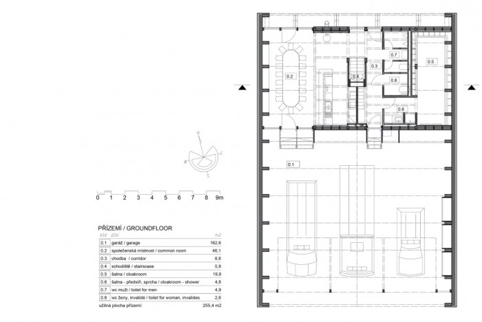
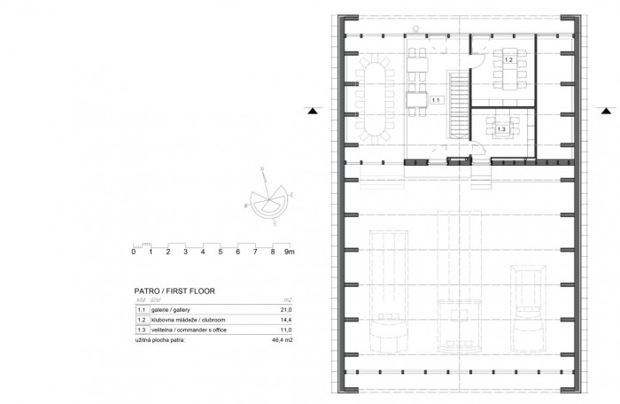
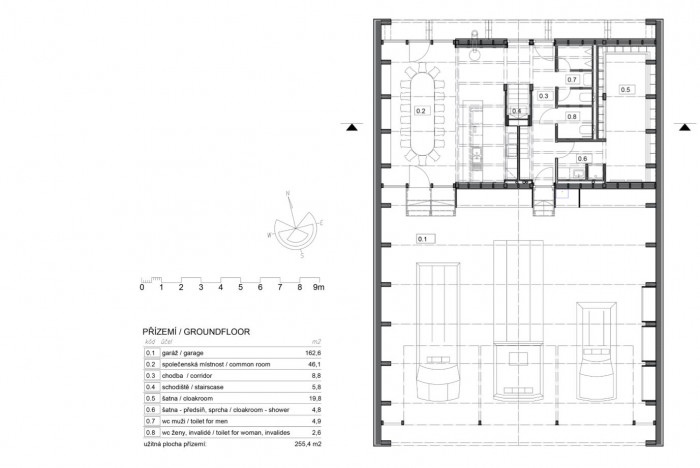
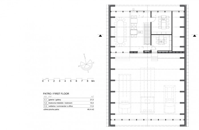
Zbrojnice je dřevěná hala pokrytá titanzinkovým plechem. Podélné stěny jsou plné, štíty maximálně prosklené. Uvnitř je budova rozdělena na garáž a částečně dvojpodlažní část se společenskou místnost se šatnou a hygienickým zázemím, klubovnou mládeže a velitelnou. Garáž je otevřena do ulice, společenská část do zahrady. Obě části budovy lze propojit a pro neformální akce garáž využít jako společenský sál. 

  • Autoři: Vojtěch Šrut
  • Země: Česká republika
  • Generální dodavatel: TOMIVOS s.r.o.
  • Město: Liberec - Krásná Studánka
  • Ulice, číslo: Dětřichovská, 339
  • Suma: 14 000 000.00
  • Měna: CZK
  • Datum projektu: 2014
  • Realizace: 2018
  • Užitná plocha: 302.00m2
  • Zastavěná plocha: 287.00m2

Související architekti

Generální partner
Hlavní partneři