Architektura
/
interiér
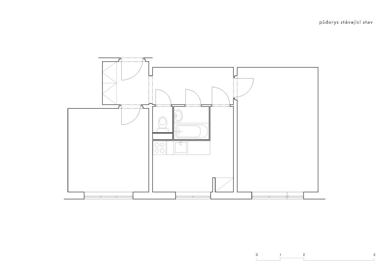
3+kk v negližé
Rekonstrukce bytu v rožnovském paneláku přinesla jak změnu dispozice, tak decentní odhalení konstrukcí i materiálů. Všechny kroky měly svůj zřejmý důvod, výsledkem tak je byt pro svobodného mládence, byt pro aktivního pilota, byt pro dva.
henkai architekti , 15. 8. 2016
- Autoři: Daniel Baroš, Michal Nejezchleb
- Ateliér: henkai architekti
- Země: Česká republika
- Realizace: 2014
- Město: Rožnov pod Radhoštěm
- Realizace: 2014
- Foto ©: BoysPlayNice