Architektura / interiér

Architekt Michal Motyčka vytvořil v Litomyšli nové prostory Galerie Miroslava Kubíka

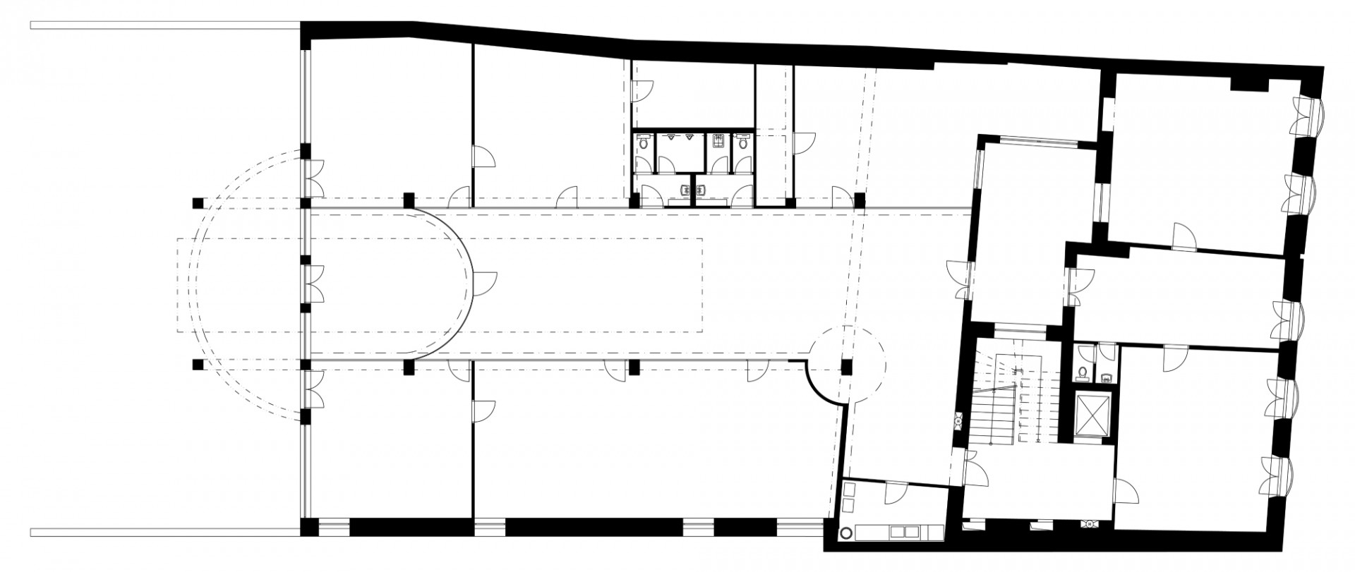
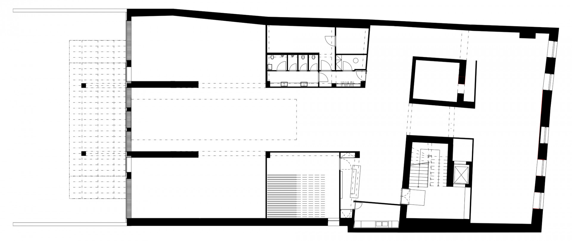
V roce 2011 otevřeli sourozenci Miroslava a Martin Kubíkovi v Litomyšli soukromou galerii, která nese jméno jejich otce. Současné prostory galerie v reprezentativním měšťanském domě na Smetanově náměstí dokončil minulý rok architekt Michal Motyčka. Hlavními principy návrhu galerie byly světlo, průhledy a bílé stěny. "Díky své jednoduchosti a dostatku světla vybízí galerie diváka k soustředěnosti a dává mu dostatečné možnosti pečlivě pozorovat a vnímat vystavená umělecká díla," představuje návrh Galerie Miroslava Kubíka architekt. Hlavní podélná osa galerie vede z náměstí až do zahrady, takže se návštěvníkům nabízejí také výhledy do zeleně.

Michal Motyčka , 17. 3. 2021

  • Autoři: Michal Motyčka
  • Země: Česká republika
  • Město: Litomyšl
  • Ulice, číslo: Smetanovo náměstí 71
  • PSČ: 57001
  • Suma: 8 000 000.00
  • Měna: CZK
  • Datum projektu: 2014
  • Realizace: 2020
  • Užitná plocha: 590.00m<sup>2</sup>
  • Zastavěná plocha: 930.00m<sup>2</sup>

Klíčová slova:

Litomyšl galerie umění

Mohlo by vás zajímat

Generální partner
Hlavní partneři