
ARCHITEKTI mikulaj & mikulajova navrhli atriový rodinný dům s venkovní kuchyní a velkou terasou
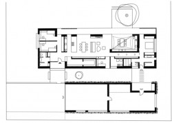
Koncept rodinného domu od bratislavského studia ARCHITEKTI mikulaj & mikulajova vychází ze životního stylu majitelů, kteří svůj volný čas rádi tráví venku. Přízemní hranol se tak díky rozlehlé terase táhnoucí se po celé délce průčelí domu otevírá do velké zahrady. Hlavní architektonický prvek domu představuje atrium s letní kuchyní a otevřeným krbem, které podle slov architektů představuje samotné "ohnisko domu". Architekti využili primárně přírodní materiály, jako je dřevo tvořící plášť domu, které dále přechází také do interiéru a corten, zvětralé ocelové pláty.
ARCHITEKTI mikulaj & mikulajova , 30. 4. 2020
- Autoři: Andrea Ambrovicova Mikulajova, Juraj Mikulaj, Radoslav Kurucz
- Ateliér: ARCHITEKTI mikulaj & mikulajova
- Země: Slovensko
- Město: Zahorie
- Datum projektu: 2012
- Realizace: 2016
- Užitná plocha: 300.00m2