Architektura / administrativní stavby

Architekti ze studia Raketoplán proměnili interiér domu ze 40. let na kanceláře pro rodinnou firmu

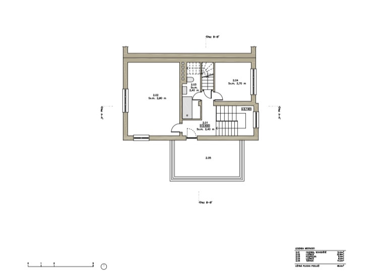
Polovina pražského dvojdomu ze 40. let minulého století prošla celkovou proměnou na sídlo rodinné firmy. Pojetím všech zásahů architekti ze studia Raketoplán navázali na umírněný charakter domu. Jížní část dvojdomu získala novou bílou fasádu a došlo také k rozšíření oken, která umožnila propojení interiéru s exteriérem. Hlavní pracovní místnost tak získala přímý vstup na venkovní terasu, z kanceláře šéfa pak lze vejít do východní zahrady. Reprezentativnost kanceláří podtrhují kvalitní přírodní materiály a povrchy.

Studio Raketoplán , 15. 4. 2020

  • Ateliér: Studio Raketoplán
  • Země: Česká republika
  • Realizace: 2018
  • Město: Praha
  • Realizace: 2018

Klíčová slova:

Studio Raketoplán dvojdům

Mohlo by vás zajímat

Generální partner
Hlavní partneři