Architektka Dagmar Štěpánová navrhla na Kostarice levitující vily z dusané hlíny
Jaspis a Nefrit. To jsou názvy dvou luxusních vil pro krátkodobé rekreační pronájmy, které vyrostly v kostarické džungli podle návrhu zakladatelky studia Formafatal Dagmar Štěpánové. Pro jejich konstrukci architektka využila místní jílovitou půdu, takže se jedná o vůbec první realizaci stavební metody „rammed earth“ (dusané hlíny) na území této středoamerické země.
EARCH.CZ , 14. 2. 2023
„Mým záměrem bylo navrhnout udržitelné domy s biofilními interiéry, které budou sofistikovaně promyšlené a zároveň jejich tvarování bude silně minimalistické a čisté. Žádný zbytečný prvek navíc, ale také nic, co by chybělo,“ představuje projekt Dagmar Štěpánová.
Vily se nachází tři sta metrů nad mořem na kopci zarostlém džunglí, odkud se otevírá úchvatný výhled na Pacifický oceán. Vzhledem ke svému umístění stavby ladně levitují nad příkrým jižním svahem, což jim dodává na eleganci. „Architektura vil je záměrně svými štíhlými a ostrými linkami v kontrastu s bujnou tropickou vegetací, ale zvolené materiály a barevnost naopak s okolím dokonale splývají,“ popisuje architektka, která společně s architektem Karlem Vančurou stojí za projektem v roli investorky.
Více k tématu
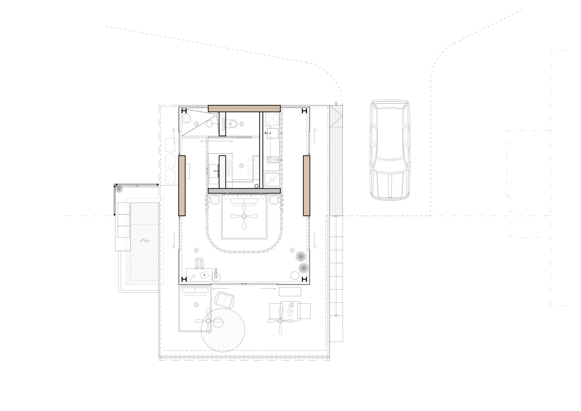
„Obě vily jsou po architektonické stránce stejné. Totožné jsou i materiály, dispoziční řešení, nebo orientace vůči světovým stranám. Liší se ale v interiéru a to především svým barevným konceptem, který se propisuje částečně i do exteriérů.“ Obě vily na zastavěných plochách devadesáti metrů čtverečních nabízí velkou otevřenou ložnici s kompletně prosklenými stěnami, kuchyň, koupelnu a dále venkovní terasu s malým bazénem.

„Extrémní důraz jsem kladla na všechny stavebně-architektonické detaily a jejich vzájemné návaznosti. Surové pohledové materiály hliněných stěn a betonu doplňují přiznané ocelové HEB profily, kterými je podepřena betonová monolitická stropní deska. Průvlaky a věnec domu se propisují až v horním líci střechy, která je lemována dvojicí ocelových U profilů. Ty zároveň plní funkci atiky,“ popisuje technické detaily autorka návrhu.
Protože na Kostarice nenašla architektka nikoho se zkušenostmi se stavební metodou „rammed earth“ (dusaná hlína), přizvala ke spolupráci specialistu z Brazílie, který vyškolil několik místních řemeslníků. Díky tomu se jedná o vůbec první příklad využití této technologie na Kostarice. Z dusané jílovité půdy získané z výkopů stavby byly zhotoveny obvodové stěny obou vil.

Pokud jde o interiéry, také u nich vyniká minimalistická estetika. Architektka Štěpánová je zařídila originálními kusy nábytku a dalšího vybavení od designérů a designérek z různých koutů světa.
Nejedná se přitom o první realizaci Dagmar Štěpánové na Kostarice – již před pár lety společně s dalšími českými studii pracovala na návrhu luxusního designového rezortu Art Villas.
- Ateliér: Formafatal
- Autoři: Dagmar Štěpánová
- Země: Kostarika
- Projekt: 2020
- Realizace: 2022
- Zastavěná plocha: 190 m² / 95 m² – 1 vila
- Užitná plocha: 180 m² / 90 m² – 1 vila
- Plocha pozemku: 11 000 m²
- Investor: Ing. arch. Dagmar Stěpánová & Ing. arch. Karel Vančura
- Fotograf: BoysPlayNice