Atelier RAW navrhl polyfunkční objekt DORN s odkazem na industriální architekturu
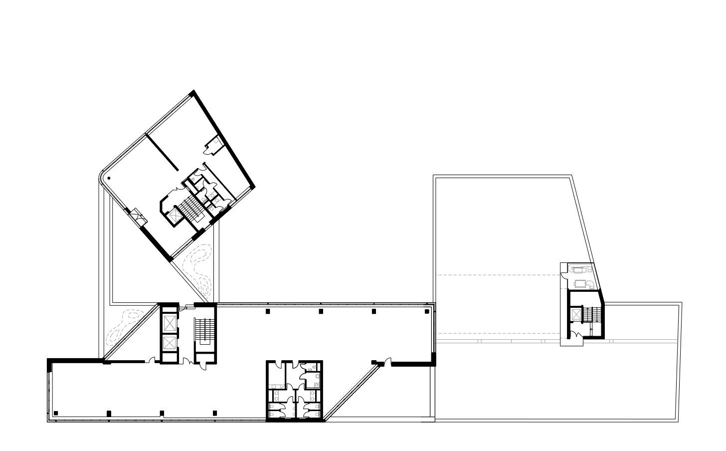
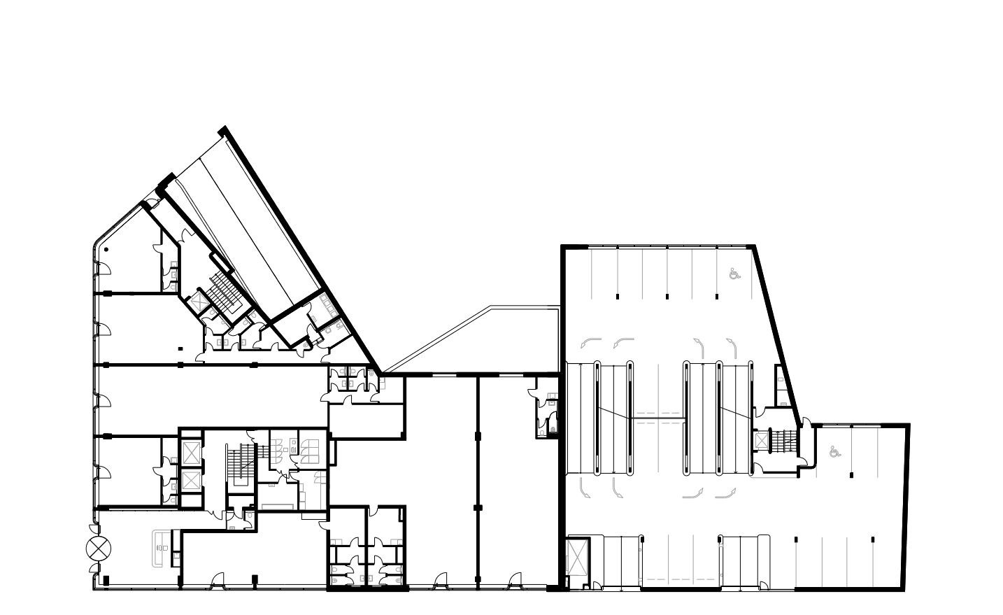
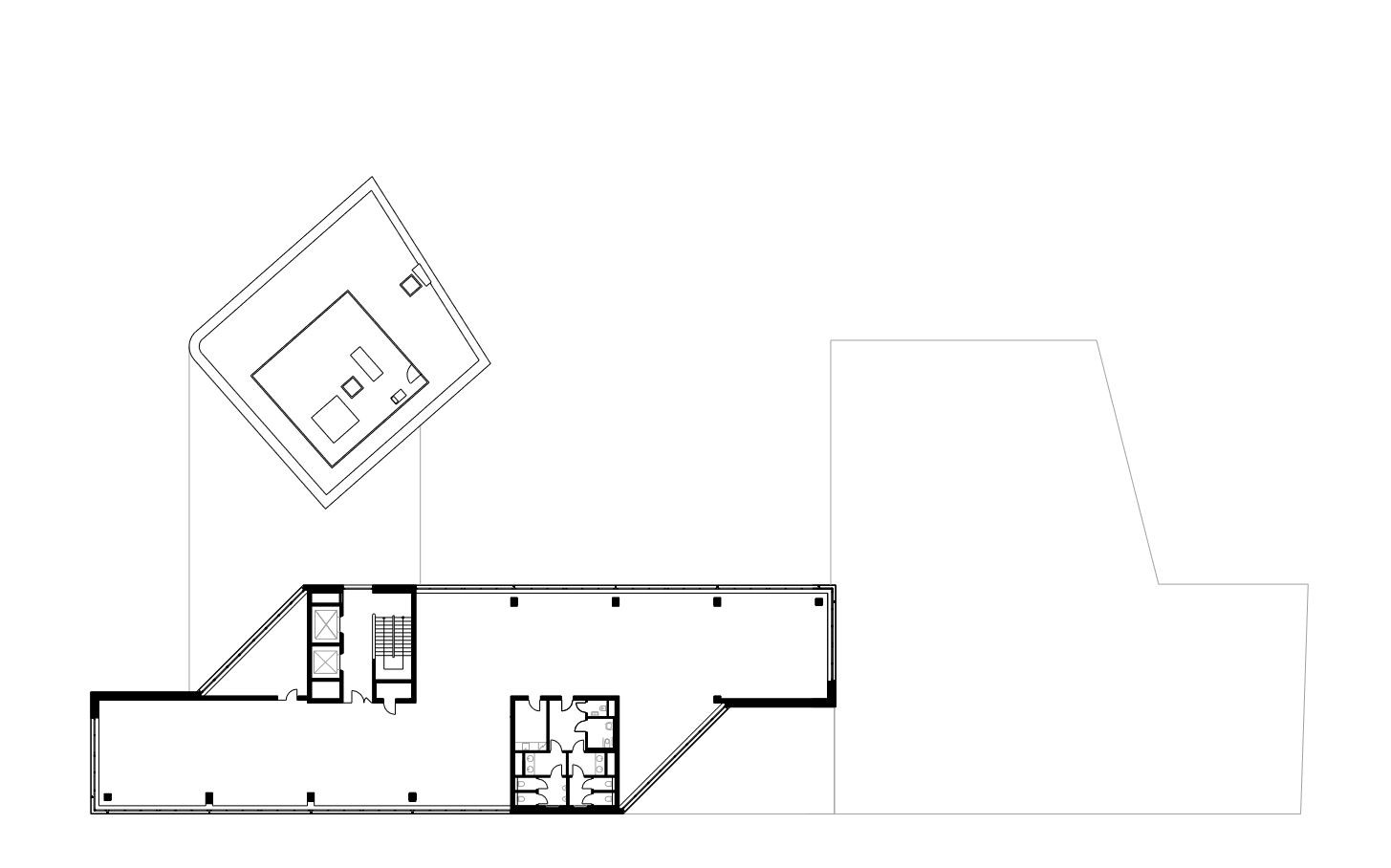
V sousedství brněnského vlakového nádraží a nákupní galerie Vaňkovka vyrostl polyfunkční objekt DORN od atelieru RAW. Architekti navrhli štíhlou stavbu, která pomocí obkladu z lícových cihel a dalších prvků reaguje na místní industriální objekty Vaňkových sléváren z 19. století. Dynamickou kompozici dvanácti a pětipodlažní hmoty vyplňují převážně administrativní prostory s open-space kancelářemi v nejvyšších patrech, které poskytují daleký výhled na moravskou metropoli. Architekti si také dali záležet na řešení jednotlivých detailů - zasklení tvoří pečlivě vyrobené nerezové rámy a velké zakřivené tabule skla v rozích budovy, v interiéru pak najdeme třeba obklad z travertinu.
Atelier RAW , 24. 10. 2018
- Autoři: Tomáš Rusín, Ivan Wahla
- Ateliér: Atelier RAW
- Spolupráce: Bořivoj Čapák, Lukáš Vágner
- Země: Česká republika
- Realizace: 2016
- Město: Brno
- Ulice, číslo: Dornych - Plotní
- PSČ: 60200
- Datum projektu: 2008
- Realizace: 2016
- Užitná plocha: 6 652.00m2