
Do proluky v centru Brna navrhlo místní studio RAW polyfunkční dům s fasádou z černé žuly a cihových pásků
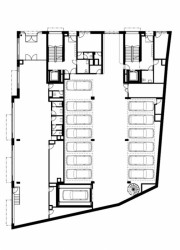
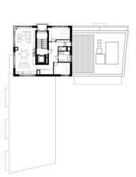
Architektonické studio RAW stojí za řadou brněnských projektů různých měřítek – od rekonstruované funkcionalistické zastávky až po výškový polyfunkční objekt DORN, který získal také ocenění v rámci loňského ročníku České ceny za architekturu. Dalším z novějších projektů studia RAW pro moravskou metropoli je polyfunkční dům, který architekti navrhli do proluky činžovních domů v ulici Bratislavská. Výškově rozdělenou rohovou budovu architekti opatřili režnými cihlovými pásky, dvoupodlažní parter pak pokrývá černá žula. Na reprezentativnosti budově přidávají také oblouková skla v leštěných nerezových profilech.
Atelier RAW , 26. 3. 2019
- Autoři: Tomáš Rusín, Ivan Wahla
- Ateliér: Atelier RAW
- Spolupráce: Libor Šupler
- Země: Česká republika
- Město: Brno
- Ulice, číslo: Bratislavská, 22+24
- PSČ: 60200
- Realizace: 2017
- Zastavěná plocha: 913.00m2
- Spolupráce: Promed s.r.o.