Modrá, zelená, růžová. Tři zóny, tři barvy. (Rekonstrukce bytu v Holešovicích; B² Architecture)
Modrá, zelená, růžová. Tři zóny, tři barvy. (Rekonstrukce bytu v Holešovicích; B² Architecture) Foto: Alexander Dobrovodský
Architektura / interiér

Byt v šedivém domě získal barvy: růžovou, zelenou a modrou

Byt v pražských Holešovicích má 85 metrů čtverečních. Při chytré práci s prostorem to stačilo na velkorysé bydlení včetně dvou šaten a domácí pracovny.

Karolína Vránková , 6. 3. 2026

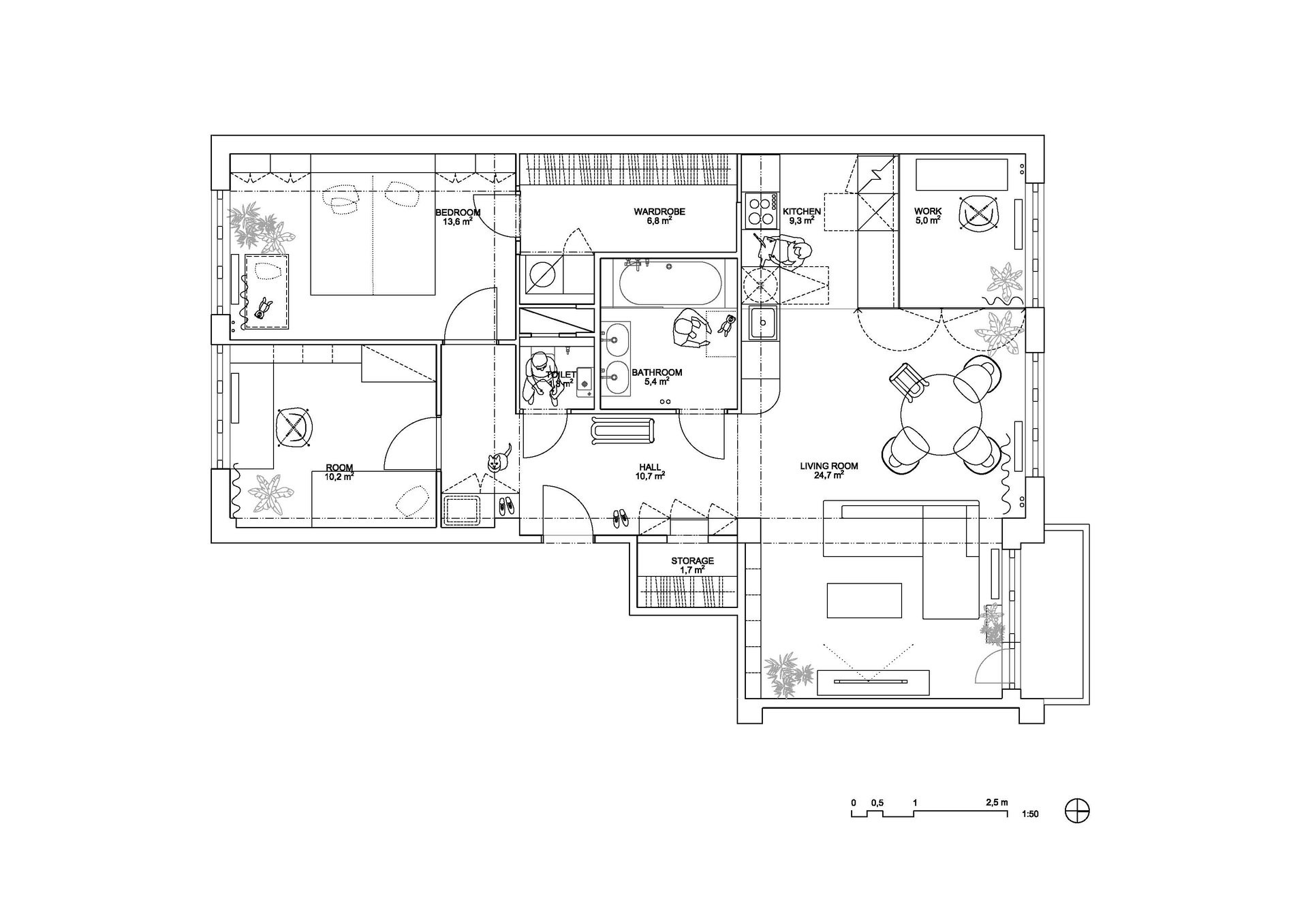
Dům v pražských Holešovicích pochází z 50. let 20. století. Měl betonovou konstrukci vyplněnou škvárobetonovými tvárnicemi. I byt byl uspořádaný podle tehdejších požadavků – měl malou koupelnu, kuchyňku a úzkou chodbu. Na architektkách Barbaře BencovéZuzaně Bartasové z ateliéru B2 Architecture bylo, aby ho proměnily v současné bydlení pro mladou rodinu. Povedlo se to, a teď dům těží z výhledů na město i z klidného vnitrobloku.

Na to ale bylo potřeba byt zcela přeorganizovat. K zemi tedy šla většina příček. Do středu bytu vložily architektky vestavbu se šatnou a koupelnou. Kolem ní jsou obytné místnosti, ovšem uspořádané jinak než původně. Do rušné ulice byly ložnice, ale teď sem architektky situovaly obývací pokoj. Směrem do vnitrobloku je spaní – dětský pokoj a ložnice rodičů. V obývacím pokoji zbylo místo i na malou pracovnu, do bytu se vešla také velká a malá šatna.

Foto: Ložnice je zelená, na stropě stmívací svítidlo z mědi.

Kromě dispozice změnily architektky i atmosféru bytu, a k tomu hodně přispěly barvy. „Rozdělily jsme byt na barevné zóny. Zelená je obytný prostor, modrá jsou místa na studio a práci, intimní prostor je růžový," vysvětluje architektka Bencová. Tohoto schématu se držely při navrhování vybavení, ložnice je zelená, knihovna modrá, koupelna růžová. Další barvu přidává měď – měděné jsou vodovodní baterie, kliky, i na zakázku vytvořená svítidla.

Další prvky jsou spíš neutrální – bílá pohovka a skříně, dubová podlaha a šedá cementová stěrka, kterou jsou natřeny původní betonové trámy. V prostoru nedominují, ale připomínají původ bytu. A také to, že i bezmála osmdesát let starý betonový dům se dá přizpůsobit dnešním požadavkům a poskytnout kvalitní i stylové bydlení.

  • Autoři: Barbara Bencová, Zuzana Bartasová
  • Ateliér: B2 Architecture
  • Země: Česká republika
  • Město: Praha
  • Fotograf: Alexander Dobrovodský
  • Dodavatel dlaždic: Archtiles
  • Dlažba / obklad: Ceramica Vogue – Gruppo Bardelli
  • Jídelní stůl: Somcasa
  • Jídelní židle: FormWood
  • Jídelní stůl, pracovní stůl: Master & Master
  • Pohovka Bolzano: Theca
  • Odkládací stolek, postel Tufjord: Ikea
  • Stropní svítidlo (ložnice): Lappa
  • závěsné svítidlo Wireflow: Vibia
  • nábytek na míru (kuchyně, šatní skříně, ložnice a knihovna): B² Architecture

Mohlo by vás zajímat

Generální partner
Hlavní partneři