
Chata, kterou postavili svépomocí dva kamarádi. Stojí u Zlína a je inspirovaná Norskem
Projekt dvou kamarádů, chata, kterou navrhl jeden z nich v závěru svého studia architektury. Společně ji pak postavili a dnes ji pronajímají. Stojí kousek od města, ale zároveň na okraji lesa, do kterého hezky zapadá.
EARCH.CZ , 2. 11. 2023
Chtěli chatu v přírodě bez kontaktu s jinou zástavbou. Výsledná stavba nakonec stojí asi deset minut od Zlína, osamocená ale je. Jmenuje se Hytta, to znamená norsky chata, a vymysleli ji a do velké míry i sami zrealizovali kamarádi inspirovaní cestováním po severu.
Více k tématu
„Hytta leží na jižním svahu na okraji borového lesa, a půdorysně navazuje na bývalou mysliveckou chatu,“ říkají Adam Hoffman, architekt, a Dominik Ilichman – původně právník, který se dnes věnuje umělé inteligenci. Stavba do přírodního prostředí zapadá přirozeně, fasádu má z modřínového dřeva, střechu sedlovou, bez přesahů, vstup je ale krytý, zapuštěný do jednoduché siluety chaty.

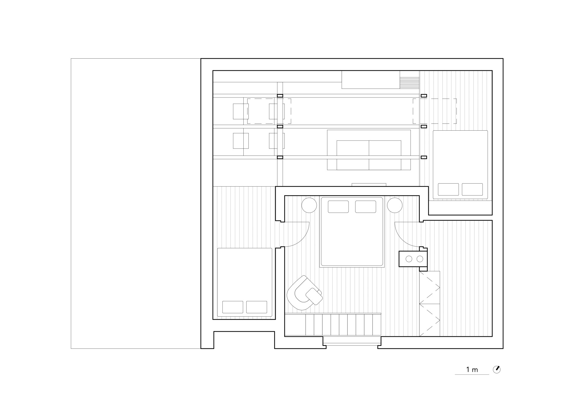
Za dveřmi je malá předsíň, za tou hlavní obytný pokoj. Je v něm pohovka, kuchyně a jídelní stůl. Ten může sloužit taky jako pracovní, z přilehlé knihovny se k němu dá vysunout potřebné zázemí. Prostor je to velkorysý, převýšený až do krovu a osvětlený velkými francouzskými okny, za nimiž se nachází rozlehlá terasa. Chatařskou atmosféru uvnitř navozuje obložení stěn smrkovým dřevem, útulno dodávají litinová kamna, ve kterých se topí dřevem, zapnout se dá ale taky topení podlahové.
V chatě Hyttě se vyspí až šest lidí, ačkoliv to asi bude pohodlnější v menším počtu. Kromě ložnice v patře jsou tady taky dvě „útulny“, zákoutí, ve kterých se dá nocovat. Do jedné se vchází z ložnice, do druhé z obývacího pokoje po žebříku.

„Hyttu jsme stavěli z velké části sami, za pomoci kamarádů, rodiny a místních řemeslníků,“ dodávají Adam Hoffman a Dominik Ilichman. Nestavěli jen pro sebe, ale taky na pronájem. V Hyttě se dá ubytovat po vyplnění rezervačního formuláře na webu projektu. Můžete do ní jet relaxovat, pracovat a taky si užít wellness. Vedle chaty je totiž ještě finská sauna skrytá v drobném objektu s fasádou z opalovaného dřeva.
- Autoři: Adam Hofman, Dominik Ilichman
- Země: Česká republika
- Město: Lípa nad Dřevnicí
- Projekt: 2021
- Realizace: 2022
- Zastavěná plocha: 75 m²
- Užitná plocha: 99 m²
- Plocha pozemku: 10 000 m²
- Investor: Adam Hofman a Dominik Ilichman