Lanovka hned za domem. Nové apartmány v Krušnohoří lákají na komfort a přírodu
V Krušných horách přímo pod Plešivcem byl dokončen bytový dům Krušec. Skiareál a cyklostezky má v těsné blízkosti, a kromě toho nabízí tyhle horské aparmtány i architekturu.
EARCH.CZ , 2. 5. 2025
Čtyřpodlažní bytovku obklopuje příroda a velká okna poskytují cenné výhledy do horské krajiny. „Dům respektuje základní principy krušnohorské architektury a okolní kopcovitou krajinu. Tradiční forma je interpretována soudobým architektonickým jazykem a vzniká tak spojení stavby a okolních hlubokých lesů,“ říkají architekti ze studia monom.

Dům architekti rozdělili na dvě jednoduché hmoty se sedlovými střechami. K zemi stavbu ukotvuje kamenný sokl a výraznou figuru ještě podtrhuje tmavá opalovaná fasáda. Tato tradiční technika zajistí dřevu dlouhou životnost. Střešní prvky jsou také sjednoceny do tmavé barvy, tak aby byla zachována výtvarná kompaktnost domu.

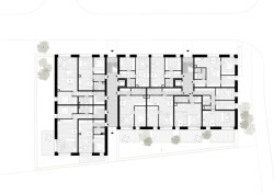
Uvnitř se nachází celkem 42 bytů s širokou škálou uspořádání vyhovující rozličným potřebám obyvatel. „Převažující dvoupokojové byty doplňují velkorysé loftové byty situované v nejvyšším podlaží s převýšenými prostory v podkrovní části domu. Veškeré byty jsou navrženy s velkoformátovými okny či lodžiemi umocňujícími výhled do okolní krajiny. K bytům v kontaktu s terénem přiléhají předzahrádky s dřevěnými terasami. Loftové byty mají zase přístup na střešní terasy, jež jsou nenápadně zapojené do hmoty domu,“ popisují autoři.
V částečně zapuštěném podzemním podlaží se nachází technické zázemí domu a sklepní kóje k jednotlivým bytům. Na chodbách a ve zbylých společných prostorách domu najdeme sjednocenou infografiku nebo promyšlené detaily jako atypické madlo schodiště z ohýbaného dřeva či poštovní schránky.
Pozemek nevymezuje oplocení. Jemnou hranici mezi veřejným a soukromým pouze naznačuje linie vysazených habrů. Okolí domu doplňuje výsadba několika smrků a stálezelených keřů.

K objektu přiléhá parkoviště, pod nějž autoři důmyslně umístili zemní kolektor tepelného čerpadla, které zásobuje budovu teplem, to je distribuováno pomocí podlahového vytápění. Majitelé bytů ho mohou ovládat na dálku a před příjezdem si v apartmánu nastavit požadovanou teplotu. Dešťová voda a pomalu odtávající sníh je sváděn do soustavy vsakovacích buněk, voda je tím zadržována nadále v krajině.
Více k tématu
Vyzvaná architektonická soutěž pro trojici ateliérů, z níž projekt Krušec vzešel, potvrzuje, že i menší developerské projekty mohou díky soutěži získat vysokou architektonickou kvalitu. Do detailu promyšlený dům nabízí ideální zázemí pro celoroční aktivní odpočinek i relaxaci. Majitelé apartmánů navíc mohou využívat i úklidové a domovní služby a díky tomu nabídnout své byty k pronájmu. To jim snižuje náklady a pomáhá to i domu, který nezeje prázdnotou, nýbrž žije.
- Ateliér: monom
- Autoři: Igor Hobza, Michal Bernart, Jakub Vašek
- Spolupráce: Martina Bejčková, Tomáš Kočař, Zuzana Krištofíková, Pavla Hanousková, Matěj Ševela
- Země: Česká republika
- Město: Abertamy
- Realizace: 2023
- Fotograf: Filip Beránek (objekt), Jakub Vašek (detaily)
- Zhotovitel: Baustav a. s.
- Manažer projektu: Lukáš Bady - Building and Project Consultancy s.r.o.