Co se to staví na Starém městě v Praze? Bytový dům podle Zdeňka Fránka, který bere ohled na své okolí
Rezidence U Milosrdných nabídne v budoucnu k dlouhodobému pronájmu 27 kompletně vybavených bytů ve velmi vysokém standardu. Nacházet se budou v domě na Starém Městě v Praze, jehož návrh, který se cizeloval prakticky od roku 2012, vypracovala architektonická kancelář Fránek Architects, hotovo bude v průběhu příštího roku.
EARCH.CZ , 25. 4. 2023 / Advertorial
Případ bytového domu U Milosrdných
Přímo vedle Anežského kláštera na Starém městě je možné v přímém přenosu sledovat realizaci jednoho z mála nových bytových domů, které v centru hlavního města vznikají. Novostavbu chtěl na místě, kde se ještě nedávno nacházela neudržovaná plocha a divoké parkoviště, postavit už italský investor Augusto Razetti. Pro stavbu se mu tehdy podařilo získat územní rozhodnutí, pravomocné stavební povolení už ale ne. Soukromý projekt, o kterém se otevřeně debatovalo i v prostorách Centra architektury a městského plánování, se tehdy nepodařilo dotáhnout do konce. Dnes je tomu jinak, na křižovatce ulic Kozí a U Milosrdných už stojí rozestavěná budova, na kterou se pomalu připevňují okna. Její development řídí od roku 2018 společnost CREDITAS Real Estate (dříve V Invest Development), která počítá s dokončením stavby v příštím roce.
Více k tématu
Nová architektonická soutěž
„Zdárnému výsledku a úspěšnému projednání v rámci stavebního řízení velmi pomohla změna podoby domu“ říká Jan Kukla, projektový manažer CREDITAS Real Estate. Společnost projekt od italského investora odkoupila v roce 2018 a rozhodla se uspořádat uzavřenou architektonickou soutěž, vyzvala k ní etablované architektonické kanceláře Chybik + Kristof, MS Architekti, QARTA Architektura, CMC Architects a v neposlední řadě i Fránek Architects.
O vítězi rozhodla šestičlenná porota složená ze zástupců developera a architektů Ladislava Lábuse, Josefa Pleskota a Zdeňka Lukeše. Josef Pleskot se po uveřejnění výsledků nechal slyšet, že Fránkův vítězný návrh byl opravdu nejlepší. Podle dnešního pohledu Jana Kukly ostatní architektonické kanceláře navrhly opět v lecčems příliš extravagantní budovy. „Z mého pohledu Zdeněk Fránek už dobře věděl, že je namísto potřeba navrhnout něco smířlivějšího a citlivého pro okolí, udělal to, a stal se tak nejvhodnějším kandidátem na vítěze,“ říká.

Budoucí rezidence U Milosrdných
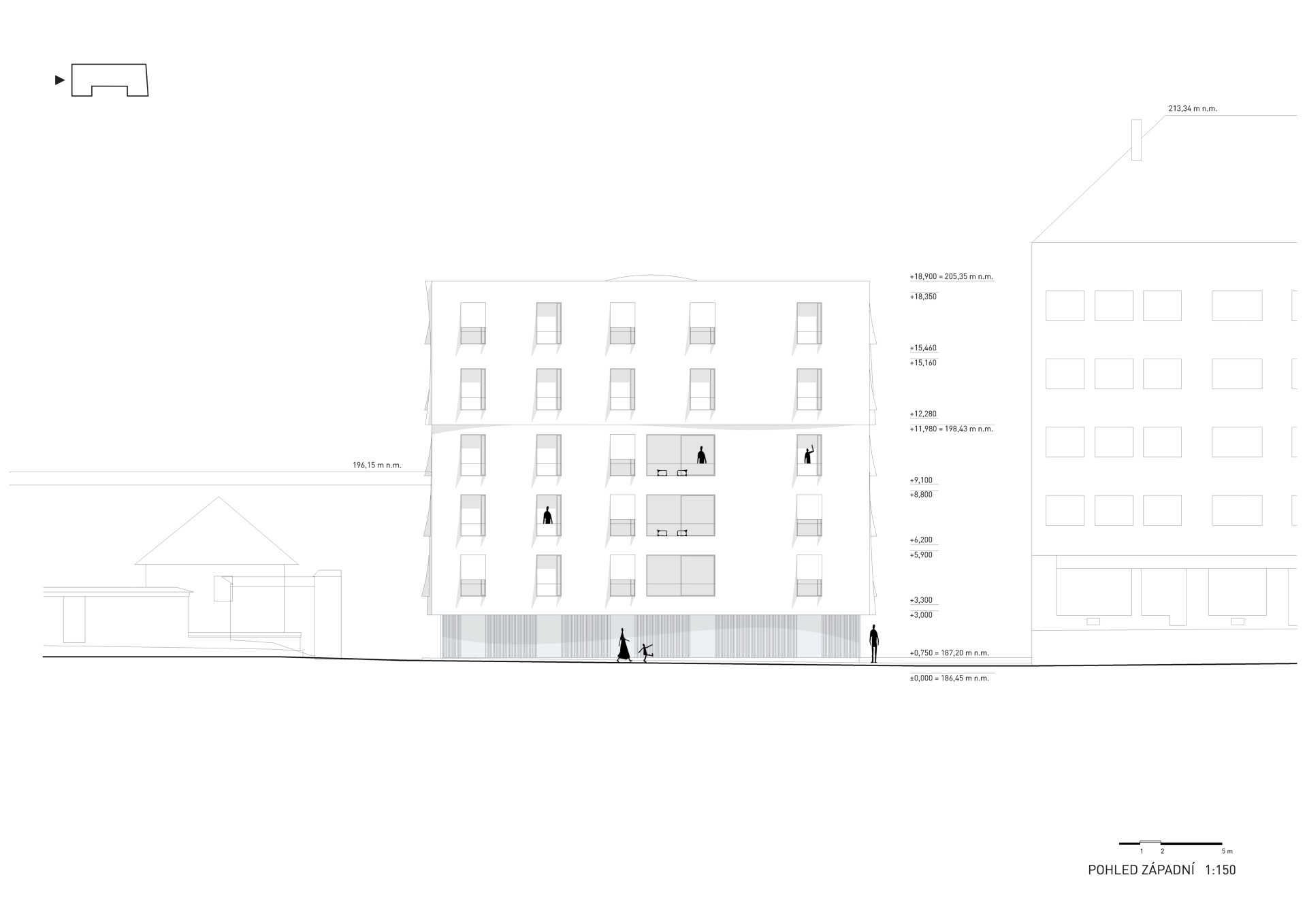
Bytový dům, který dnes na místě roste, je hmotově úplně stejně objemný jako ten, který Zdeněk Fránek navrhl v roce 2012. V kontextu města ho dělá jiným nové řešení fasád – budou mít cihlovou barvu s ručně taženým vroubkovaným rastrem. Ten hraje na stavbě svou roli jak v detailu, tak v dálkových pohledech, ve spodní části bude jemnější, nahoře hrubší. Sofistikované členění fasád, které se na různých místech prohýbají nebo vypukají, přinese například ten efekt, že se nejvyšší podlaží domu specificky zapojí do kontextu střešní krajiny místa.
„Celkové členění objektu požadované památkáři bylo členění vertikální dle původní parcelace. Dále členění horizontální dle tradičního dělení na parter, dolní část domu a střešní krajinu,“ vysvětluje Zdeněk Fránek, který má se stavěním v historických prostředích už početné zkušenosti. Například v roce 2006 byl s realizací souboru domů Eucon v Praze na Žižkově jedním z kandidátů na Cenu Klubu Za starou Prahu za novostavbu v historickém prostředí. Porota tehdy ocenila právě to, jak reagoval na původní parcelaci.
Rezidence U Milosrdných byla navržena na místo, které má roztříštěný charakter a zároveň spadá do městské památkové rezervace. Jako solitér roste na několika parcelách, kde původně stávaly gotické domy, poté nízké barokní s mansardami a vedle nich nakonec i několikapodlažní historizující činžovní dům. Novostavba se svou korunní římsou dostane lehce nad římsu sousední barokní Nemocnice Na Františku, její mansardovou střechu ale nepřevýší. Zůstane také pod úrovní vysokých bytových domů v Kozí ulici – nárožního funkcionalistického od Bohumíra Kozáka i vedlejšího od Ricarda Bofilla a TaK Architects z počátku druhého desetiletí tohoto století. Výrazně se však Fránkova novostavba uplatní v dálkových pohledech z opačného břehu Vltavy – a právě pro ty je zásadní ztvárnění fasády nejvyššího patra.

Zájem o velké celky i detaily
Za zmínku stojí také to, že právě vzhled fasády a způsob osazení oken s výrazně tvarovaným mosazným lemováním tvořícím šambrány, byl důsledně testován. „Okna pro nás speciálně vytvářela firma Jánošík, jde o typ, kdy je zvenčí dřevěný rám přelepen sklem s černým smaltováním, takže vytváří imitaci bezrámového okna. V naší hale na Stodůlkách jsme si připravili mockup, kus fasády, na kterém jsme si vše vyzkoušeli,“ vysvětluje Jan Kukla.
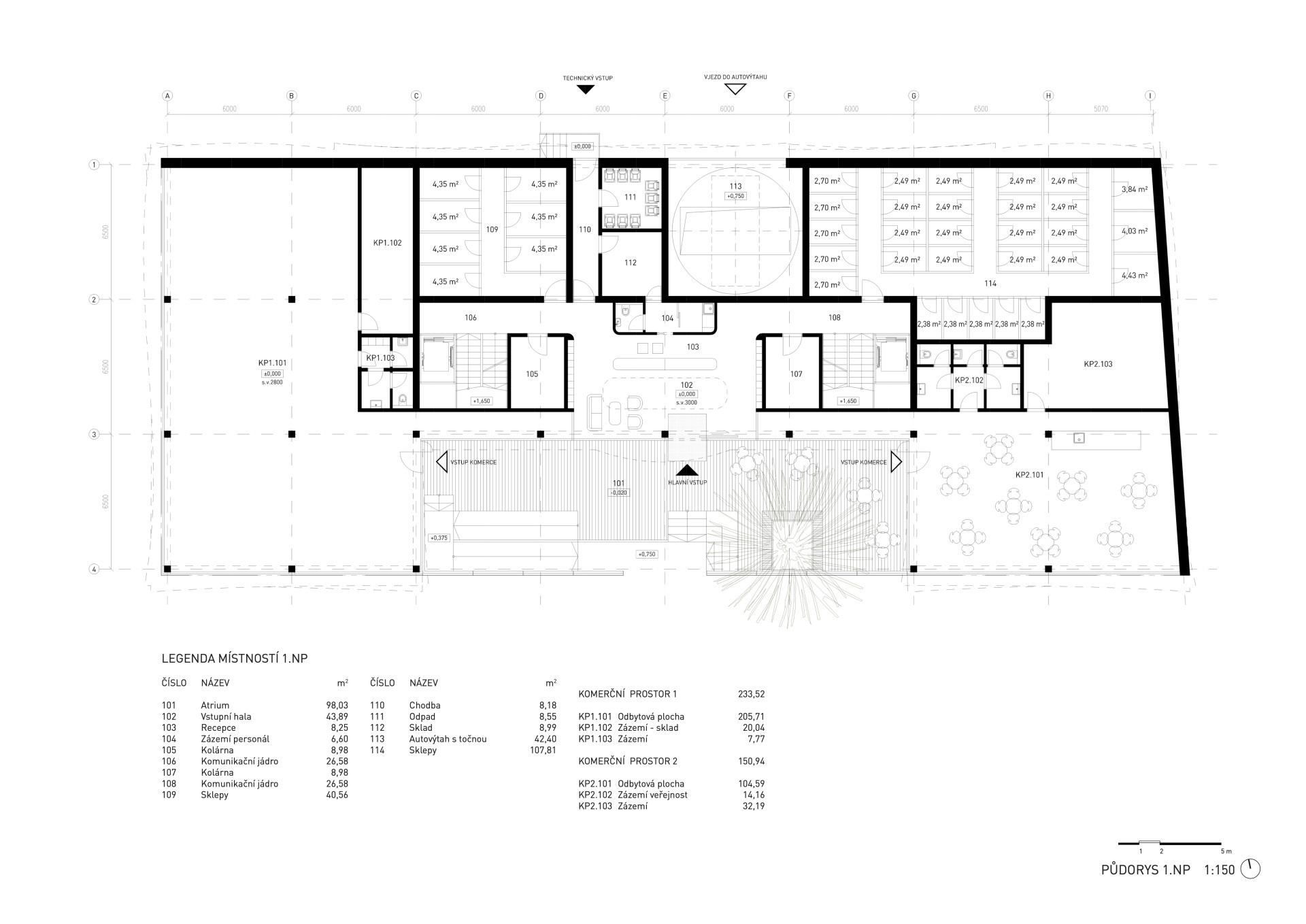
Rezidence U Milosrdných stojí na půdoryse ve tvaru písmene U, svými postranními křídly svírá dvůr, v němž se počítá se vzrostlým stromem. Z tohoto venkovního prostoru se bude dát vstoupit do dvou komerčních zařízení v přízemí, ostatní podlaží už jsou určená pouze bytům, na dvou podzemních úrovních se pak nachází garáže. Nynější výstavba bytové stavby probíhá pod vedením stavební firmy HINTON, konkrétně Divize 02 Praha. „Firma HINTON provádí stavbu jako generální dodavatel včetně monolitických konstrukcí. Zakázka je prováděna ve ztížených podmínkách pro zásobování. Svou realizací je specifická například prohnutá vlnitá provětrávaná fasáda s okenními šambránami − svého druhu jediná v ČR. Naše hlavní činnost spočívá ve výběru dodavatelů a koordinaci řemesel společně s investorem,“ říká Václav Charous, projektový manažer firmy HINTON.

Architektonická kancelář Fránek Architects je také autorem společných vnitřních prostorů v domě, za návrhy jednotlivých bytů pak stojí už pražské studio KarlinBlok, které je koncipovalo tak, aby designově komunikovaly s exteriérem. Všech 27 jednotek nadále zůstane v rukách společnosti CREDITAS Real Estate, která je bude dlouhodobě pronajímat. Vybaveny budou kompletně – od nábytku až po příbory – a v nadstandardní kvalitě. „Všechny byty mají interiéry navržené do posledních detailů a každý byt má svůj osobitý výraz. Nosnými prvky fasády jsou vertikály a mosaz, které jsme promítli i do interiérů bytů. Vertikální linie jsou zakomponované v truhlářských obkladech a kompozici autorských svítidel, mosaz se objevuje na detailech vybavení. Interiér každého bytu vizuálně propojují přírodní prvky − dubové parkety v jemném světlém odstínu v kombinaci s ořechovou dýhou, která se objevuje v detailech jednotlivých kusů nábytku a v případě velkých bytů přechází ve větší plochy na truhlářských obkladech,“ popisují Michal Sůva a Kateřina Ždychová ze studia KarlinBlok.
- Ateliér: Fránek Architects, KarlinBlok
- Autoři: Zdeněk Fránek
- Země: Česká republika
- Autoři interiérů bytů: KarlinBlok - Michal Sůva, Kateřina Ždachová, spolupráce Anna Krajíčková, Hana Dvořáková
- Projekt: 2018-2020
- Realizace: 2022-2024
- Projekt interiéru: 2021-2022
- Adresa: U Milosrdných, Praha
- Development: CREDITAS Real Estate