
Unikátní činžovní dům s pasáží na Starém Městě prošel důkladnou rekonstrukcí. Nadále slouží nájemnímu bydlení
Historický činžovní dům na Starém Městě v Praze prošel komplexní rekonstrukcí, která mu zachovala mnoho z jeho původního charakteru. Stavba, jejíž kořeny sahají až do 14. století, v sobě nyní obsahuje kromě nájemních bytů a prostoru pro restauraci také průchozí pasáž.
EARCH.CZ , 11. 4. 2023
Co je jinde standardem, na Starém Městě v Praze často neplatí. Historické centrum totiž dlouhodobě postihuje odlévání stálých obyvatel a původně obytné domy mění svou funkci. V případě objektu v Havelské ulici tomu ale tak být nemělo.
„V druhé polovině dvacátého století dům chátral, jeho záchranu umožnil teprve majitel, který stále působí v zahraničí. Zadáním byla obnova a vrácení funkce činžovního domu, což je ve vylidňující se čtvrti, postižené turistickým průmyslem a krátkodobým ubytováním, skutečným unikátem. Potomci původních majitelů si také přáli důstojnou a kvalitní obnovu rodinného stříbra,“ přibližují situaci architekti David Wittassek a Jiří Řezák z kanceláře QARTA Architektura, kteří stojí za jeho rekonstrukcí.
Více k tématu
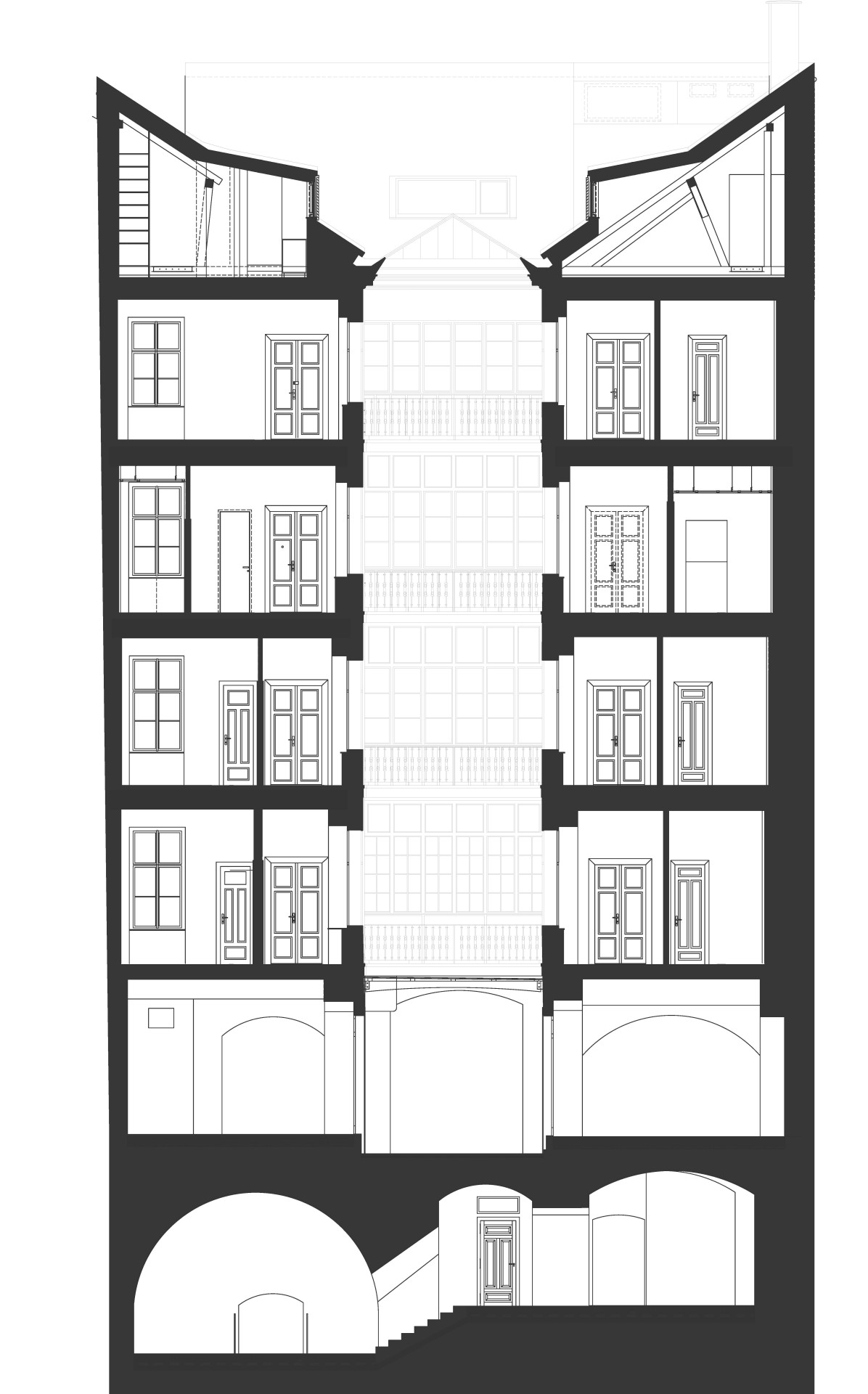
Projekt, na kterém se pracovalo devět let, byl dokončen v průběhu minulého roku. Objekt, který je chráněný jako kulturní památka a navíc stojí na území městské památkové rezervace, jen kousek od barokního kostela sv. Havla, si zvenčí i zevnitř zachoval mnoho ze svého původního charakteru. Směrem do ulice se obrací historizující fasádou z poloviny 19. století, stavební historie objektu ovšem sahá až do středověku. Dnešní dům vznikl v průběhu několika století sjednocením celkem pěti gotických domů.
„Odkrývání historických vrstev nám tak přineslo mnohá překvapení a pochopitelně vyvolalo otázky týkající se dobových stavebních přístupů v konstrukcích i detailech. Pozornost vyžadovala zvláště řemeslná provedení stavebních detailů. Atmosféra domu je neopakovatelná, proto jsme přemýšleli, jak sem přinést nové vrstvy tak, aby ji nenarušily a zároveň odrážely současný přístup,“ uvádí architekt David Wittassek.

Součástí konceptu architektů se stalo vystavení jednotlivých historických vrstev domu na odiv. V domě se dochovalo množství původních prvků, ty při rekonstrukci prošly restaurováním, týká se to například oken a dveří, zámečnických a tesařských prvků nebo podlah z různých materiálů či fasád a omítek. Všechny nové vstupy se k původním hmotám záměrně staví kontrastně, to platí například i u krovu, jehož vyměněné části mají odlišnou barvu od těch původních. Architekti pro nové prvky používali materiály jako sklo, beton nebo kov v jejich ryzí podobě.
Parter domu je navržen pro restaurační využití, ve zbylých patrech se pak nacházejí bytové jednotky, a to včetně podkroví, které je nyní obytné. Vede do něj nové betonové schodiště navazující na historické kamenné.

Dům v Havelské ulici formuje několik vnitřních dvorů, zároveň je průchozí strukturou, kterou se dá dostat až do vedlejší Kožné. Prostupný je dům stále, v největším dvoře byla osazena nová konstrukce, která odkazuje na původní zastřešení, které zde bylo až do druhé světové války. „Současná rekonstrukce obnovila zastřešení dvora v upravené podobě, s historizující estetikou nýtované příhradové konstrukce dle dochované dokumentace,“ říká David Wittassek.
- Autoři: David Wittassek, Jiří Řezák
- Ateliér: QARTA architektura
- Spolupráce: Jan Zmátlík, Jan Havel
- Země: Česká republika
- Město: Praha
- Adresa:: Havelská 27, Praha
- Projekt: 2016
- Realizace: 2022
- Zastavěná plocha: 689 m²
- Plocha pozemku: 830 m²
- Hrubá podlahová plocha: 3560 m²