Architektura / rodinné domy

DDAANN navrhli mezi pražskými paneláky rodinný dům s intimním dvorem

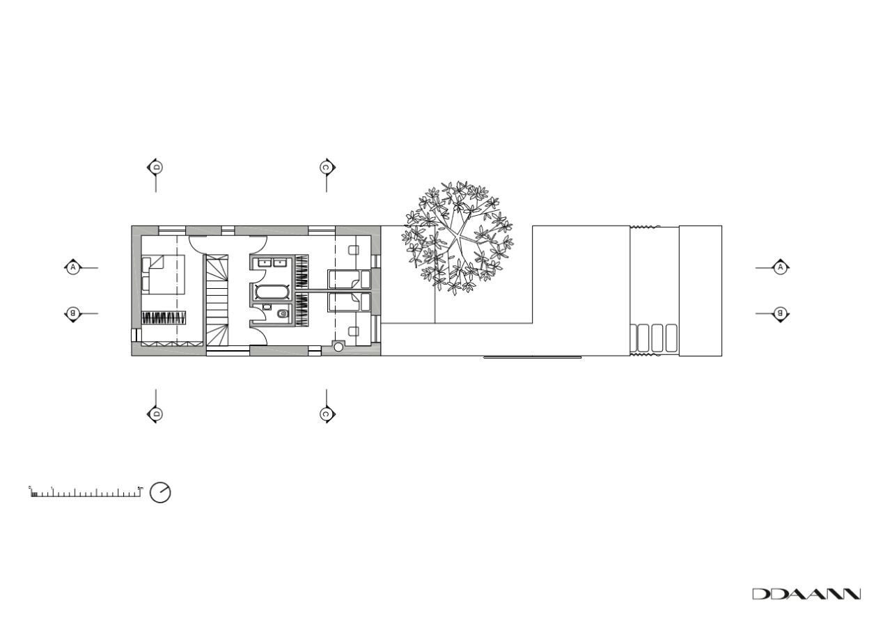
Do okrajové čtvrti Prahy, kde se bytová zástavba panelových domů mísí s rodinnými domky, usadili architekti z místního ateliéru DDAANN rodinný dům, který se uzavírá před hlavní komunikací a naopak otevírá do intimního dvora. Jednoduchá stavba se sedlovou střechou a bilým dřevěným pláštěm ovšem není jedinou stavbou na pozemku. Architekti vytěžili z úzké parcely maximum a rozdělili dům do dvou hmot vzájemně propojených zastřešenou pěšinou. Oba objekty se díky velkým proskleným plochám otevírají klidnému prostoru centrálního dvora a pocitově zároveň zůstávají ve vzájemném kontaktu.

DDAANN , 27. 11. 2018

  • autor: DDAANN *
  • publikováno: * 27. 11. 2018
  • zdroj: * Autorská zpráva

Klíčová slova:

DDAANN Praha

Mohlo by vás zajímat

Generální partner
Hlavní partneři