
Dům – díra. Proč má rodinný dům v Polánce černou fasádu a střechu?
V malé moravské vesnici Polánka si architekt Radek Pasterný postavil vlastní rodinný dům. Je nízkoenergetický a černý. Tvarem a měřítkem ale respektuje okolní zástavbu.
Sára Kročková , 21. 8. 2023 / Advertorial
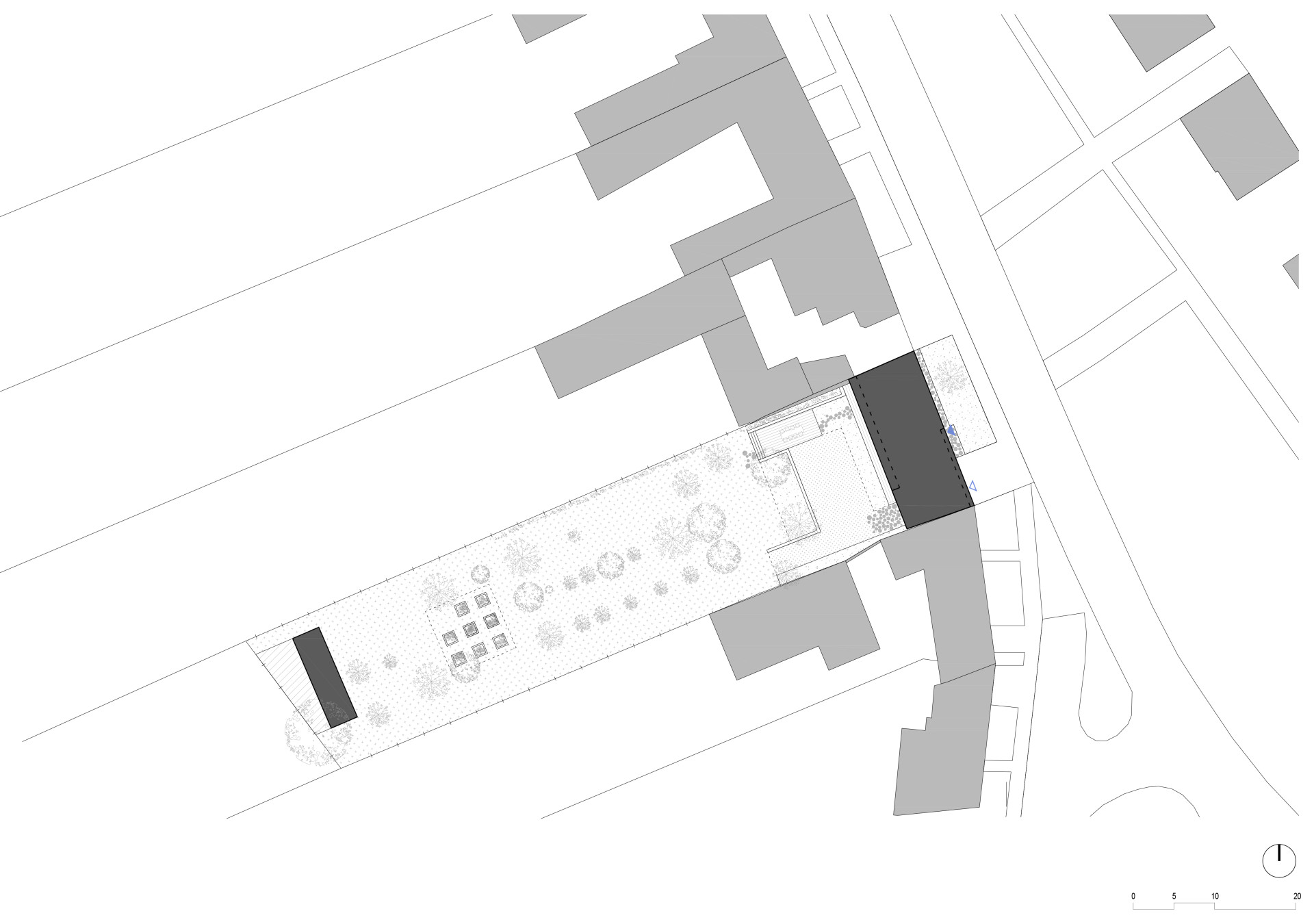
Dům, který pro svou rodinu navrhl spoluzakladatel architektonického studia CL3, se nachází v klidné obci Polánka nedaleko Moravského Krumlova. Radek Pasterný stavbu přizpůsobil okolním objektům, respektive domu, který na místě stával předtím. Novostavbě dal pravoúhlý půdorys, sedlovou střechu a použil tradiční materiály. Dispozičně také reaguje na principy zdejší zástavby. „Pro stavbu jsme zvolili striktní respektující tvarový archetyp domu. Zatímco do ulice působí uzavřeným dojmem, do zahrady se plně otvírá prostřednictvím velké prosklené plochy,“ dodává autor a majitel stavby v jedné osobě.
Více k tématu
Exteriér domu tvoří provokativně kontrastní materiály a barvy. Na fasádu kombinující černou stěrkovou omítku s dřevěným obložením navazuje černá falcovaná krytina. „Černá barva nebyla vybrána náhodně. Je v ní skryta symbolika ‚díry‘. Novostavba vyplňuje díru po původním domu, který nebyl několik let obýván,“ vysvětluje význam použití černé barvy architekt Radek Pasterný.
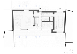
Dům je rozdělený na dva celky – denní a noční zónu. V přízemí funguje společenská část domu s kuchyní, jídelnou, obývací místností. Nachází se zde taky pracovna a technická místnost, skrze kterou se dá projít do garáže.

Interiéry jsou vzhledem k tmavé obálce domu pojaty kontrastně. Převážně bílý nábytek doplňují výrazné dubové masivní prvky. Na podlahách jsou cementové stěrky, stropy odhalují pohledový beton a stěny pokrývá bílá výmalba. Všechny pokoje jsou intenzivně prosvětlené. Obývák s kuchyní komunikuje se zahradou velkorysým francouzským oknem. Do podkroví s ložnicemi a dětskými pokoji se sluneční paprsky dostávají skrze střešní okna, ta dodala firma VELUX.
Novostavba splňuje všechny požadavky pro energeticky pasivní dům. Je tomu tak díky dobře vyřešenému zateplení vnějšího pláště a krovu. K energetické samostatnosti přispívá také systém vytápění – čerpadlo systému země-voda, které dokáže v zimě topit, a v létě dokonce chladit a pasivně klimatizovat celý dům. Dále v objektu funguje řízená rekuperace vzduchu.

Dům svým obyvatelům nabízí dostatek soukromí. Do ulice se otevírá pouze jedním oknem, anonymně ale nepůsobí. Správně zvoleným měřítkem a členěním fasád souzní s okolní zástavbou. Navazování na charakter místa patří mezi vlastnosti, které Radek Pasterný s ateliérem CL3 svým realizacím dává. Podobně tomu bylo i u rodinného domu v Dolních Dubňanech, který stojí přímo na návsi jihomoravské obce.

A jak je to s černou barvou a jejím vlivem na teplotní podmínky uvnitř stavby? „Většina částí fasády směřuje na severovýchod a severozápad, tedy místa, kam slunce příliš nesvítí. Na jižní straně je větší část zastoupena skleněnou fasádou, střecha zde má přesah přibližně 1, 2 metru, a navíc máme možnost tuto plochu zastínit externím žaluziovým systémem. Externí zastínění používáme také pro střešní okna na jihozápadní straně směřující do dvora. Střecha i fasáda jsou opatřeny masivním zateplovacím systémem o tloušťce 320 milimetrů. Dům také disponuje systémem pasivního chlazení pomocí tepelného čerpadla. Tento systém samozřejmě přináší pozitiva i negativa, ale pokud se naučíte vše vhodně používat – žaluzie + čerpadlo + řízené větrání – komfort bydlení je nadstandardní. I v oněch parných dnech, které panovaly minulý měsíc, se teplota v domě pohybovala okolo 23−24 °C, a to včetně podkrovní části,“ popisuje své zkušenosti Radek Pasterný na závěr.
- Autoři: Radek Pasterný
- Ateliér: CL3
- Země: Česká republika
- Město: Moravský Krumlov – Polánka
- Projekt: 2017–2020
- Realizace: 2021
- Zastavěná plocha: 175 m²
- Hrubá podlahová plocha: 295 m²
- Užitná plocha: 257 m²
- Plocha pozemku: 1783 m²
- Náklady: 5 000 000 CZK
- Zahrada: Ing. Stanislav Schwarz, profizahrady.cz
- Statika: Ing. Petr Ducháč
- Osvětlení: Ateh
- Střešní okna: kyvné střešní okno VELUX Premium – GGL 3066 v celodřevěném provedení, doplněné o venkovní stínění
- Fotograf: Tomáš Slavík