Novostavba nebo stoletý? Dům - hádanka od 3+1 architekti stojí nedaleko zámku
Vypadá jako staré stavení, jde ale o novostavbu. Architekti z ateliéru 3+1 dali rodinnému domu v Mníšku pod Brdy archetypální podobu. Zůstal ale prostor i pro současné prvky – na druhý pohled je rozpoznatelné, že o starý dům nejde.
Adéla Vaculíková , 17. 5. 2024
Potok tady zformoval tři rybníky, jsou na jeho toku navlečené za sebou jako korálky. Poslední má název Zámecký, zámek se čtyřmi věžemi se tyčí přímo nad ním. V Mníšku pod Brdy jde o hlavní kulturní památku, kvůli které je jako památková zóna chráněno i přiléhající okolí – centrum města.
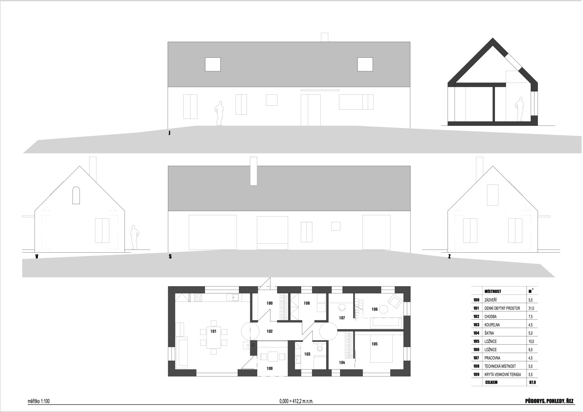
Do územního vymezení zóny spadá novostavba rodinného domu od 3+1 architekti. Charakterizovat by ji šlo jako tradiční dům poučený architekturou typickou pro malá města a obce v Česku. Má podlouhlý obdélníkový půdorys, sedlovou střechu s červenými pálenými taškami a taky niku pro sošku Panny Marie, vybadá tedy jako klasické stavení.

Podle architektů požadovala tradičně vypadající dům „legislativa a ochranářství“. Řekla si o něj ale i parcela, která nedovolila dům připojit vstupem k ulici – jak je to u jiných domů v okolí. Stojí totiž na hluboké parcele a sousedi jsou příliš blízko. Podle architektů se tak novostavba chová spíše jako zahradní objekt, kterých se ale v místě ostatně taky vyskytuje řada.
Zástavba centra Mníšku pod Brdy každopádně není jednotná, je naopak roztříštěná a promyšlené nepravidelnosti tedy snese. Z různě vysokých a natočených rodinných domů vyplývá jedno hlavní pravidlo – drobné měřítko.

„Řešení domu do značné míry okolnostmi formulované nám není ztrátou. Základní téma tradičních materiálů a archetypálního tvarosloví nám tu připadá příhodné,“ komentují výsledek 3+1 architekti. Navrhování domů s tradičním tvaroslovím se ateliér ostatně nevyhýbá – na EARCH.cz jsme prezentovali třeba jejich rodinný dům se sedlovou střechou v Povrlech. Stejně jako ten v Mníšku pod Brdy na sobě nese několik prvků, které svědčí o tom, že jde o moderní a současnou stavbu. V Mníšku jsou to třeba velká pevná zasklení v obývacím pokoji a ložnici nebo betonová stříška nad vstupem.
Více k tématu
Sedlový krov dal podobu taky hlavnímu obytnému prostoru, který se otevírá až do jeho hřebene. Podobně je tomu i u dětského pokoje, který má přímo pod střechou galerii. Interiérům to dodává na vzdušnosti.
Mezi bílým vybavením a světlou cementovou podlahou nakonec vynikají sytě modré okenní rámy. Nápadné jsou už z fasády směřující k ulici. Modré špaletové okno a okénko s půlkruhovým zakončením jsou do ní zasazená asymetricky, dům působí, jako by byl postupně rostlý, je to ale skutečně novostavba.
- Ateliér: 3+1 architekti
- Země: Česká republika
- Město: Mníšek pod Brdy
- Adresa: Za Sokolovnou č.p.368/2, Mníšek pod Brdy
- Projekt: 2017
- Realizace: 2020
- Plocha pozemku: 682 m²
- Zastavěná plocha: 200 m²
- Užitná plocha: 90 m²
- Obestavěný prostor: 550 m³
- Fotograf: Pavel Plánička