Architektura / rodinné domy

Dům pod třešní v malé obci České Kanady

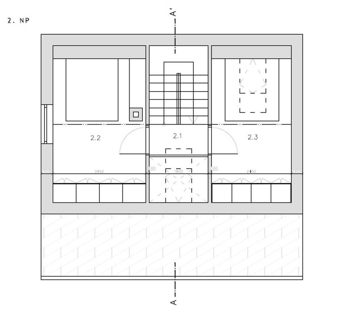
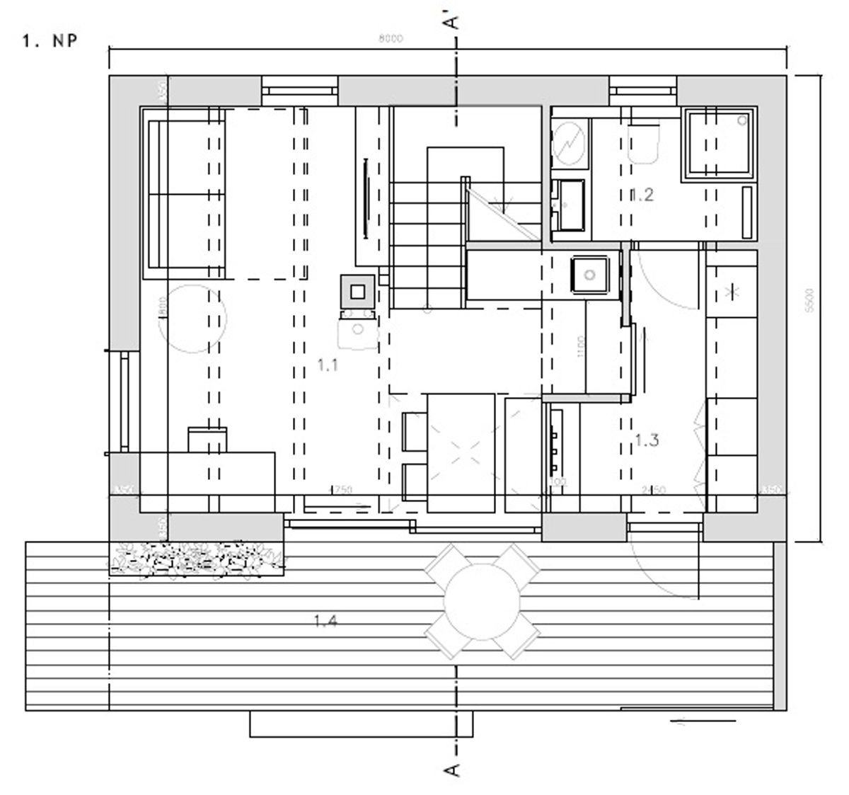
Pražská architektonická kancelář MAJO postavila v lokalitě České Kanady malý domek pro fotografa, který jej pronajímá k rekreačním účelům. Dům se nachází na pozemku v malé obci, jejíž součástí je starší chata. Budova se nachází v těsné blízkosti vzrostlého ovocného stromu - architekti proto projekt pojmenovali Dům pod třešní. Nejvýraznějším prvkem jednoduchého tradičního objemu domu je velkorysá zapuštěná terasa, kterou chání přesah střechy.

majo architekti , 22. 12. 2017

  • Ateliér: majo architekti
  • Země: Česká republika
  • Realizace: 2017
  • Město: Senotín
  • Datum projektu: 2016
  • Realizace: 2017
  • Užitná plocha: 61.00m2

Mohlo by vás zajímat

Generální partner
Hlavní partneři