Kousek za Prahou najdete Trnkovu zahradu. Uprostřed stojí stará kamenná stodola, která se stala domovem mladé rodiny
Chtěli navštěvovat babičku, a tak se za ní přestěhovali. Postavili si novostavbu uvnitř kamenné ruiny.
Viktorie Majoberová , 13. 12. 2024
Václav a Marie jezdili jako děti na Dobříš, do podhůří Brdské vrchoviny, za babičkou. Dnes už mají vlastní děti a chtěli, aby taky ony mohly poslouchat babiččiny příběhy. Když se naskytla příležitost koupit pozemek, který se nachází hned vedle babiččina, bylo rozhodnuto. Koupili takovou „Trnkovu zahradu", uprostřed které stojí stará kamenná stodola. Ta se stala jejich novým domovem.

Torzo v zahradě
Po zakoupení zahrady tu ale pořád byla palčivá otázka - co se stodolou? Objekt, jehož historie sahá minimálně do roku 1912, si o zachování vyloženě říkal. Jenže do náročné rekonstrukce se majitelům dvakrát nechtělo. „Pak jsme ale nahlédli dovnitř a hned jsme věděli, jak s ní naložíme,“ říkají. Ve stodole se rozhodli postavit nový dům. Její kamenné torzo zůstalo, konstrukce byla stabilizována a dovnitř vložena prefabrikovaná dřevostavba.
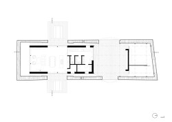
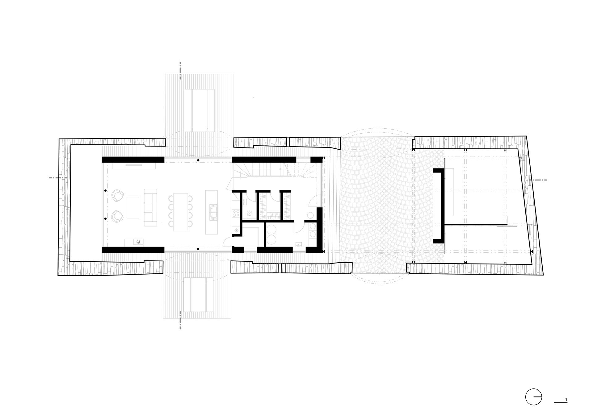
Dovnitř stodoly se vstupuje dveřmi, které se nachází schované v průjezdu. Ocitnete se v přízemí. To je tvořeno především prostorným obývacím pokojem propojeným s kuchyní a jídelnou. Hned vedle vstupní chodby se ještě schovává toaleta, prádelna a technická místnost.

Do druhého patra se jde po schodech, které vedou z obývacího pokoje. Tady najdete dětské pokoje, ložnici rodičů a pokoj pro hosty. Ráno se tu určitě nestojí fronta na čištění zubů, mají totiž dvě prostorné koupelny. V jižní části stodoly je navržena pracovna. Z hlavní ložnice je východ na terasu. Obývací pokoj je také propojen se zahradou hned dvěma terasami. Na jednu svítí slunce ráno a na druhou večer, a tak si můžete si sami vybrat kam se kdy posadíte.
Velkým tématem se v návrhu stala práce se světlem. Aby jej do interiéru pronikalo co nejvíce, je část střechy prosklená. Objekt využívá velkoformátová okna, skrze která proniká do obývacího prostoru světlo svedené po odsazené kamenné zdi.
Stodola rozděluje pozemek na dvě poloviny orientované na východ a západ. V zahradě tak vznikají dvě odlišné atmosféry. Jedna část je více klidná a slouží k odpočinku, zatímco ta druhá má aktivnější charakter – na každou vede jedna z obývákových teras.
Při pohledu na stodolu zvenčí si jako první všimnete původních klenutých průjezdů. Jeden byl zasklen a funguje jako okno do zahrady v hlavním obytném prostoru. Ten druhý slouží jako přístřešek pro parkování a zároveň prostor pro průjezd na druhou polovinu pozemku. U průjezdu se v horní části domu nachází také dílna a venkovní sklad na sezónní sportovní vybavení kryté nadzemním podlažím.
Nové uvnitř starého
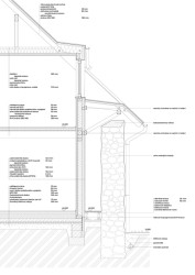
Vložená novostavba se dispozičně podřizuje původnímu zdivu a klenutým otvorům. Konstrukčně je však zcela oddělena. Přechod mezi starým a novým není patrný. „K cihlovo-kamennému torzu obvodové zdi jsme přistupovali s opatrností téměř památkové ochrany,“ popisují architekti ze studia Karnet architekti.

Kamenné zdi, které neměly žádné základy, stabilizovali nadbetonávkou. Odstranili starou střechu a otevřeli původní větrací průduchy. Vnitřní nosné zdi nahradila ocelová konstrukce. Nová základová deska byla umístěna do objektu s takovým odstupem, aby nebyly ohroženy kamenné zdi.
Architektům se podařilo vytvořit hranice mezi interiérem a exteriérem, které se rozplynuly. Hranice, kde historie prorůstá současností a naopak. V ten moment byl objekt připraven na svou novou etapu.
- Ateliér: Karnet architekti
- Autoři: Michael Karnet
- Spolupráce: Vojtěch Kramář
- Země: Česká republika
- Město: Dobříš
- Interiér: Filip Rajman
- Úvodní koncept, vizualizace: Jiří Lukáš
- Projekt: 2020
- Realizace: 2022
- Zastavěná plocha: 240 m²
- Užitná plocha: 287 m²
- Plocha pozemku: 1001 m²
- Náklady: 10 -15 mil. kč
- Fotograf: Petr Polák
- Dodavatel stavby: MARTINICE GROUP
- Truhlář: Milan Krejčí
- Závěsná svítidla Orbiform: Nordlux
- Svítidla Optimus: Rendl Lighting
- Koupelnová baterie Light: Paffoni
- Okenní žaluzie: Almma
- Dřevěné obložení: Bdoors
- Sporák: K&K Poker
- Olejová lazura: Osmo
- Venkovní betonové schodiště: Prefa Brno
- Dlaždice Biophilic, barva šedá: Pastorelli
- Obvodová konstrukce DifuECO Energo: MARTINICE GROUP