Důsledně bílý dům. Světlá střecha je o mnoho stupňů chladnější než tmavá
Malý pozemek stačí. Vešel se na něj pohodlný dům, kde máte pocit, že jste obklopeni zelení. I když zahrady je tu jen pár metrů čtverečných.
Karolína Vránková , 7. 5. 2024
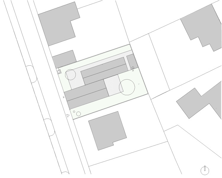
Lysolaje jsou žádaná adresa – jsou součástí Prahy, ale s vesnickou atmosférou, a dokonce kapličkou a posvátným pramenem. Nedaleko od něj se investorce povedlo získat pozemek – což se rovná skoro výhře v loterii.
Pozemek se ovšem nacházel ve staré „vesnické“ části Lysolají a byl tedy poměrně malý – necelých 350 metrů čtverečných. Stál na něm podmáčený domek ze začátku 20. století. Místo něj tu měl vyrůst prostorný současný dům s pracovnou a garáží. Zadání dostali Milena Kubiszová a Ondřej Volný ze studia Skvadra architekti. Našli řešení – udělali domy dva a posunuli je podél podélné osy.

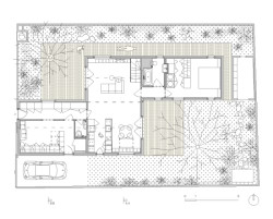
Jeden z objektů je nižší a druhý vyšší. Do domu se vchází tím nižším, původně to měla být garáž, ale slouží jako velká šatna a sklad. V křížení obou hmot je hlavní obývací prostor s pohovkou, jídelním stolem a kuchyní. V druhém, vyšším „stavení“, je ložnice a v podkroví ještě pracovna.
Dům rozčlenil také pozemek. „V místě vnitřních nároží vznikly dvě soukromé terasy. Východní ranní. Západní odpolední. Úhlopříčně jsou přístupné z interiéru obývacího středu domu,“ vysvětlují architekti základ svého konceptu. Z každé terasy je výhled na jeden vzrostlý strom, který ji zároveň stíní a dodává jí intimitu. Jsou tu i další zákoutí, v jednom z nich je ukrytá sauna. Člověk ovšem zahradu využívá, i když je uvnitř domu. Všechna okna vedou do zeleně, která se na pozadí bílých zdí kolem pozemku jeví jako živé obrazy.

Konstrukčně je dům kompletně vytvořen z dřevěných CLT panelů. „Tím vznikly výsledné nosné konstrukce v síle osmi až dvanácti centimetrů a v podkroví odpadly veškeré klasické viditelné konstrukce krovu. Díky tenkým stěnových panelům jsme měli na minimální ploše více místa,“ vysvětlují architekti výhody dřevostavby. Dům je zateplený minerální vlnou.
Více k tématu
Smrkové CLT panely se často nechávají odhalené a stanou se součástí interiéru. Majitelka to však nechtěla. Jen místy je dřevo – je to však obklad, namísto smrkového dřeva se použilo kvalitnější tvrdé v teplém „srnčím“ odstínu. Jinak je dům důsledně bílý – bíle omítnutý zevnitř i zvenčí, má bílý plot a dokonce střechu. Ta ho prý nečekaně dobře chrání proti přehřívání. „I když na ni praží slunce, udržíte na ní ruku,“ říká architekt Ondřej Volný.
- Ateliér: skvadra architekti
- Země: Česká republika
- Město: Praha - Lysolaje
- Zastavěná plocha: 115,85 m²
- Plocha pozemku: 344 m²
- Obestavěný prostor: 413,0 m³
- Fotograf: D. Dostálková
- Montáž dřevěné konstrukce: Dřevostavby MC
- Kompletní realizace: POP Building
- Statické řešení: 2M Static
- Korekce konstrukčních detailů CLT: A2 Timber
- Nábytek na míru: JRV interier
- Okna a dveře: Josko
- Interiérové dveře: Dorsis