Dva domovy, jedna stavba. Přízemní dvojdům v Praze se nese ve znamení střídmosti a praktičnosti
V Klánovicích u Prahy vyrostl symetricky komponovaný dvojdům, v němž střídmost střídají vzpomínky na tropickou Indonésii.
EARCH.CZ , 26. 8. 2022
Architekt Jakub Chochola navrhl pro investory, kteří propadli lásce k Indonésii, rodinný dvojdům korespondující s jejich životním stylem. Jednopodlažní stavba s podlouhlým půdorysem se proto nese ve znamení střídmosti, přívětivosti a maximální praktičnosti.
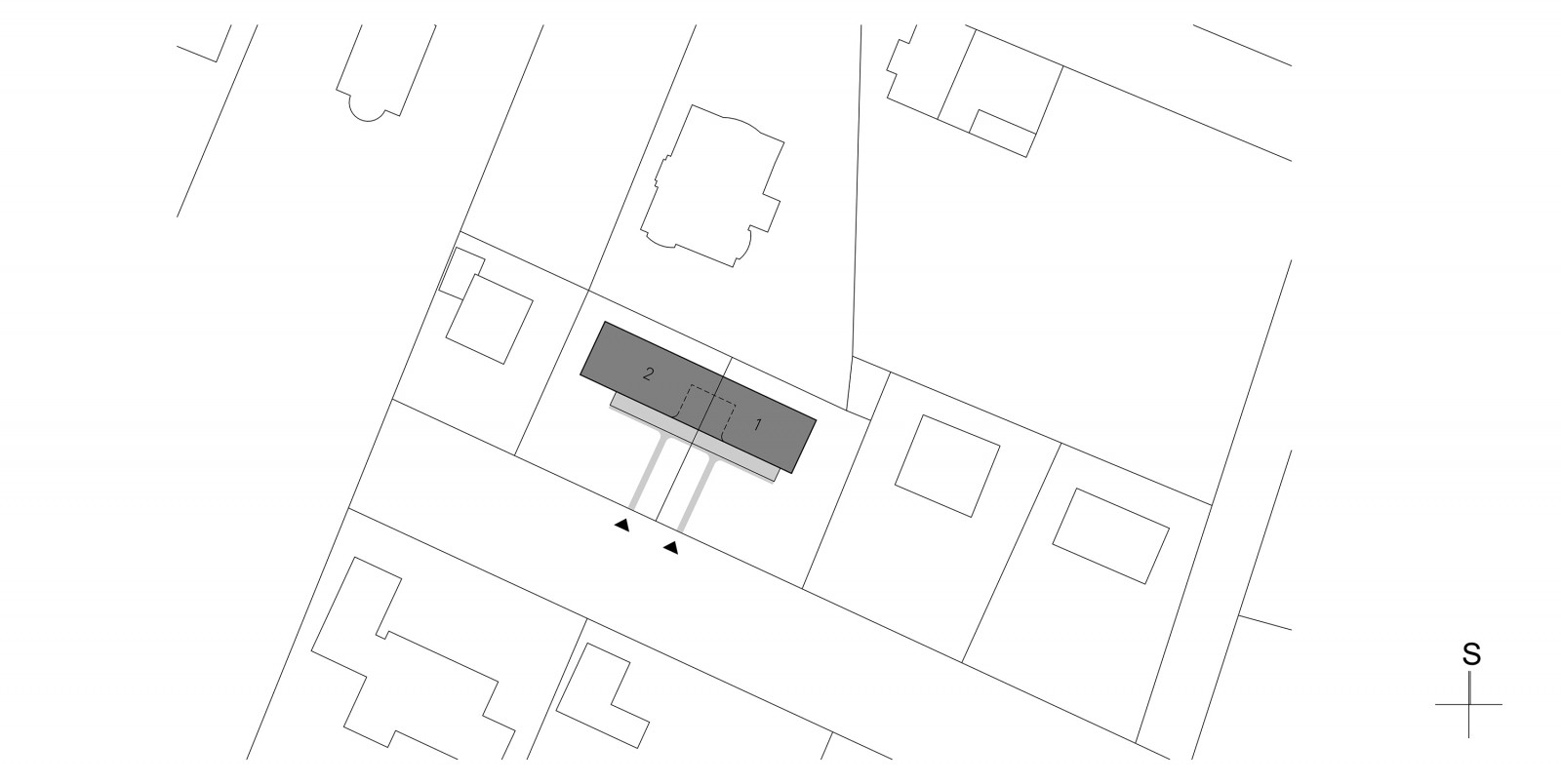
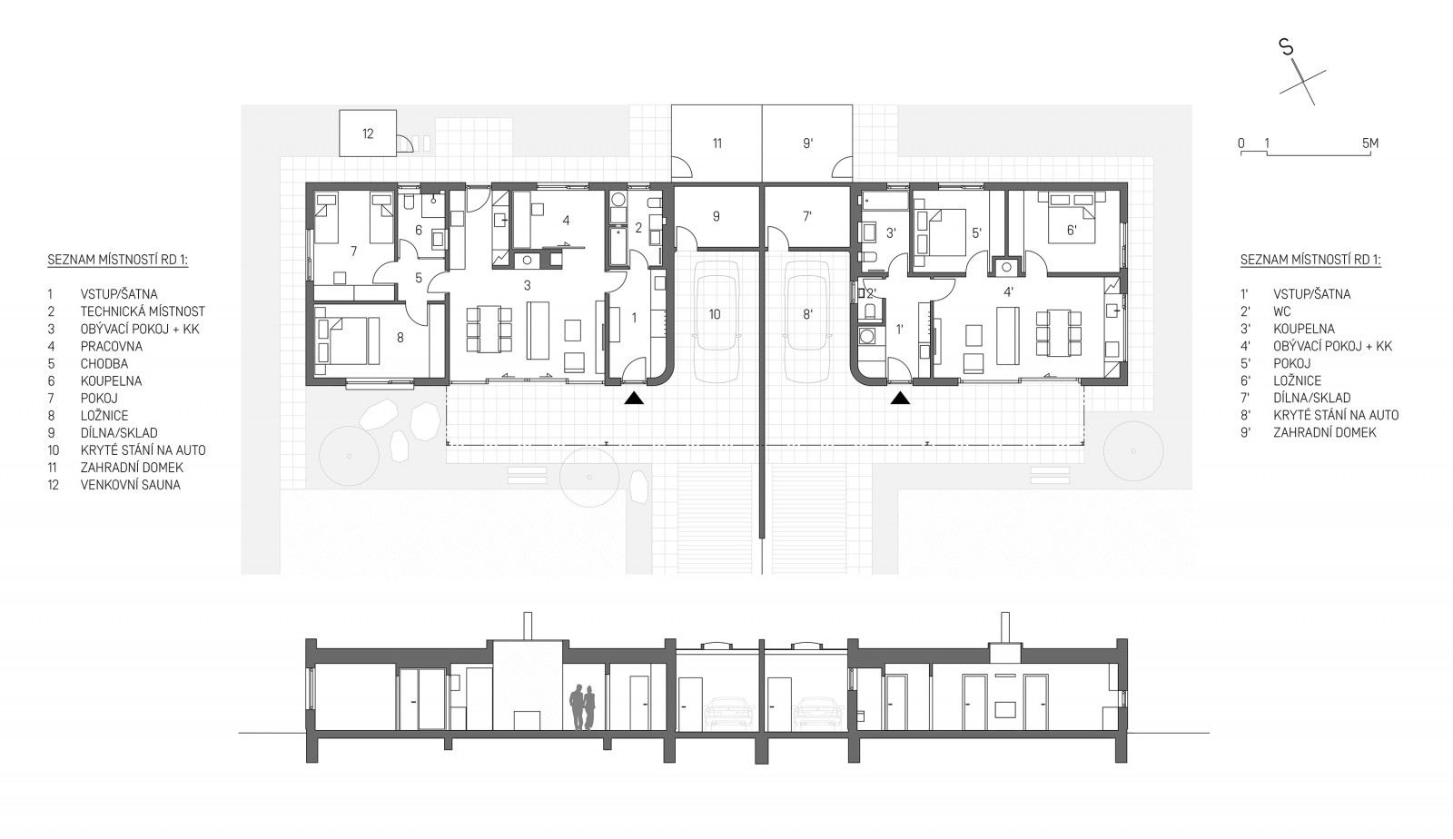
„Původní pozemek se starým a již nevyhovujícím rodinným domem o rozloze 1 060 m² byl rozdělen na dva stejně velké pozemky o rozloze 530 m². Byly na něj navrženy dva nezávislé domy se společnou dělící stěnou na hraně pozemků. Každý dům má jinou dispozici, ale do ulice se tváří jako jeden,“ vysvětluje Jakub Chochola. Dodává také, že západní část domu je určená ke stálému bydlení, ta východní slouží jako „chata“ pro část rodiny žijící v zahraničí.
Více k tématu
Domy, které stojí v Klánovicích nedaleko místního lesa, odděluje stěna z betonových tvárnic. Vše je komponováno co nejvíce symetricky. V průčelí se nachází dvě krytá parkovací stání. Do racionální skladby přinášejí ozvláštnění zaoblené stěny. Obytné pokoje se směrem do zahrady otevírají velkoformátovými okny a prosklenými dveřmi. „Na jižní fasádě z domu vystupuje ocelová pergola, která chrání velká okna před přehříváním a kryje terasu a vstupní prostor před deštěm,“ dodává architekt.
Bílá a šedá barevná paleta se z exteriéru přelévá i do interiéru rodinného domu. Místnosti jsou vybavené vestavným nábytkem šetřícím prostor. Betonové podlahy a bílé vybavení místy ozvláštňuje dýha z různých druhů dřeva, obklady s orientálním vzorem nebo třeba travertinové obložení krbu. Své místo zde našel i suvenýr přímo z Indonésie – větrací kamenná dlaždice umístěná v koupelně.

Sám architekt říká, že dům navrhl tak, aby v něm nic důležitého nechybělo, ale zároveň ani nic nepřebývalo. Na pozemku se nicméně nachází i zahradní domek, dílna a finská sauna – vše je přitom „uklizeno“ za dvojdům, na obytných místnostech funguje nezávisle a nepřekáží v zahradě plné záhonů květin a keřů. „Menší dům znamená menší finanční investici, méně starostí s údržbou, menší provozní náklady a v neposlední řadě méně stresu,“ dodává architekt na závěr.
- Autoři: Jakub Chochola
- Země: Česká republika
- Město: Klánovice
- Realizace: 2018-2020
- Zastavěná plocha: 254 m2
- Užitná plocha: 179 m2
- Plocha pozemku: 1060 m2
- Obestavěný prostor: 850 m3