Fakultní budova v Katovicích propojuje historii se současností
Parcela se starou budovou, fakulta televizního a rádiového vysílání a vypsaná architektonická soutěž. Tak by se daly ve zkratce shrnout výchozí podmínky projektu v polských Katovicích, jehož výsledek sklidil mezinárodní úspěch završený zařazením do užšího výběru nominovaných projektů v rámci Ceny Evropské unie za současnou architekturu – Mies van der Rohe Award 2019. Fakultní budova Slezské univerzity od španělského studio BAAS a polské kanceláře Grupa 5 Architekci plně využívá plochu parcely a doplňuje profil ulice, zároveň ale nenarušuje charakter okolní zástavby.
Vojtěch Eliáš , 17. 3. 2023
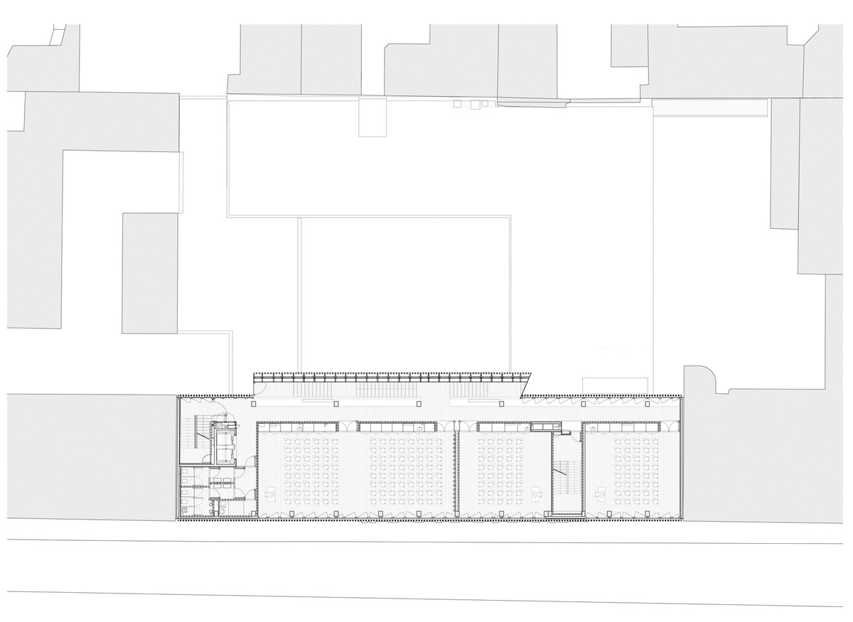
Část řešené parcely v centru Katovic zabíral opuštěný objekt, který měl nové stavbě ustoupit. Architekti se jej ovšem rozhodli zakomponovat do impozantní fasády z keramických tvárnic, které materiálově odpovídají lokální zástavbě a vytvářejí tak krásnou synergii staré a moderní vrstvy. Fakultní budova dodržuje uliční čáru a směrem do vnitrobloku se snižuje, reaguje tak na zadní slepé fasády stávajících domů. Přímo z ulice se můžeme volně dostat až k centrálnímu atriu, kde se fasády objektu otevírají a jsou z větší části prosklené. V suterénu se pak nacházejí parkovací místa, díky kterým auta nepřekážejí na přilehlém chodníku.
Pro stavbu jako celek je typické použití dutých tvárnic, které jsou pokládány na plocho, tak aby umožnily prostup světla. Tento motiv se promítá po celé předsazené fasádě a vytváří výrazný geometrický rastr. Tento princip najdeme také v interiéru, kde slouží jako příčky. Vznikají tak oddělené prostory, které ale stále působí otevřeně a vzdušně.
Více k tématu

Původní objekt nově slouží jako dvoupatrová knihovna, v nové budově vznikly učebny, nahrávací studia, ateliéry a kanceláře. V interiéru se odráží jednoduchost, čistota materiálů a přiznané konstrukce. Díky žebrovanému stropu se tak schová nezbytná technika. Interiéru dominuje cihla, doplněná o beton, sklo a kov. Propracovaný systém prosvětlení dává chodbám pocit vzdušnosti a otevřenosti. Systém stínění prosklené fasády ve vnitrobloku vytváří dojem výrazné vertikality, který dále umocňuje propojení pater, velká schodiště a ochozy. Jemným doplněním celého interiéru je dřevěný nábytek na chodbách, který působí velmi lehce, jako by téměř splýval s prostorem.

Výrazná hmota, která svou fasádou tvoří velkou část ulice, zapadá mezi zástavbu svou výškou i uliční čárou. Návrh vzešel z vypsané architektonické soutěže, zachoval stávající objekt, a plně využil parcelu. Do jedné hmoty vložil veškerý potřebný provoz fakulty, otevřel vnitroblok a vytvořil venkovní prostor chráněný od ulice. Detailní pojetí celé fasády vychází z tradiční polské cihlové architektury, její pojetí ale zcela jasně odpovídá principům moderní architektury. Nutno dodat, že čelní fasáda svým zkosením a použití čtvercového rastru, lehce připomíná budovu Nové scény Národního divadla v Praze od Karla Pragera.


- Země: Polsko
- Město: Katowice
- Ulice, číslo: Pawła 3
- Datum projektu: 2011
- Realizace: 2017