Funkcionalismus po babičce. Byt z první republiky přizpůsobený dnešní době
Mladá rodina zdědila byt po předcích ve funkcionalistickém domě v Praze na Letné. To je dobrý začátek – bylo ale potřeba hodně úprav, aby se v něm dalo současně a pohodlně bydlet.
Karolína Vránková , 20. 2. 2026
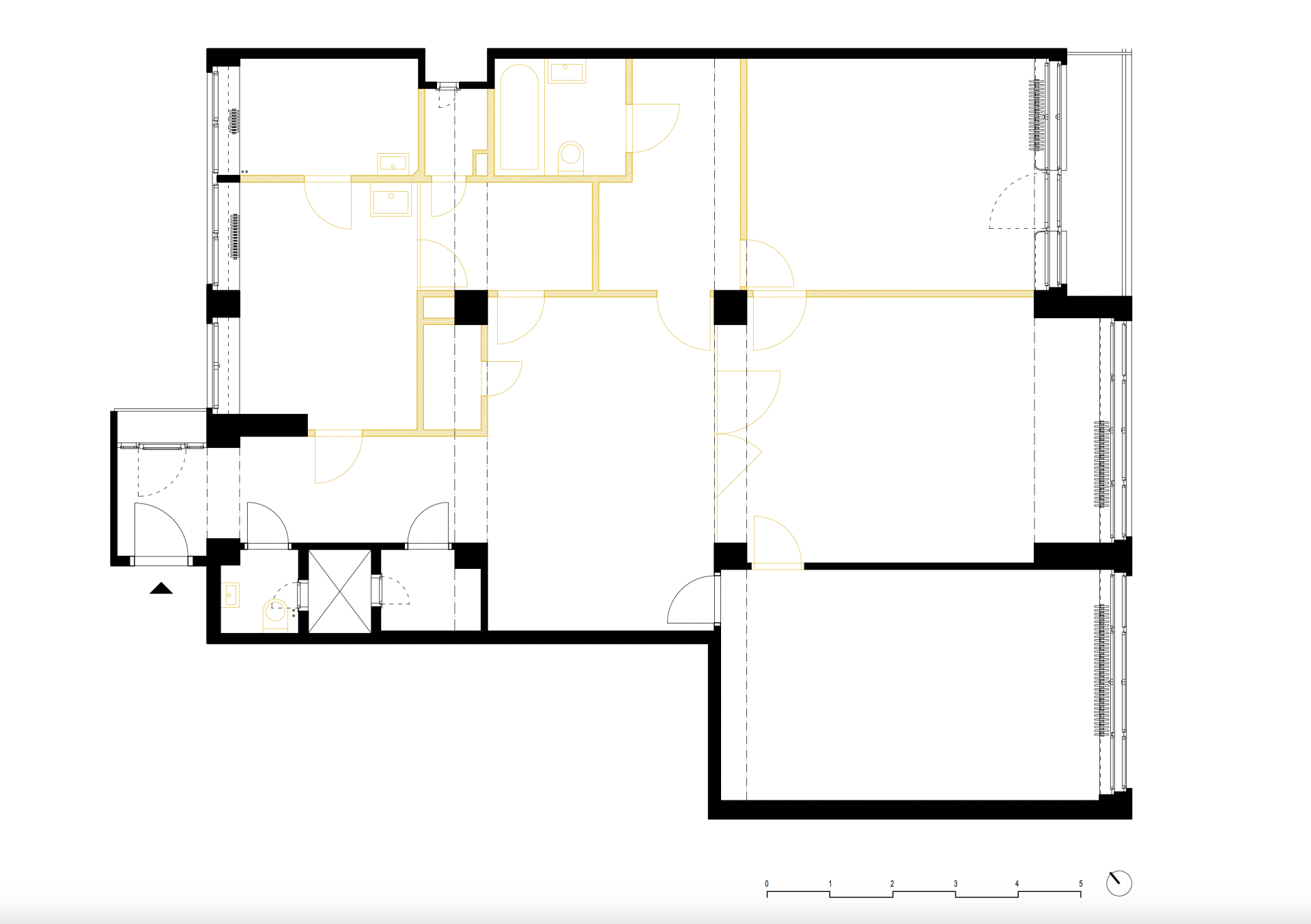
Byt 3 + 1 se dochoval v původním stavu, měl stará okna, dveře či dveřní kliky. Zároveň byl hodně opotřebovaný. „Dispozice byla stísněná se spoustou malých kumbálků a temnými chodbami,“ vzpomíná architektka Lenka Míková. Dala si za úkol přivést sem světlo a vzduch.
Výhodou byla skeletová konstrukce domu, takže nebyl problém zrušit některé příčky – architektka toho využila a k zemi šla stěna jednoho pokoje, pokojíku pro služku i koupelny. „Najednou jsme viděli ten velkorysý prostor,“ vzpomíná architektka.

Aby si tenhle rozměr bytu každý mohl užít, nechala volný průhled od vchodu až k fasádě. Uprostřed bytu umístila nové jádro s kuchyní a dvěma koupelnami, navázanými na původní stoupačky. To je možné celé obejít a tahle „obíhačka“ rovněž přispívá k dojmu volného prostoru.
Hlavní místností nové dispozice je velký obývací pokoj s kuchyní. Dále tu je ložnice s okny do dvora a další pokoj s výhledem do ulice. Do bytu se vešla také šatna a polouzavřená pracovna.
Nešlo jen o dispoziční změny, byt dostal také nový interiér, kde se napínavým způsobem potkávají různé barvy a materiály. V obývacím prostoru dominuje kamenný kuchyňský ostrůvek s černobílou kresbou. S tou koresponduje struktura betonu na odhalených konstrukcích a také jemně růžová kořenová dýha na šatně a posuvné stěně. Další vzor dodává černobílý umělý kámen na podlaze, a výsledkem je jemná hra struktur a odstínů.
Podporují to i původní prvky: v jedné části se zachovaly původní parkety, repasí prošly i některé původní dveře a kliky. Zároveň se myslelo na současný komfort – ložnice a pokoj mají akustické předstěny, také ve stropech je akustická izolace. Bydlení funguje v dnešním standardu, a duch letenského funkcionalismu zůstal.
Více k tématu
- Ateliér: Lenka Míková Architekti
- Autoři: Lenka Míková, Jan Plašil, David Poloch, Magdaléna Buza
- Země: Česká republika
- Město: Praha 7
- Užitná plocha: 135 m2
- Fotograf: Honza Zima
- Dveře: Dorsis
- Podlahy: repasované masivní dubové parkety, nově doplněné recyklované masivní dubové parkety, merrazzo dlažba RMC
- Obklady: merrazzo RMC (konglomerovaný kámen) , keramický obklad Ceramica Vogue
- Povrchy stěn: interiérový bílý nátěr, omývatelné barevné nátěry
- Kuchyně: Sedlák Interier
- Truhlářské prvky: Target Design – laminové desky Kronospan, dýhované desky – bělená Alpi dýha, perforované kovové lakované plechy
- Radiátory: stávající repasované článkové radiátory, nové článkové radiátory Isan, otopné tyče PMH
- Baterie: Grohe
- Svítidla: souhrnná dodávka Bulb , závěsné svítidlo &Tradition (nad jídelním stolem), nástěnná svítidla Zangra, zapuštěná svítidla Modular
- Koncové prvky elektro: Jung LS 990
- Modulární pohovka na zakázku: Sofa Tkadlec
- Konstrukce: odhalené betonové průvlaky a sloupy, příčkové tvárnice Ytong, SDK předstěny, SDK podhled s izolací (minerální vata)