Původní dřevěná podlaha kontrastuje s novými odstíny modré a žluté. (Markéta Janderová, rekonstrukce bytu v Praze - Vokovicích)
Původní dřevěná podlaha kontrastuje s novými odstíny modré a žluté. (Markéta Janderová, rekonstrukce bytu v Praze - Vokovicích)
Architektura / interiér

Rekonstrukce bytu po dvaceti letech. Do interiéru vstoupily tři odstíny modré

Byt v pražských Vokovicích prošel rekonstrukcí. Jeho středobodem se stala výrazná tyrkysová kostka, která organizuje prostor i úložné funkce. Modrá je i kuchyně a radiátory.

Kateřina Hrachová , 25. 2. 2026

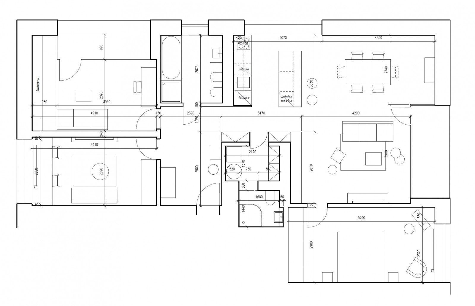
Obytný soubor Na Krutci v pražských Vokovicích od ateliéru Kuba & Pilař architekti patří k tomu nejlepšímu z bytové výstavby let nultých. Jeden z bytů tu nedávno prošel rekonstrukcí. Kvalita původního architektonického návrhu i materiálů se stala přirozeným východiskem rekonstrukce od Markéty Janderové. Dispozice bytu zůstala z větší části zachovaná, proměnou však prošel interiér, který novým majitelům již přestal vyhovovat. 

Interiér se očistil od podhledů, ozdobných lišt a dalších dekorativních prvků. Z původního stavu se zachovala pouze tmavá dřevěná podlaha, která se stala důležitým kontrastním prvkem nového řešení. Největší proměnou prošel prostor obývacího pokoje a hlavní koupelna.

Středobodem celého bytu se stala výrazná hmota tyrkysové kostky, kolem které přirozeně plyne prostor od vstupní chodby až po obývací pokoj s kuchyní. Kostka v sobě integruje vstupy do technické místnosti a menší koupelny a zároveň koncentruje potřebné úložné prostory: v předsíni ukrývá vysokou skříň s botníkem, v chodbě policovou skříň, v návaznosti na kuchyň spíž a směrem do obývacího pokoje se otevírá v podobě knihovny.

Foto: Použité dřevo dodává ložnici pocit tepla.

Řešení bytu pracuje s barevnými odstíny, hlavně se třemi odstíny modré, které interiéru dávají hravost a prostorovou hloubku. Jednotlivé tóny se uplatňují na různých plochách a v různých světelných podmínkách, čímž se hmota v průběhu dne proměňuje a reaguje na pohyb obyvatel i světla v prostoru. Modrá zde není chladným akcentem, ale nosným tématem, které propojuje jednotlivé části bytu a dává mu jasnou identitu. Jiné prvky vybavení jsou k modrým kontrastní, jde o tmavou podlahu, černé okenní rámy nebo červený obklad lodžií.

Pracovní plochu nebesky modré kuchyně rozšířil kuchyňský ostrůvek, s vloženou vinotékou a dalšími úložnými prostory. Pracovní deska i obklad kuchyně jsou z přírodního kamene, jehož výrazná textura vyvažuje hladké plochy nábytku a barevnost interiéru. Neutrální tón stěrky, bledé odstíny kuchyně, bílé stěny a stropy i nenápadná stropní svítidla dávají vyniknout dominantním barevným akcentům. Černá barva v detailech navazuje na okenní rámy a změkčuje jejich kontrastní působení.

Foto: Tři odstíny modré použité v chodbě bytu

Součástí návrhu byla i práce s původním vybavením bytu, část nábytku se zrenovovala, vestavné skříně v ložnici dostaly nová dýhovaná dvířka a korpus skříně v předsíni doplnily dveře s celoplošným zrcadlem, které opticky zvětšuje vstupní prostor.

Důležitou roli v interiéru hraje také návrh osvětlení. V obývacím pokoji je zkombinováno několik světelných zdrojů s možností stmívání, které umožňují přizpůsobit atmosféru různým situacím během dne. Ve všech místnostech se zároveň počítá s nočním režimem svícení, který podporuje komfortní užívání bytu i v klidových hodinách.

  • Autoři: Markéta Janderová
  • Země: Česká republika
  • Realizace: 2021–2022
  • Město: Praha 6
  • Realizace: 2021–2022
  • autor: Kateřina Hrachová *
  • publikováno: * 25. 2. 2026

Mohlo by vás zajímat

Generální partner
Hlavní partneři