Hangár na letadla s korunou z laminátu
Hangár u Zbraslavic je ukrytý za horizontem. Studio Raketoplán ho umístilo tak, aby v krajině nevyčníval. Ale klidně by mohl, je to působivá architektura.
Adéla Vaculíková , 8. 8. 2025
Hangáry bývají objemné a tím nápadné. Ostatně musejí pojmout letadla, a případně další velké stroje. Ve Zbraslavicích – obci vzdálené 20 kilometrů od Kutné Hory – ale vznikl hangár, který se v krajině ztrácí. Schovává se za valem, za zelenými stěnami a vyjevuje se hlavně po setmění, kdy se zevnitř rozsvítí.

Studio Raketoplán na zbraslavický (aero)hangár posadilo korunu z laminátu, který dovnitř propouští světlo. Stejně jako celá stavba ale zůstává i laminátová koruna decentní. Zvýrazňuje obrys daný dvěma pultovými střechami s rozdílným sklonem. Společně formují téměř sedlovou střechu se zlomem uprostřed – ten funguje jako praktický světlík a osvětluje vnitřek hangáru po celé jeho délce.
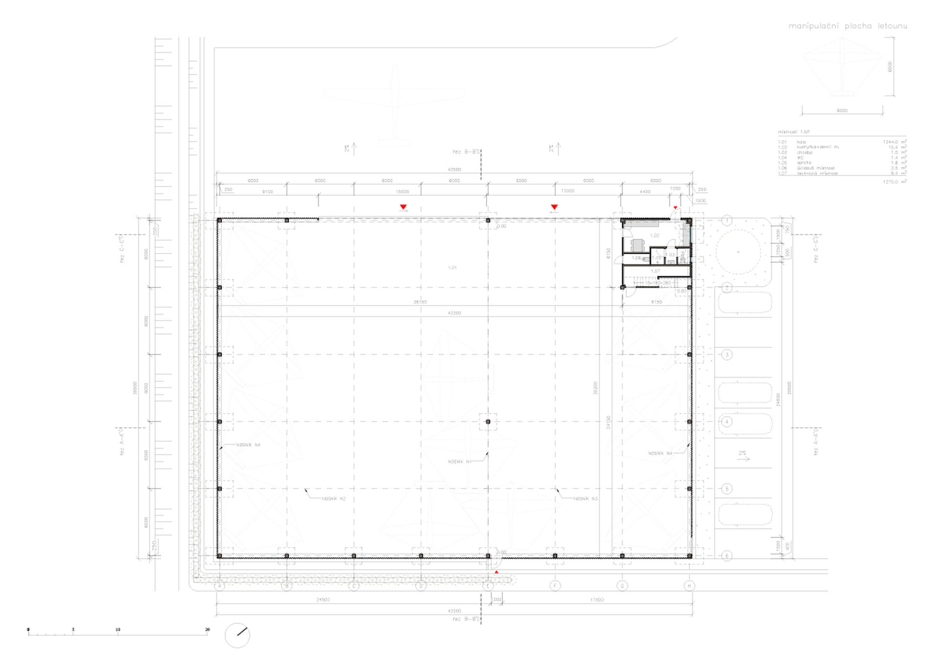
Hangáry obvykle kryjí rozsáhlé podlahové plochy a mají vysoké stropy. V dějinách architektury se na ně proto zkoušely nové materiály i konstrukční principy. Třeba ve francouzském Orly se už roku 1920 testovala parabolická betonová skořepina – ideální pro vzducholodě, protože nevyžadovala sloupy. Podobný požadavek platil i nyní ve Zbraslavicích: aeroklub chtěl co nejvíc otevřený prostor pro snadnou manipulaci s letadly.
Architekti proto navrhli konstrukci, která do prostoru zasahuje jen jediným sloupem – stojí uprostřed hangárové haly. „Požadavky na manipulační prostor vyčistily půdorys rastru 5×7 čtverců (o stranách 6×6 m) tak, že zbyl pouze jeden sloup. Další sloupy jsou rozestaveny po obvodě a zavětrované v rozích diagonálami,“ popisuje Studio Raketoplán. Sloupy v interiéru vynášejí přiznané nosníky, které podpírají střechu. „Sloupy po obvodu nesou dvě osnovy 24 a 18 metrů dlouhých nosníků. Obě tyto osnovy se potkávají asymetricky. Ve směru této osy je pnut nejvyšší a nejvíce zatížený nosník celé konstrukce, který je podepřen jedním, zmíněným sloupem,“ vysvětlují konstrukční řešení dále architekti.
Aby se utilitární stavba dobře používala, přizpůsobilo se tomu vše. Objekt má dvoje různá vrata. Venku je zpevněná plocha, na kterou mohou letadla dobře vyjíždět. V souvislosti s lineárním světlíkem ve zlomu střechy stojí za zmínku, že je orientovaný na sever a dovnitř skutečně propouští pouze světlo, nikoliv teplo. V zimě se vytápí pouze malé zázemí – dá se v něm přespat, je tu kuchyňka i koupelna.

Stavba funguje v mnoha ohledech soběstačně. Solární panely na střeše pokrývají spotřebu elektřiny, přebytky se ukládají do baterií. Na zalévání okolní výsadby a splachování toalet slouží dešťová voda z retenční nádrže. Pitná voda se čerpá z vlastního vrtu. Dvě ze stěn hangáru jsou navíc osázené zelení – z fotografií zatím moc patrné nejsou, ale časem stavba zaroste.
Hangáry obvykle architekti nenavrhují, takže na jejich estetiku nikdo moc nedbá. I v tomto je zbraslavický hangár výjimkou. Je přitažlivý, svým tvarem i použitými materiály, které k sobě ladí jak barevně, tak svou strukturou. Laminát i plechy mají shodné vlnité rastrování.
Více k tématu
Architekti navíc vědomě řešili i vztah hangáru ke krajině. „Umístění haly jsme navrhli tak, aby krajina netrpěla. V pohledu od vesnice zakrývá stavbu kopec. Od luk, polí a lesa ji stíní dvě zelené stěny. Krajinné výhledy zůstaly zachovány přírodě,“ píší ve své autorské zprávě. Ze Zbraslavic tedy hangár téměř neuvidíte. A právě proto stojí za to ho navštívit – za valem se vám odhalí originální, za tmy zářící, architektura.
- Ateliér: Studio Raketoplán
- Autoři: Radek Vaňáč, Pavel Nalezený
- Spolupráce: Lukáš Bartheldi, Tomáš Hucek, Adéla Krídlová
- Země: Česká republika
- Město: Zbraslavice
- Investor: Gramex
- Projekt: 2021
- Realizace: 2022–2024
- Fotograf: Petr Polák Studio
- Statika: LLENTAB
- Dodavatel: LLENTAB, ATOS Ledeč nad Sázavou
- Plocha pozemku: 11 618 m²
- Zastavěná plocha: 1 290 m²
- Hrubá podlahová plocha: 1410 m²
- Užitná plocha: 1350 m²
- Obestavěný prostor: 8575 m³