I technické zázemí technických služeb může být architekturou, dokazují svým projektem pro Lysolaje Progres architekti
Nízký objekt utilitárního charakteru se částečně noří do terénu, aby tak přílišně nevyčníval a současně mohl fungovat v energeticky úspornějším režimu. Podoba stavby jasně odpovídá účelu, chytrá technická řešení pak napomáhají k jeho udržitelnému provozu.
EARCH.CZ , 25. 5. 2023
V Česku stále vzniká jen velmi malé procento všech staveb s přispěním lidí s architektonickým vzděláním. V případě technických a ryze utilitárních staveb se pak s architekty a architektkami nepočítá prakticky vůbec. Pokud ale dostane architektonický ateliér příležitost takové objekty navrhnout, obvykle to přinese velmi pozoruhodné výsledky s nečekanými kvalitami. Příkladem mohou být garáže pro zemědělskou techniku od Atelieru 111 architekti, zázemí golfového rezortu od architektů Papouška se Šilhanem, technické zázemíTřebešic z dílny DOMYJINAK nebo areál služeb a hasičů v Líbeznicích od Ehl & Koumar architekti.
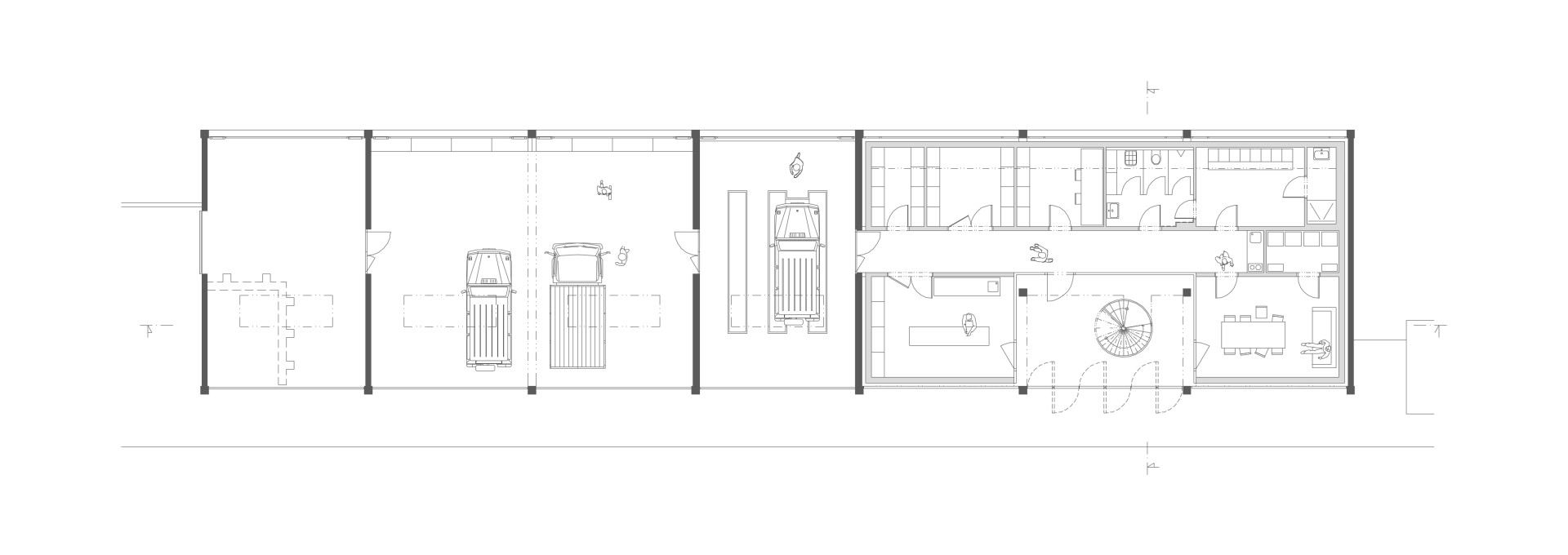
Tím nejnovějším dokladem je pak základna technických služeb pro pražskou městskou část Lysolaje, kterou loni dokončil ateliér Progres architekti. Objekt je pojat jako jednoduchá stavba s modulárním železobetonovým skeletem, který dobře odpovídá účelu stavby a současně zajišťuje snadnou variabilitu pro jeho využívání do budoucna.
Více k tématu
„Při přípravě projektu jsme zjistili, že na rozdíl od zahraničí vzniká v ČR většina technických objektů bez architektonické péče. Časté jsou výrazné a nákladné stavby bez konceptu a kontextu, u kterých byl promarněn potenciál odhalit jejich neopakovatelnou poetiku,“ říkají autoři návrhu Jan Kalivoda a Vojtěch Kaas.
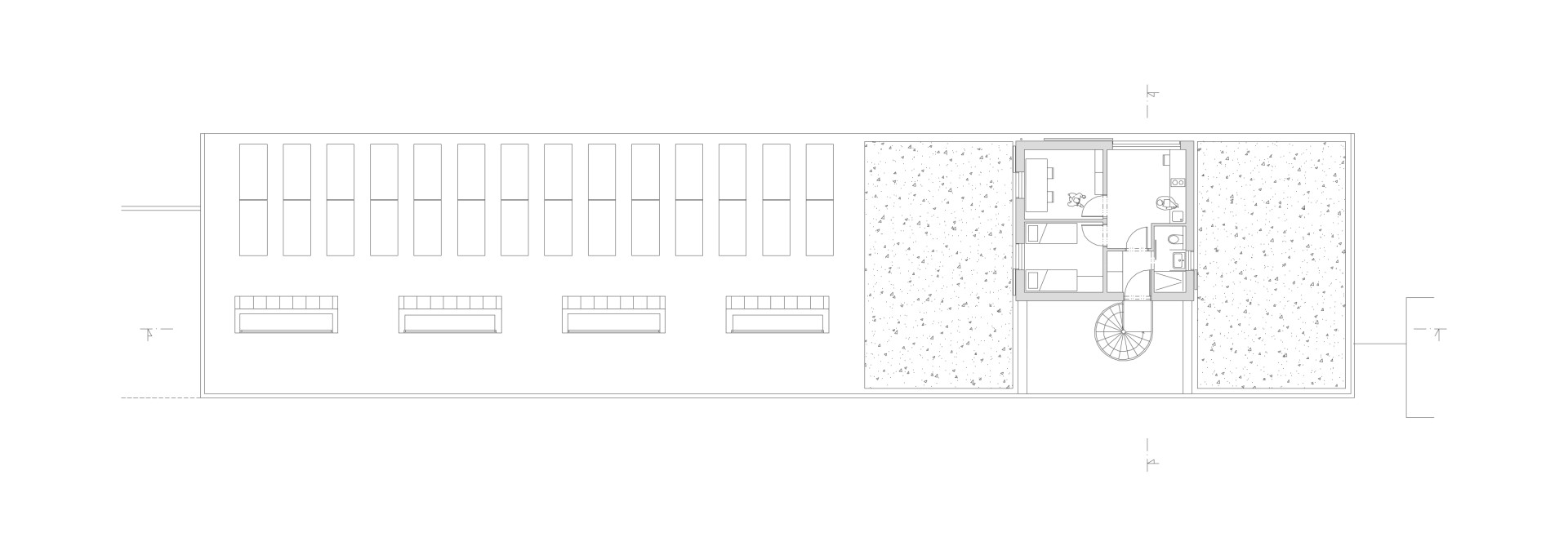
Nízký objekt s přiznanou nosnou konstrukcí a dřevěným obkladem slouží primárně jako garáže pro vozidla údržby, autodílna a sklad materiálu. Menší část objektu je pak s ohledem na funkci zázemí pro pracovníky pojata jako vložená hmota s montovanou ocelovou v pasivním tepelném standardu. Najdeme v ní šatny, dílnu, kancelář i společenskou místnost využívanou primárně při nočních směnách během sněhové pohotovosti. „Lehkou konstrukci jsme využili i pro samostatný objem bytu správce ve druhém podlaží, který je i rezervou do budoucna a je možné ho rozšířit nad sousední moduly,“ dodávají architekti.

„Zásadní roli ve fungování domu hraje prostorové nic – vstupní atrium. Slouží jako propojka s ulicí, hlavní vstup a komunikační uzel, jehož míru otevřenosti lze nastavit velkými otočnými žábrami. Jeho plášť ze skleněných tvarovek prosvětluje interiér jemným rozptýleným světlem. Je to polosoukromé místo setkávání, kde prší, roste tráva a pěstují se rajčata.“
Díky zapuštění stavby do terénu si vnitřní nevytápěné prostory udržují stabilní teplotu a nepromrzají. Objekt „pohání“ fotovoltaická elektrárna s bateriovým úložištěm, zelené střechy zlepšují místní mikroklima a zadržují vodu, přičemž dešťová voda je akumulována a využívána pro provoz údržby i zálivku. Všechny vnitřní prostory mají denní osvětlení.

„Objekt má sloužit jako vzorová realizace a inspirace pro veřejnost. Veřejná stavba by měla jít příkladem v oblastech udržitelnosti, práce s obnovitelnými energiemi, standardu vnitřního prostředí i použitých materiálů,“ uzavírají autoři.
- Ateliér: Progres architekti
- Autoři: Jan Kalivoda, Vojtěch Kaas
- Spolupráce: Michal Svoboda, Tereza Soubustová
- Země: Česká republika
- Město: Praha
- Adresa: ul. Květová, Praha – Lysolaje
- Projekt: 2019
- Realizace: 2022
- Zastavěná plocha: 437 m²
- Rozměry: 31 x 10 m