
Architektura
/
rodinné domy
Jednoduchý dům nedaleko od Prahy
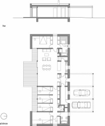
Jednoduchá hmota a geometrické členění interiéru spolu s povrchy z přírodních materiálů kontrastují s jasně žlutými plochami nábytku, které interiér efektně prozáří. To je přízemní rodinný dům v Unhošti od studia stempel & tesař architekti.
stempel & tesar architekti , 1. 9. 2015
Více k tématu
- Autoři: Ján Stempel, Jan Jakub Tesař
- Země: Česká republika
- Město: Unhošť
- PSČ: 273 51
- Datum projektu: 2011
- Realizace: 2014
- Užitná plocha: 170.00m2
- Zastavěná plocha: 230.00m2
- Plocha pozemku: 789.00m2