
Jiný Hlavák bez bourání. Jak by také mohlo vypadat nové hlavní nádraží v Praze
Projekt Šťastný Hlavák od studia Henning Larsen Architects zvítězil v soutěžním dialogu na úpravy Hlavního nádraží v Praze. Bourá však podstatnou část odbavovací haly ze 70. let. Ostatní finalisté jsou k původní cenné hale šetrnější. Proč nevyhráli? Přinášíme více vizualizací tří nejlepších návrhů, plány a hodnocení komise, které média zatím neměla k dispozici.
EARCH.CZ / Institut plánování a rozvoje hl. m. Prahy , 29. 11. 2023
EARCH.CZ zveřejňuje hodnocení tří finalistů podle poroty soutěžního dialogu Nový hlavák.
Henning Larsen Architects A/S
Komise především oceňuje komplexnost přístupu a ucelenost řešení celého území. A to napříč jednotlivými tématy, jejichž řešení se navzájem prolíná a podporuje. Působí harmonickým dojmem.
Výrazný přístup představený v rámci konceptu, který je současně interpretací přístupu autorů původní odbavovací haly, byl v dalších fázích soutěžního dialogu rozpracován a obhájen.
Více k tématu
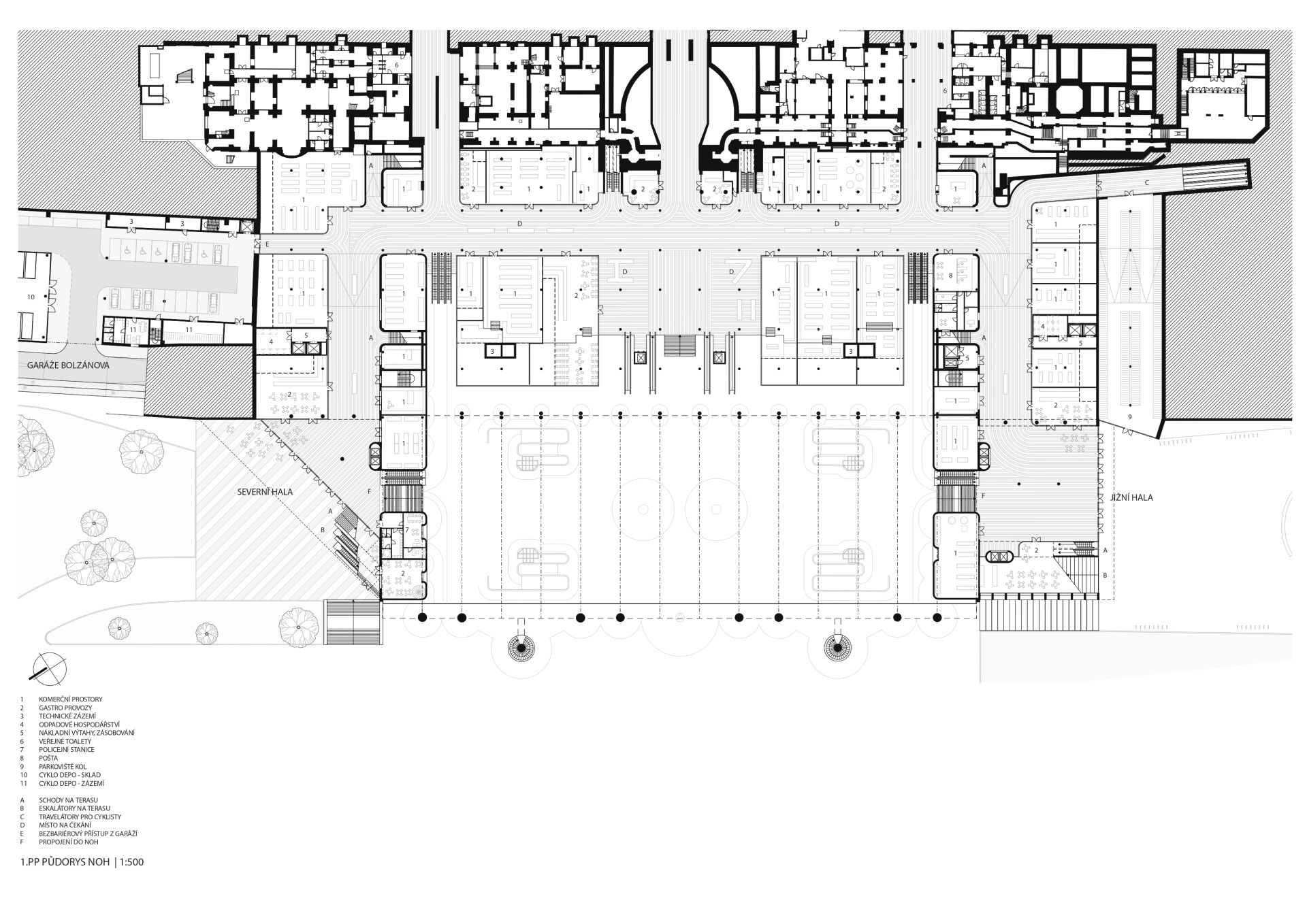
Princip vyzvednutí střechy a vytvoření zastřešeného veřejného prostoru, který na jedné straně plynule přechází do parku a na druhé do interiérové části haly s přístupem k vlakům, eliminuje jednotlivé bariéry a podporuje orientaci a přehlednost v území. Pozornost návštěvníků, cestujících, ale především obyvatel, tak směřuje do plynulého veřejného prostoru. Není roztříštěno mezi různé, problematicky propojitelné, stávající úrovně. Vzniká tak opravdový dopravní hub, který je natolik variabilní, že v budoucnu umožní bezproblémovou adaptaci Metra S a Metra D.
Návrh identifikuje hodnotné a funkční prvky z původního řešení (ale i v návaznosti na principy Fantovy budovy), které dále interpretuje, rozvíjí a replikuje ve svém řešení a dílčích prvcích. Propisuje tak historickou stopu s dneškem a s budoucím uživatelským prostředím. Řešení umožňuje obnovit neexistující pohledové a funkční propojení Fantovy budovy s prostorem Vrchlického sadů. Zrovna tak zpřítomňuje Vrchlického sady v parteru Fantovy budovy. Celistvost a prostupnost území se tím rehabilituje v původních prostorových konturách. Vhodně tak doplňuje záměr adaptace magistrály na městský bulvár.
Otevřený přístup v případě řešení odbavovací haly se o to výrazněji projevuje v řešení parku. Ten se proměňuje ve veřejný městský prostor s dominantním podílem zeleně. Pracuje s hodnotnými stávajícími dřevinami, které vhodně doplňuje o novou výsadbu.

Členění, rozsahy a charakter jednotlivých, ať už zpevněných, tak nezpevněných povrchů, vhodně reaguje na stávající, ale i budoucí předpokládanou zátěž uživatelů. Základní členění parku na funkční oblasti a jejich iniciaci aktivitami (ať už hřiště, prostor pro trhy a setkávání, výběh pro psy, odpočinek, čekání na vlak apod.) a očekávané pobytové kvality, je navrženo ve vztahu k navazujícím územím. Ať už k Muzejní oáze, stávající zástavbě podél ulic Opletalova a Washingtonova, tak v návaznosti na navrženou proměnu objektu garáží Bolzanova.
Toto členění je svým způsobem i interpretací autorů na měkké tvarování trávníků a cest v parku z období konce 19. stol., tedy z období řešení od Ferdinanda Malého i následné úpravy od Františka Thomayera. Není založeno na formálních gestech vyžadujících direktivní vedení pěších a umožňuje tak reagovat na přirozený pohyb uživatelů v území.
Řešení tramvajové trati nevytváří bariéry v prostupnosti a stává se přirozenou součástí místa. Zastávky jsou součástí krytého veřejného prostoru odbavovací haly a toto řešení tak podporuje přestupní vazby. Tramvajová trať a zastávky tak nejsou „vedle” nádraží, jsou jeho přirozenou součástí, a i součástí parku.
Přístup k řešení ulic na rozhraní zástavby a parku definuje vhodně jednotlivé profily. Ty tak umožňují doplnění stromořadí, parkování, a především bezpečné řešení cyklodopravy a prostupnosti pro pěší. Výrazným prvkem v návaznosti na připravovanou rekonstrukci předprostoru Fantovy budovy a realizaci přechodu přes ulici Wilsonovu je vytvoření nového krytého nástupiště pro K+R a autobusy na straně odbavovací haly.
Komplexní přístup k návrhu území byl potvrzen v rozvaze nad proměnou objektu garáží Bolzanova, byť v rámci Soutěžního dialogu bylo zadáno k řešení pouze v ideové rovině. Tým přichází s (postupnou) proměnou funkcí (zásobování haly, cyklodepo city logistiky, kavárna, aj.) a kapacit, které jsou v přímé návaznosti na řešení přilehlé části parku. Řešení objektu tak vhodně podpoří aktivaci této sociopatologické lokality.
Proces soutěžního dialogu je nejenom o hledání řešení, ale především o hledání partnera pro zadavatele. Účastník prokázal v průběhu schopnost reagovat na připomínky a doporučení a po celou dobu posouval své řešení a hledal možnosti zlepšení.

Miralles Tagliabue EMBT S.L.P + OCA ARCHITECTS PRAGUE, s.r.o.
Snaha smířit intervenci infrastrukturní budovy ze 70. let do prostoru původního parku rozšířením její identity jako jakéhosi parkového skleníku byla od začátku vnímána jako perspektivní a legitimní koncept umožňující atraktivní ztvárnění.
Adice nad stávající odbavovací halu tvarově navazovala na secesní jazyk jak Fantovy budovy, tak stávajících nádražních hal nad nástupišti. Současně přidaný objem byl hledáním, jak přidat nové funkční vrstvy a zapojit stávající střechu do života území.
Obdobně působil i přístup k řešení parku, kde byl od začátku kladen důraz na intenzivní prostorový, krajinný, ale i materiální charakter prostoru.
Dopracovaný návrh je jen odrazem lehkosti konceptu a zpřesňování dílčích částí návrhu nepřineslo přesvědčivá řešení − z pohledu funkce, provozu, správy a udržitelnosti celého řešení. A to jak s ohledem na řešení odbavovací haly, tak parku, ale i dopravy.
Řešení a funkce haly bylo oslabeno důrazem na rozšíření/přesun funkcí na stávající střechu haly, jejíž fungování ale nebylo přesvědčivě obhájeno. Především s ohledem na moderování náplně, ale i z hlediska přístupnosti. Snaha o přilákání cestujících na horní úroveň současně způsobuje i zhoršení přirozené orientace, především od podchodů pod nástupišti. Vnitřek stávající haly je v návrhu řešen maximálním otevřením a vytvořením nadstandardních prostor pro vyčkávání, na druhou stranu toto řešení přináší odsunutí komerčních ploch a služeb pro cestující pouze do bočních, neatraktivních poloh.

Je pravděpodobné, že by přidaná konstrukce nové střechy generovala zvýšené investiční náklady, které ale nebyly dostatečně obhájeny fungováním nově vzniklého prostoru.
Bohatost, původně především výtvarného přístupu, řešení parku se v rámci dopracování ukazovala jako přílišná. Celkové uspořádání ploch v některých částech znepříjemňuje prostupnost i přirozenou přehlednost a orientaci. Komise vnímala snahu o výraznou změnu charakteru krajinářského řešení, které svou intenzitou osázení navazovala na historické řešení Ferdinanda Malého nebo květnici Františka Thomayera. Nicméně to by vyžadovalo dlouhodobě neudržitelnou intenzitu následné péče, a to i s ohledem na zátěž území. Je však zřejmé, že celkový přístup se snaží o propojenost haly a parku a definování jejich nového harmoničtějšího vztahu.
Z technického hlediska tramvajová trať odpovídá zadání. Z hlediska prostorového uspořádání není přesvědčivé umístění zastávek v ose odbavovací haly s ohledem na celkovou prostupnost a návaznost do města. Řešení okolních ulic, které primárně vychází a jen drobně upravuje stávající stav, není přesvědčivé a jen minimálně reaguje na očekávání definovaná v zadání. Problematické je rovněž řešení cyklodopravy, které je omezeno pouze na základní typy opatření v okolních ulicích a prostupnost parkem řešena obtížně využitelnou stezkou. Depo pro dlouhodobé stání je rovněž pouze na severní straně haly s minimální návazností na příjezd.
Komise kladně hodnotí ideu využití objektu garáží Bolzanova a širší rozvahu nad fungováním a zapojením např. sociálně slabých do správy a údržby parku (k čemuž už dochází i dnes a je pozitivně vnímáno).
Kreativita, bohatost forem a barev návrhu byla vítanou ozdobou soutěžního dialogu.

re:architekti + baukuh+ Yellowoffice
Návrh jasně a správně identifikuje klíčové problémy současného stavu a snaží se na ně odpovídat cílenými opatřeními. Komise kladně vnímala koncept zachování centrální části haly, respektive úpravu, která navrací její schéma původně otevřeného/volného prostoru, a vytvoření dvou nových objektů po stranách, které otevírají halu k Václavskému náměstí a k Bolzanově ulici. Návrh měl od začátku velmi racionální, a kladně hodnocený přístup k řešení tramvajové trati i navazujících ulic a cyklodopravy.
Řešení parku prezentované v dopracovaném návrhu rozvíjí stávající stav, a to i v návaznosti na původní koncept od Otakara Kuči navržený v souvislosti s výstavbou Nové odbavovací haly. Řešení je adaptováno na nové vztahy a boční přístupy k hale, především od jihu od Václavského náměstí.

Návrh přináší výstavbu dvou nových objektů po stranách odbavovací haly, které nahrazují současné zásobovací rampy. Tyto objekty nejenom přinášejí nové vstupy do haly, ale obsahují nové funkce a náplně, a především díky svému převýšení nad stávající střechu haly mají podporovat její nové využití. V úrovni ulice Wilsonova tak společně s Fantovou budovou vzniká nově vymezené náměstí, na které jsou v návrhu primárně soustředěné nové venkovní aktivity a náplně, ať už trvalé nebo jen sezónní.
Tento přístup sice rozvíjí předprostor Fantovy budovy, nicméně stále zůstává výrazně odtržený od okolního parku a města a návštěvník tam musí jít téměř cíleně. Komise tento veřejný prostor vnímala problematicky především z pohledu nakolik je daný prostor nutné aktivně moderovat a zda je řešení dlouhodobě udržitelné, problém plochy střechy tak nebyl přesvědčivě vyřešen. Vnitřek haly přináší nově přidané plochy komerce, ale současně snižuje přirozenou orientaci v množství nových průchodů.
Návrh řešení parku, i přes výrazné úpravy v dopracování návrhu, nepřináší očekávanou proměnu ve fungování a atraktivnosti náplní, které jsou primárně na střeše haly, ale i z krajinářského hlediska přináší jen minimum změn v charakteru celého prostoru, byť biotechnologicky funkčních. Komise není přesvědčena, že deklarovaný univerzální přístup k řešení rozsáhlých měkkých (především travnatých ploch) je adekvátní, ale i udržitelný i s ohledem na současný stav.

Řešení tramvajové trati přichází s velmi jasným a funkčním řešením, především úsek podél ulice Washingtonova s vloženým stromořadím je kladně hodnocen. Rovněž v řešení okolních ulic, stejně jako řešení cyklodopravy, jak cílové, tak tranzitní, je zřejmá detailní znalost místního prostředí a problematiky, a ta je tak propsána do kvalitního přístupu. Dopravní řešení ale bylo hodnoceno i z celkového pohledu, a to z hlediska nedostatečně intuitivního řešení pohybů v hale a prostupnosti pro pěší.
Komise vnímá pozitivně některé dílčí (i technická) řešení a přístupy, nicméně jejich propsání do souvislostí a vzájemné prolínání v rámci celkové kvality nebylo přesvědčivě překlopeno do návrhu. Problematicky je vnímán i výsledný funkční vztah a výraz doplňovaných přístaveb k ponechávané části odbavovací haly. Návrh adaptuje současný stav ve všech částech řešeného území. Tento přístup však z celkového funkčního hlediska, ať už z provozního, krajinného, komerčního, ale i udržitelného apod., nepřináší očekávanou a dostatečnou proměnu i s ohledem na budoucí změny a rozvoj v území.