Architektura / rodinné domy

Ke staré stodole v Českém středohoří připojili Molo architekti moderní prosklený kvádr

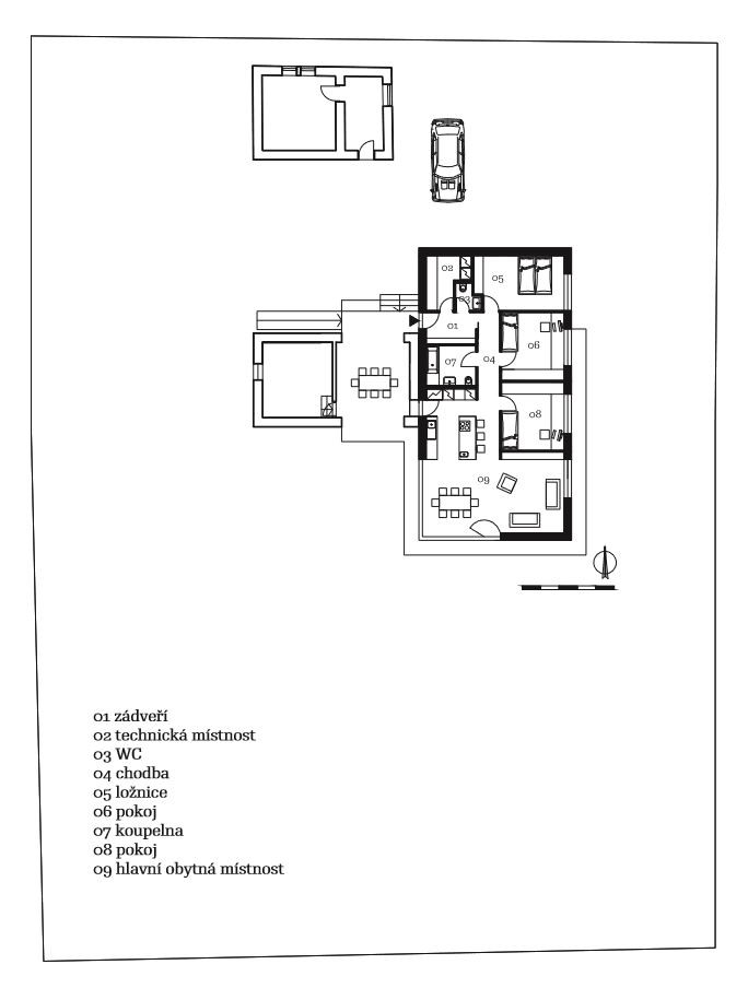
Starý a nový: tradiční venkovskou stodolu se sedlovou střechou doplnil jednoduchý moderní kvádr s velkoryse prosklenými stěnami. Studio Molo architekti tak propojením obou objektů vytvořilo v Českém středohoří rodinný dům, který svým majitelům poskytuje jak nezaměnitelnou atmosféru venkova, tak i současný komfort bydlení. Obě části se také otevírají do přilehlého ovocného sadu, čímž dochází k vizuálnímu propojení interiéru se zahradou.

MOLO ARCHITEKTI , 19. 2. 2019

  • Ateliér: MOLO ARCHITEKTI
  • Autoři: Pavel Griz, Patrik Zamazal
  • Země: Česká republika
  • Generální dodavatel: NAGA s.r.o.
  • Subdodavatel: Vojtěch Vychytil, s.r.o.
  • Realizace: 2017
  • Užitná plocha: 112.00m<sup>2</sup>
  • Zastavěná plocha: 135.00m<sup>2</sup>

Mohlo by vás zajímat

Generální partner
Hlavní partneři