Luxusní vila ve svahu s posuvnými prosklenými stěnami

Světlo, výhledy a puristické materiály: Architekti kanceláře OUTOFBOX vytvořili soukromý projekt, který bezesporu vyčnívá a upoutá, zároveň si však cení okolní přírody. Dům, zasazený do malebné kopcovité krajiny, se nachází nedaleko města Cēsis na severu Lotyšska. Aby si majitelé mohli neomezeně a s komfortem celoročně užívat krásy měnící se přírody, byly v projektu využity vysoce tepelně izolované posuvné systémy Schüco ASS 77 PD.HI a ASS 70.HI. Automatizované posuvy se zasklením od podlahy až ke stropu doslova rozpouštějí optickou bariéru mezi obytným prostorem a přírodou.
Schüco CZ s.r.o. , 7. 1. 2018
Cēsis, středověký přístav a obchodní město na severu Lotyšska, leží v romantickém prostředí kopců a nížin nad řekou Gaujou, která svůj název propůjčuje i přilehlému národnímu parku Gauja National Park. Architekti OUTOFBOX si byli dobře vědomi tohoto výjimečného prostředí, a tak rodinný dům tvořili s maximálním respektem k místní krajině a topografii stavební parcely. Orientace svahu a zapuštění do strmého terénu na břehu řeky vybízelo k variabilitě, díky které má dům na každé straně jinou tvář. S ohledem na zajištění soukromí pro majitele je fasáda nejméně transparentní u přístupové cesty a celý dům je z této strany k vidění pouze částečně. Naopak jihozápadně orientovaná strana vily se doslova otevírá do údolí. Fasádu všech tří podlaží tvoří rozsáhlé velkoplošné zasklení a interiér se zcela odhaluje exteriéru.
Tři průhledné úrovně
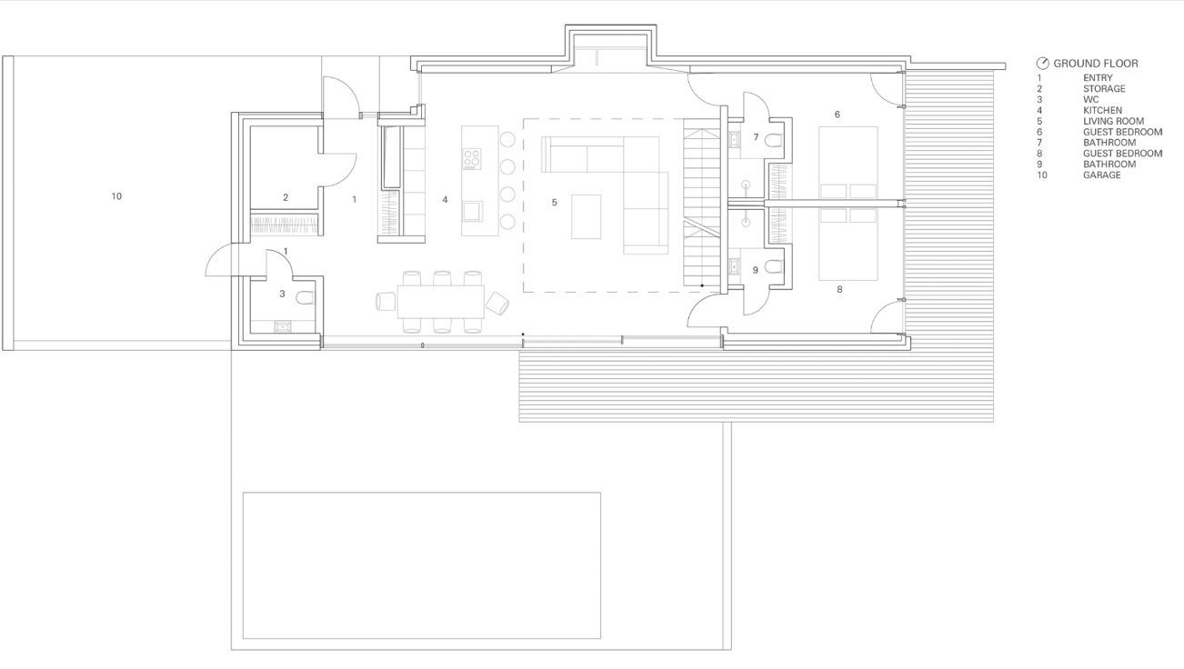
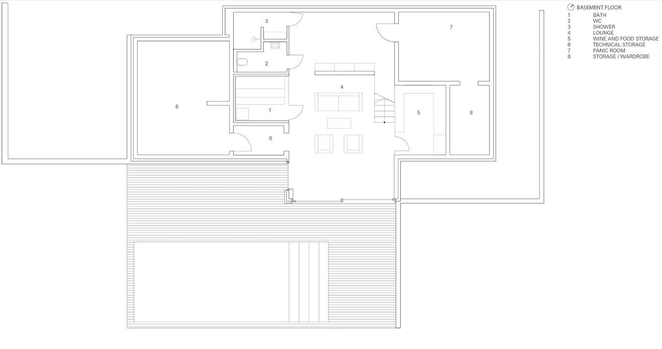
Spodní podlaží, které z cesty není vůbec vidět, slouží k volnočasovým aktivitám a saunování. Relaxační zónu doplňuje vinný sklep a rozsáhlá terasa s bazénem. V přízemí na přístupové úrovni domu se nachází velká obývací místnost s kuchyní a jídelnou, otevřeným krbem a dvěma pokoji pro hosty. Díky 12 metrům široké a na celou výšku podlaží velké skleněné posuvné stěně se majitelé dennodenně kochají krásou měnící se přírody a za příznivého počasí mohou tuto nepatrnou vizuální bariéru odsunout a se zelení splynout úplně.
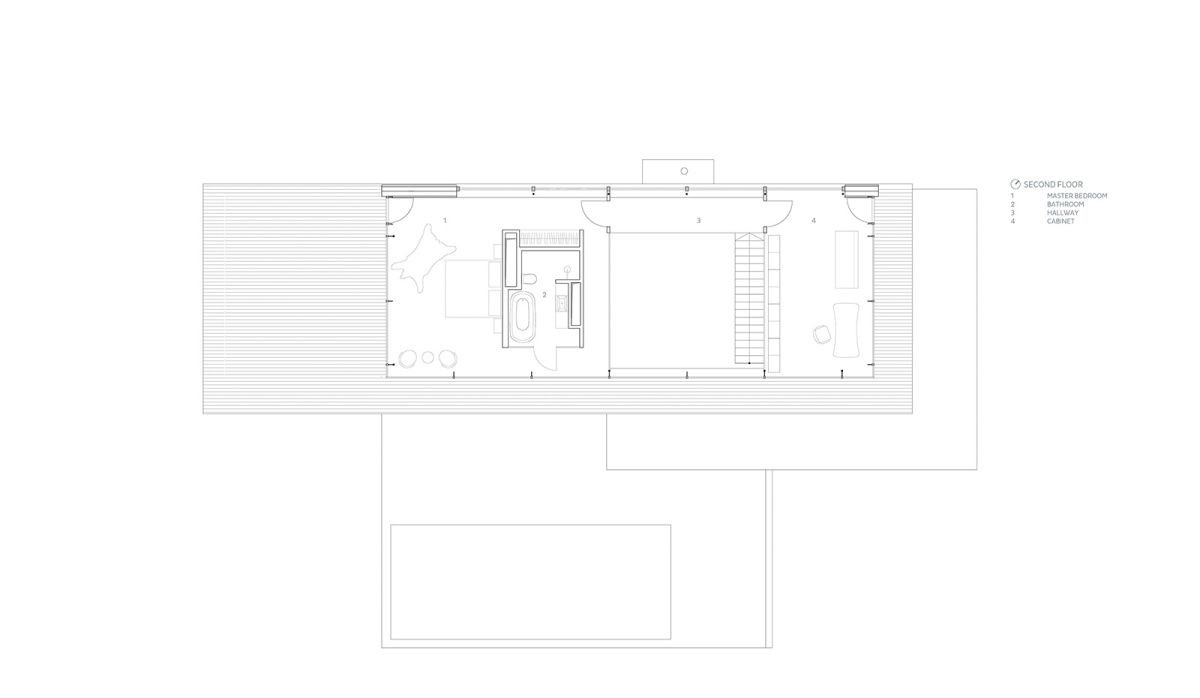
Obývací pokoj se otevírá až do horního patra. Po schodišti se dostanete na vnitřní betonovou galerii, zpřístupňující pokoje klidové zóny, tedy pracovnu a velkou ložnici s terasou. Z té se naskýtá ohromující výhled nad korunami stromů do starého údolí řeky Gauji.
Vysoce tepelně izolovaná konstrukce
Navzdory rozsáhlému zasklení se architektům podařilo dodržet nízkoenergetické stavební technologie a principy. Klíčem k úspěchu se stal kompaktní stavební projekt kubických tvarů s optimálním poměrem fasády k obytné ploše a s využitím vysoce tepelně izolovaného fasádního systému Schüco s trojitým zasklením. Orientace těchto ploch na jih a západ přispívá k energetické účinnosti a využití přirozeného světla. Energetickou bilanci obvodového pláště zlepšují i termické solární kolektory umístěné na střeše objektu.
Spodní podlaží a přízemí vily tvoří dvouvrstvá vyztužená betonová konstrukce s inteligentní izolací, která umožňuje betonový povrch přiznat zevnitř i zvenku. Třetí (horní) podlaží má záměrně odlišné provedení. Celoprosklená konstrukce se subtilním kovovým rámem přináší 270° panoramatický výhled.
Systém posuvných dveří
Čistý puristický design přenesli architekti z OUTOFBOX ve spolupráci s Lolot Design také do interiéru, zásluhu na tom mají přiznané betonové povrchy a velkoplošné zasklení v minimalistických hliníkových profilech. Pocit útulnosti a pohodlí navozuje přírodní dub (nejen) na podlaze a pečlivě navrhované prvky jako krbová vložka a dekorativní kovové schodiště. Koncept osvětlení - kombinující skrytě a do zdi instalované jednotky se svislými světelnými prvky - vytváří individuální světelné scenérie, které lze pomocí vhodné aplikace jednoduše ovládat přes chytrý telefon.
Do takto pojatého projektu skvěle padla volba okenních, fasádních a posuvných systémů německé značky Schüco. K dokonalosti nechybí rámy a kování bezbariérově zabudované do podlah a stropů, minimální pohledová šířka profilů a strukturální kapacita pro integraci rozsáhlých elementů s trojitým zasklením. Uživatelé ocení "smart" funkce v podobě mechatronického kování Schüco TipTronic pro motorizované otevírání a zavírání oken (ze systému Schüco AWS 75 BS.SI) a systému e-slide, plně skrytého pohonného systému, který jednoduše, bezpečně a automatizovaně otevírá, zavírá a zamyká velkoformátové posuvné jednotky ze systémů Schüco ASS 70.HI a ASS 77 PD.HI.
Více k tématu
- Ateliér: OUTOFBOX
- Spolupráce: Lolot design
- Země: Lotyšsko
- Město: Cēsis
- Datum projektu: 2014
- Realizace: 2016
- Zastavěná plocha: 240.00m2
- Fasáda: Schüco FW 50+HI, Schüco FW 50+.SI