
Mrakodrap ze dřeva. White Architekter zrealizovali uhlíkově neutrální budovu na severu Švédska
Nová realizace známých švédských architektů ze studia White Arkitekter prokazuje možnosti a kvality konstrukcí ze dřeva. Uhlíkově neutrální kulturní centrum Sara vyrostlo navíc nedaleko severního polárního kruhu.
Adéla Vaculíková , 5. 7. 2022 / Advertorial
Závazek: klimaticky šetrné
Ve městě Skellefteå na severu Švédska, jen několik kilometrů před polárním kruhem, vyrostla výšková budova s dřevěnou konstrukcí. Za tímto „milníkem“ v oblasti udržitelné architektury stojí architekti Robert Schmitz a Oskar Norelius ze švédského studia White Architekter, kteří dokázali, že dřevo může překvapit i v moderním stavebnictví.
Budova s názvem Sara Cultural Centre se nachází v samotném centru města. Její výstavbu iniciovala místní politická reprezentace, která roku 2016 vypsala mezinárodní soutěž na multifunkční kulturní centrum. Vítězné skandinávské studio White Arkitekter, které má dnes své kanceláře po celém světě, se úkolu zhostilo zcela po svém. Studio se totiž zavázalo, že do roku 2030 budou všechny jejich stavby klimaticky neutrální a již do konce roku 2019 realizují na 30 staveb s nulovými emisemi CO2 – jednou z nich je právě Sara Cultural Centre.
Dřevo bez výjimky
Budova je vlastně takovým velkým experimentem, a to po všech stránkách – jednak v sobě sdružuje množství kulturních institucí, které se tak snaží propojovat, ale především přichází se zcela unikátním konstrukčním systémem. Hlavním stavebním materiálem se totiž stalo dřevo, jehož těžbou je region proslavený.
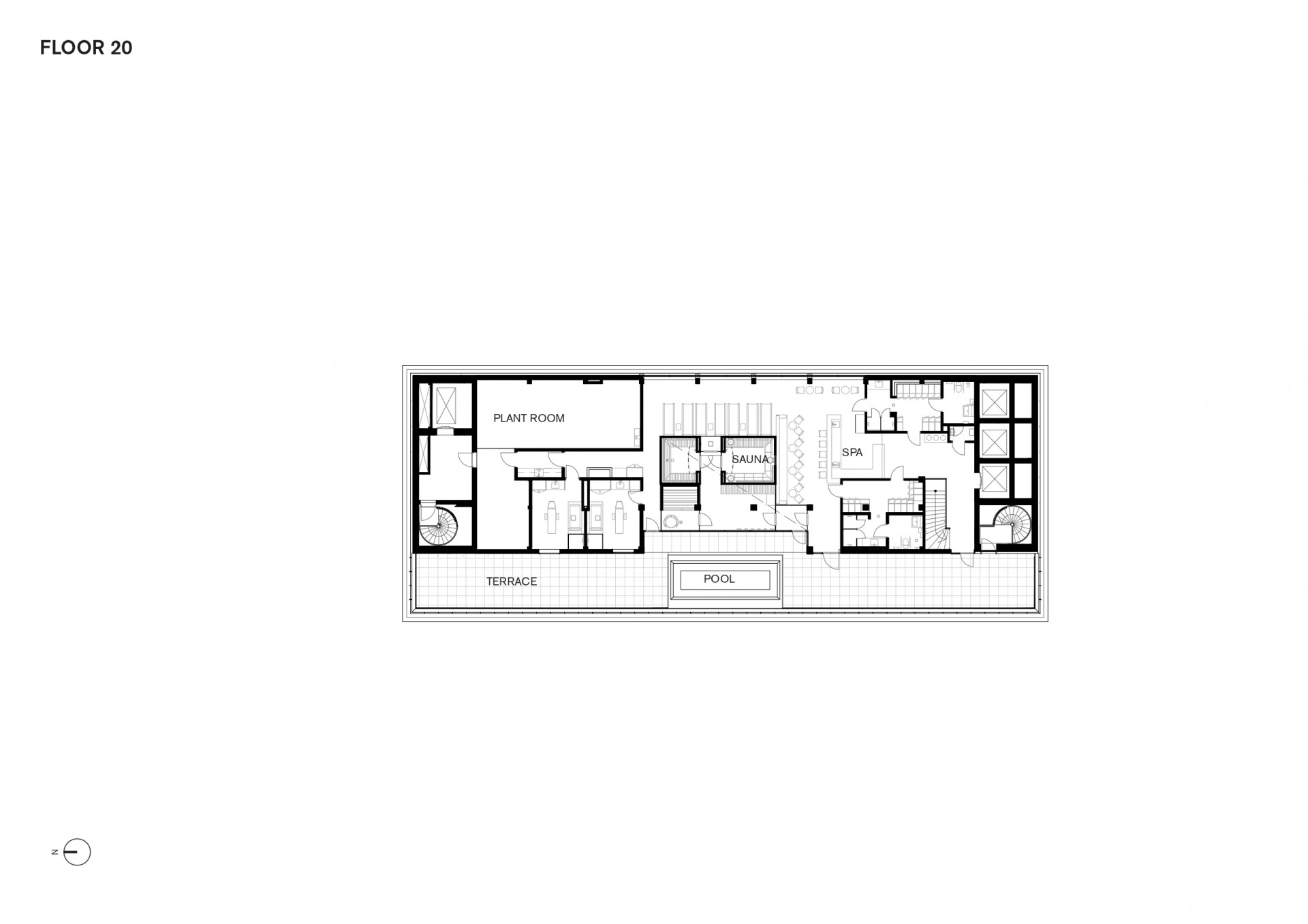
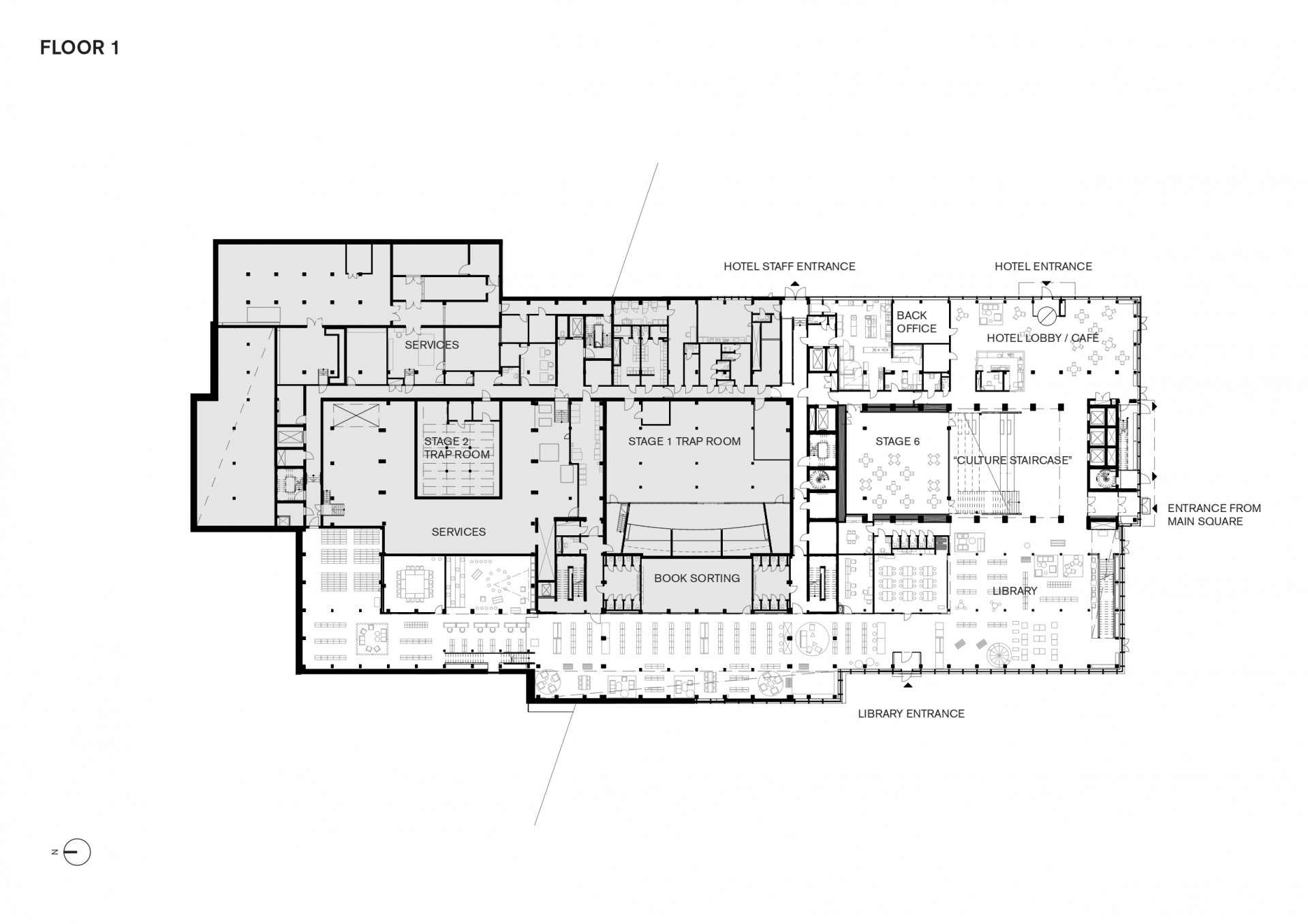
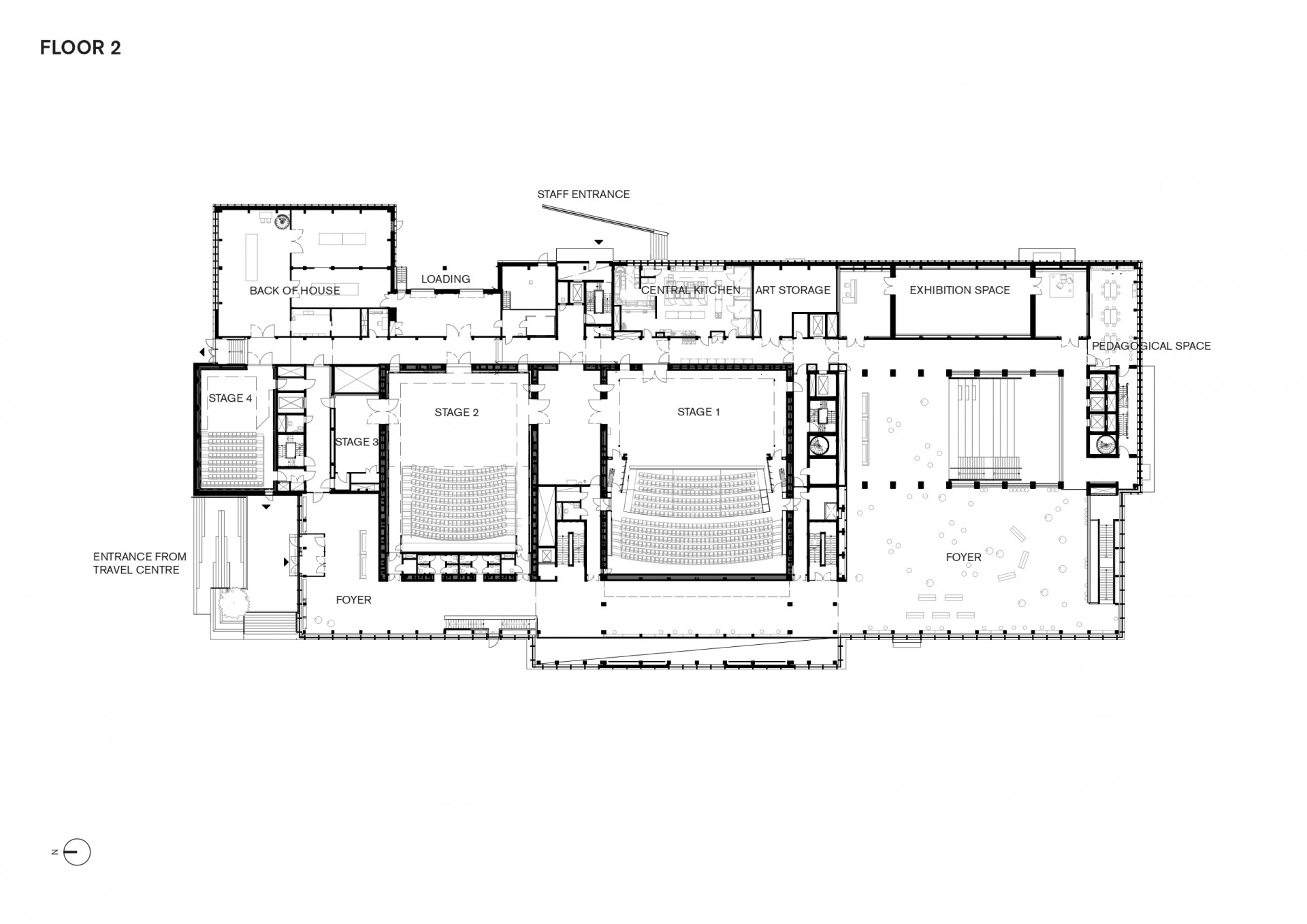
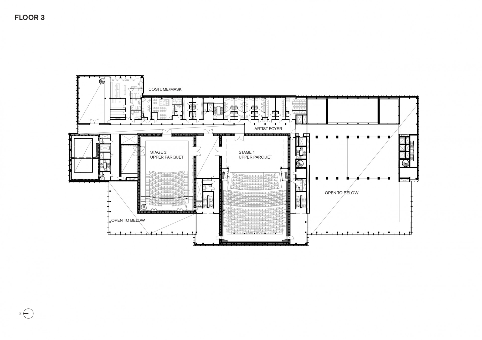
Stavba složená z několika kubických jednotek, které svou výškou reagují na místní urbanistickou strukturu, graduje 20podlažní věží dosahující výšky bezmála 80 metrů. Uvnitř se nachází několik divadelních scén, knihovna, galerie nebo muzeum, ve výškové hmotě zase hotel s konferenčním centrem.
Pro realizaci stavby přitom byly použity dva celodřevěné konstrukční systémy. Hotel tvoří prefabrikované moduly z CLT panelů (panely z křížem lepeného dřeva), které byly jako buňky naskládány na sebe až do obdivuhodné výšky 80 metrů. Nízké objemy kulturních institucí tvoří konstrukce na principu pilířů s překlady. „Všechny nosné prvky konstrukce jsou vyrobeny ze dřeva, což je pro budovu takové výšky naprosto unikátní,“ vysvětluje architekt Oskar Norelius.

Aby budova působila přívětivě a otevřeně, nechali architekti velké množství ploch zasklít. „Umístění budovy v centru města, průhledné fasády a vstupy na všech stranách společně vytvářejí otevřené a příjemné místo,“ vysvětlují. Zvolili přitom hliníkové profily společnosti Aluprof. Je to právě hliník, který architekti stejně jako dřevo považují za materiál budoucnosti. „Při opětovném využití hliníkového šrotu ušetříme přibližně 95 % energie potřebné pro počáteční výrobu hliníku z bauxitu, což je extrémně energeticky náročný proces. Recyklace hliníku nám také umožňuje snížit znečištění ovzduší o 95 % a vody o 97 %,“ udává společnost Aluprof.
V nižších patrech architekti použili celoprosklené fasády v systému ALUPROF MB-SR50N, který umožňuje použít velkoformátová skla do hmotnosti až 1100 kilogramů. Zbytek výškové budovy je obalen provětrávanou dvouplášťovou fasádou MB-SW55, která byla na míru vyvinuta právě pro tuto stavbu. Díky velkým proskleným plochám se tak odhaluje struktura dřevěného jádra stavby.

Architektonická i ekologická ocenění
Studio White Arkitekter se zavázalo, že životnost budovy Sara Cultural Centre bude minimálně 100 let s tím, že po polovinu času zůstane zcela uhlíkově neutrální. Celá stavba byla zároveň realizována z lokálně těženého dřeva, které se zpracovávalo na nedaleké pile. Vedle ekologických výhod přinesl lokální způsob práce i pozitivní ekonomický a sociální dopad. „Máme zde velmi dobrý dřevní průmysl, pokud ho budeme podporovat, znamená to, že zde budou lidé chtít dále žít, protože budou mít pracovní příležitosti,“ vysvětluje Theresa Kreisel, hlavní urbanistka města Skellefteå.
Architekti si za stavbu kulturního centra odnesli několik ocenění, získali například architektonickou cenu MIPIM v kategorii Best Futura Project a zvítězili i v soutěži AR Future Project Awards v kategorii občanské a komunitní výstavby. Zlatým hřebem je ale zisk cetrifikátu BREEM na úrovni Gold, který byl realizaci udělen švédským technickým zkušebním ústavem Byggvarubedömningen poté, co splnila náročná environmentální kritéria.
Detailně se s touto unikátní realizací můžete seznámit na výstavě WHITE ARKITEKTER: A HEART OF WOOD, která právě probíhá v Galerii Jaroslava Fragnera.
- Ateliér: White arkitekter AB
- Město: Skellefteå
- Realizace: 2021
- Architektonická soutěž: 2016
- Investor: Město Skellefteå