Můj dům, můj beton – část 4
Další ze soukromých vil z pohledového betonu – tentokrát v takové kvalitě práce s materiálem, že by se dala neskromně označit za „výstavní” ukázku. Je to dáno především tím, že dům, s citem umístěný do okolní krajiny, má prostor vyniknout. Neztrácí se v okolní zástavbě a zatím ani ve vysokém porostu okolí. Architekt Luciano Kruk s betonem prostě umí.
Luciano Kruk arquitectos , 11. 7. 2016
Golf House je postaven v Argentině na pobřeží Costa Esmeralda, cca 13 km na sever od přímořského resortu Pinamar. Je situován na svahu písečné duny, a tím i na nejvyšší místo v okolí. Přední i zadní část pozemku přímo navazují na golfové hřiště, které spolu s původní vegetací tvoří bezprostřední okolí domu.
Požadavek majitelů
Přáním majitelů bylo navrhnout celoročně obyvatelný víkendový dům, nenáročný na údržbu.
V zadání bylo vytvořit soukromý prostor pro majitele absolutně nezávislý na ostatních částech domu – ložnici se samostatnou koupelnou a obývací pokoj, který by se mohl využít i jako malířský ateliér. Vše by mělo být propojené s okolní přírodou, která by se měla stát jeho přirozenou součástí. Toto privátní útočiště by spolu s odděleně vybudovaným společenským prostorem mělo být dominantní. Dalším požadavkem bylo navrhnout v domě tři ložnice pro hosty (jednu se samostatnou, dvě se společnou koupelnou).
Majitelé považovali za samozřejmost zachovat přirozenou vegetaci a přáli si navrhnout dům tak, aby v co největší možné míře umožňoval výhledy na okolní krajinu.
Architektonické řešení
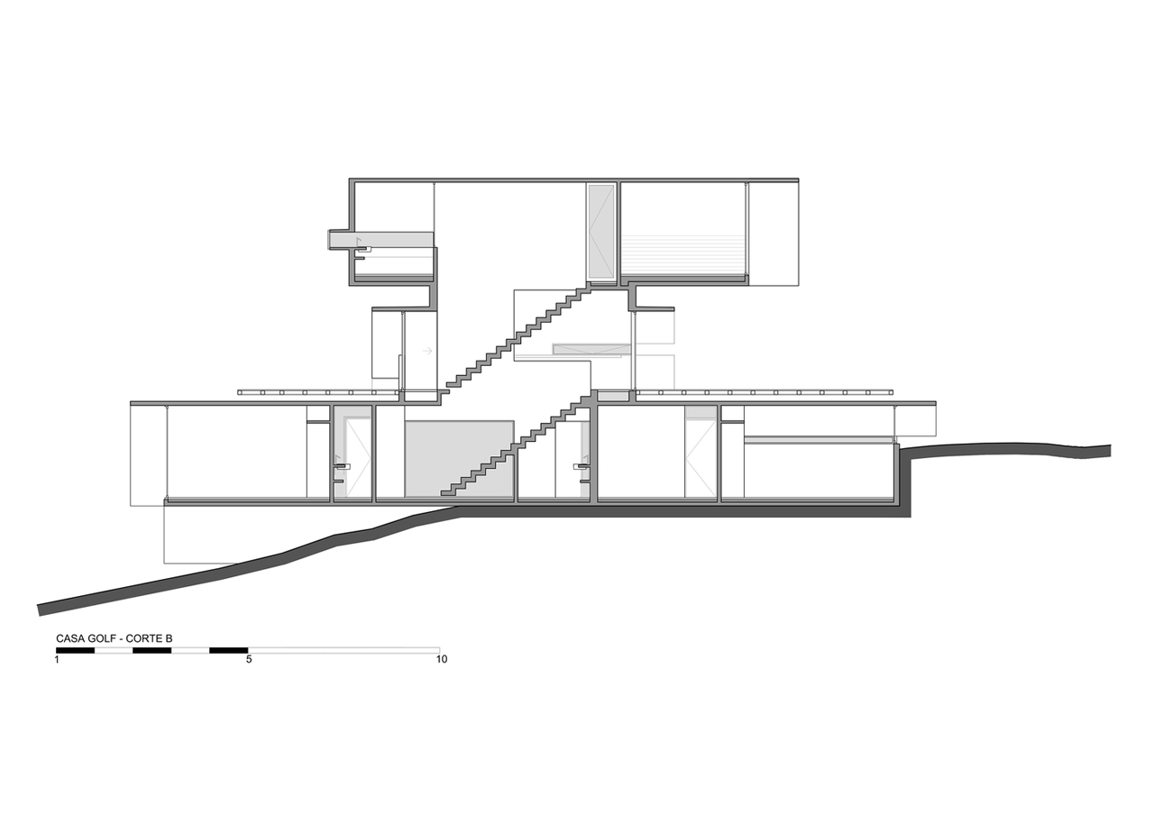
Dům nemá primárně působit jako dominanta – rozhledna, a tak vzájemné překrývání jednotlivých podlaží a částečné zapuštění do terénu mají za cíl snížit celkovou výšku domu a nechat jej splynout s okolím.
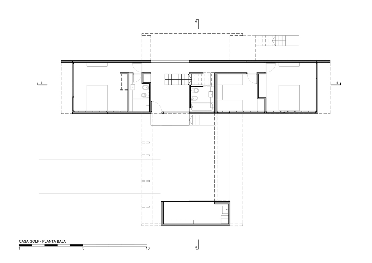
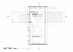
V návrhu jsou zřetelně odděleny požadavky na tři funkčně různé prostory a každému z nich – soukromé části, společným prostorám a části pro hosty – je věnováno samostatné podlaží domu – samostatný železobetonový blok.
Nejnižší podlaží, které je v zadní části zapuštěno do svahu duny, tvoří pomyslnou základnu celého domu, slouží jako vstupní hala a jsou zde umístěny ložnice pro hosty. Součástí tohoto podlaží je i místnost vybudovaná odděleně od hlavního „svazku“ vily. Nachází se napravo od vchodu a slouží jako šatna a úložný prostor.
Druhé podlaží, kde se nachází obývací prostor, kuchyně a jídelna, je nejprodyšnější díky přirozené transparentnosti velkých prosklených ploch. Tato část domu určená pro setkávání majitelů s hosty navozuje svou otevřenost jak šíří (zaujímá maximální šířku objektu), výškovým umístěním (v zadní části již převyšuje vrchol písečné duny a umnožuje horizontem již neomezený výhled na golfové hřiště a okolí), tak i orientací – jako jediná část domu je paralelní s hlavní komunikací. První a třetí podlaží jsou naopak navržena kolmo k přístupové cestě, a tím již jaksi navozují dojem uzavřenosti.
Na posílení intimity a uzavřenosti soukromých částí se budou časem podílet také borovice, které byly zasazeny mezi dům a silnici. Stromy budou zastiňovat interiér i před ostrými slunečními paprsky (obr. 3). Pro tyto účely jsou v domě nainstalovány rolety a také slunolamy, které tvoří jeden celek s monolitickou konstrukcí domu a chrání jej zejména na severní straně.
Vzhledem k požadavku majitelů na vytvoření nových, doslova dechberoucích výhledů představují důležitou součást Golf House také terasy. V celém domě jsou hned tři. Přední terasa ve druhém podlaží zvětšuje společenský prostor do ulice, zatímco větší zadní terasa rozšiřuje obývací pokoj a jídelnu. Skromnou ochranou před sluncem a deštěm je pro ně blok třetího podlaží, který „ční“ nad jejich částí. Terasa nejvyššího podlaží je v kontrastu s přilehlým interiérem, který je ukryt před zraky kolemjdoucích, velkoryse otevřena (obr. 6). Každá z teras má podlahu ze dřeva stromu kebračo. Mezi dřevěnou podlahou a nosnou konstrukcí je vzduchová mezera, která přispívá ke snížení přehřívání konstrukce vlivem slunečního záření a zlepšuje tak podmínky tepelné pohody v pokojích nacházejících se pod ní.
Čelní stěny orientované na jihozápad jsou méně vyhřívány slunečními paprsky, a proto jsou obloženy dřevem kiri. Toto obložení v některých pokojích tvoří i čelní stranu postelí. V domě je nainstalována klimatizace a podlahové vytápění, aby byl podle zadání obyvatelný celoročně.
Závěr
Architektonické studio Luciano Kruk umožnilo majitelům vily a jejich hostům výhledy na okolní krajinu díky bohatému prosklení a prostorovému uspořádání, kdy se jednotlivá podlaží jakoby „otáčejí“ okolo vertikální osy.
Architekti se v návrhu museli vy rovnat s typickou výzvou moderní „pro sklené“ architektury. Museli totiž nalézt vyvážený poměr mezi otevřením domu okolí a ochranou před ztrátou soukromí pokojů.
Velká rozpětí a převislé konce jednotlivých podlaží vyžadované tímto návrhem byla zhmotněna železobetonem. Ten se jako vhodný stavební materiál osvědčil nejen z konstrukčních, ale i z estetických důvodů.
Betonové konstrukce jsou v celém domě v exteriéru i v interiéru v pohledové kvalitě s otiskem struktury bednění a jejich estetický výraz ukázkově umožňuje uctivý dialog s okolím – nedominují, ale stávají se jeho přirozenou součástí.
Více k tématu
- Ateliér: Luciano Kruk arquitectos
- Autoři: Luciano Kruk
- Spolupráce: Josefina Perez Silva, Andrés Conde Blanco
- Země: Argentina
- Zodpovědný projektant: Ekaterina Künzel
- Město: Costa Esmeralda
- Realizace: 2015
- Zastavěná plocha: 274.00m<sup>2</sup>
- Plocha pozemku: 1 000.00m<sup>2</sup>
- Poznámka: Foto © Daniela Mac Adden