Na hasiče je vidět. V Dolních Jirčanech mají průsvitnou hasičskou zbrojnici s velkými okny
Sbor dobrovolných hasičů v Dolních Jirčanech u Prahy je vytížený – vyprošťují řidiče při nehodách na obchvatu Prahy, zasahují při požárech i povodních. K zásahům teď hasiči vyjíždějí z nové hasičské zbrojnice.
Karolína Vránková , 8. 1. 2025
Dolní Jirčany jsou na své hasiče pyšné – loni dostal jeden z členů sboru Miloslav Burián titul Hasič roku. K zásahům ale donedávna vyráželi z dožilé budovy a obec se mnoho let snažila získat pozemek a prostředky na novou zbrojnici. Povedlo se, a loni na podzim se otvírala nová stanice.
Navrhli ji architekti ze studia SOA. Fasádu má z průsvitného bílého polykarbonátu. Zároveň má v sobě něco vesnického: „Je navržena tak, aby svým tvarem a objemem připomínala typologii venkovských stodol,“ vysvětlují architekti. Další důležitý prvek jsou velkoformátová okna, jimiž každý vidí, co se uvnitř děje.
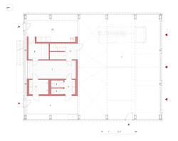
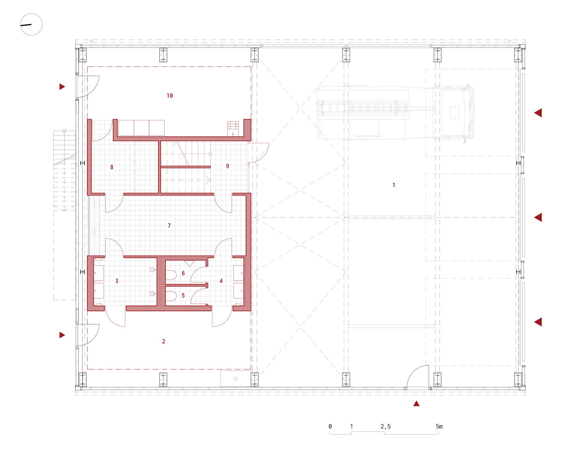
Hala slouží především jako garáž pro hasičský vůz a techniku. Uvnitř je ještě dřevěná vestavba. Ta nabízí teplo, komfort, je tu kuchyně, sprchy a další zázemí pro členy sboru.

Středočeský boom
Dolní Jirčany spadají administrativně pod obec Psáry. Obě vesnice zažily prudký nárůst obyvatelstva – za posledních třicet let téměř na pětinásobek, teď tu žije čtyři a půl tisíce lidí. Přineslo to typické problémy přípražských satelitů: „Nebyla místa ve školách, chyběla přípojka na vodovod, kanalizace neměla dostatečnou kapacitu,“ vypočítává je starostka Vlasta Málková. To vše vedení řeší, na každou veřejnou stavbu je však nejprve potřeba získat pozemky, protože v 90. letech byla většina obecních rozprodána.
Nejprve obec vykoupila parcely pro novou školu Amos (2020). Proběhla architektonická soutěž, kde zvítězil návrh ateliéru SOA (původně RAP partners). Hasičská zbrojnice byla další krok, tady se soutěžilo o návrh za nejnižší cenu. I tady však ateliér SOA zvítězil. Projektovali tak i další stavbu, která stojí hned naproti a se školou tvoří harmonický celek; skupina staveb se stejným rukopisem tak vítá každého, kdo do obce přijíždí.
Architekti a architektky využili stavební systém, jaký se používá na průmyslové a skladové haly. Tvoří ho polykarbonát, vrstva izolace a znovu polykarbonát. Materiál je průsvitný, což vynikne hlavně při nočním osvětlení. Dojem transparentnosti ještě posilují velkoformátová okna, jimiž je vidět dovnitř.

Uvnitř velké budovy se nachází ještě menší vestavba: „K lehké a transparentní obálce hasičárny představuje pevný a kompaktní vestavek její protiváhu. Vodorovné i svislé konstrukce vestavku jsou z CLT panelů. Z interiérové strany jsou CLT panely přiznané, z vnější strany, směrem do garáže, jsou zatepleny dřevovláknitými deskami a obloženy borovicovou překližkou,“ popisují architekti v autorské zprávě.
Více k tématu
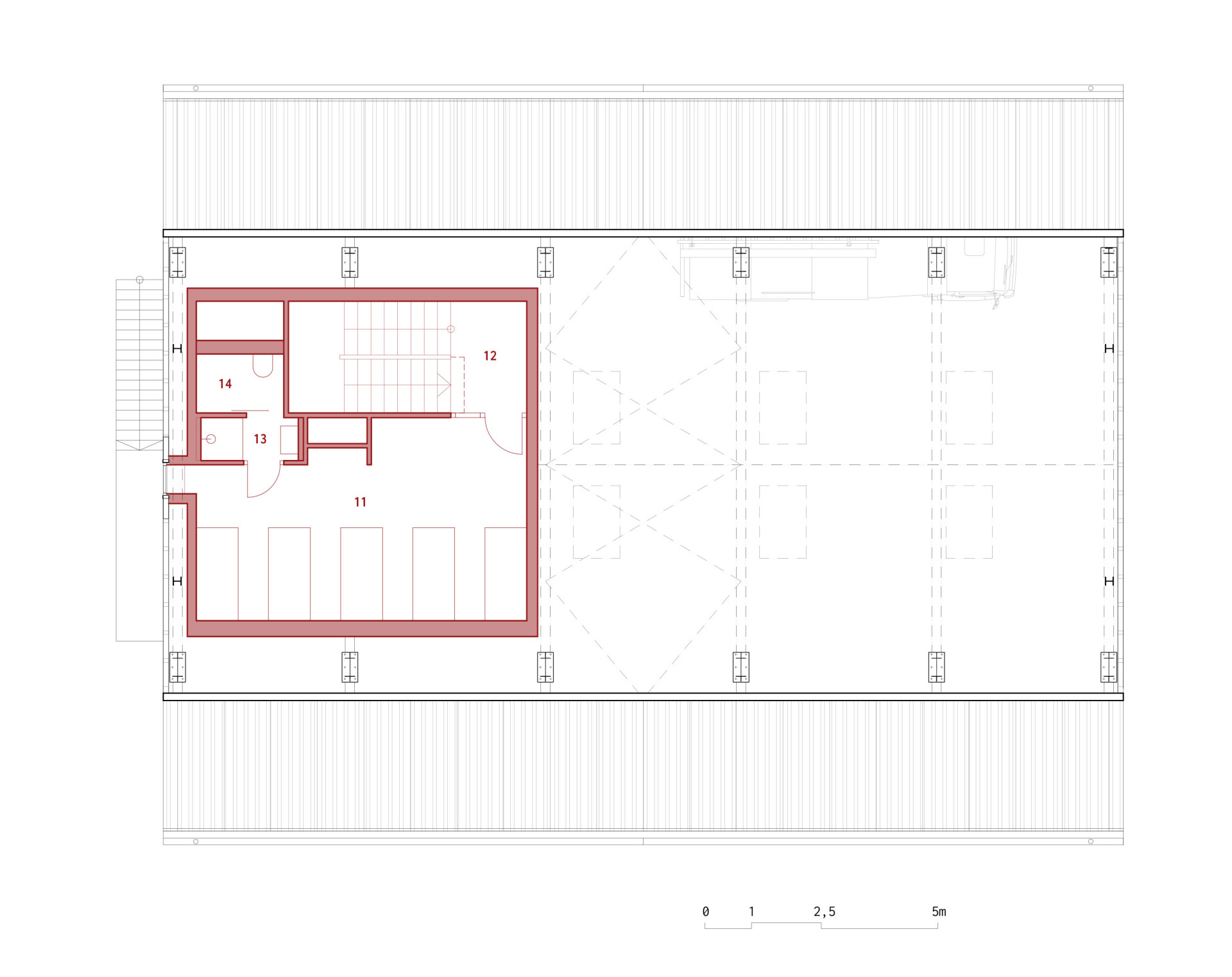
Vestavba má i podkroví, kde je sál a místnost pro odpočinek. V interiéru dřevo doplňují barvy - hnědé plechové schodiště a kuchyně a další doplňky v "hasičské červené." Celkově tu Sbor dobrovolných hasičů má komfortní zázemí: „Jsou to chlapi, kteří si to nesmírně zaslouží,“ říká starostka Málková.
- Ateliér: SOA architekti
- Autoři: Ondřej Píhrt, Štefan Šulek, Ondřej Laciga, Kateřina Luftová, Štěpán Tomš, Marie Hojná
- Země: Česká republika
- Město: Psáry
- Adresa: Ke Křížku, 252 44 Psáry
- Projekt: 2023
- Realizace: 2024
- Zastavěná plocha: 425 m²
- Hrubá podlahová plocha: 594 m²
- Užitná plocha: 429 m²
- Plocha pozemku: 1970 m²
- Náklady: 26,5 mil. CZK
- Investor: obec Psáry
- Fotograf: Alex Shoots Buildings
- Dodavatel CLT: A2 Timber
- Elektrotechnika: Jan Drašnar
- TZB: Václav Heis
- Generální dodavatel: BW – Stavitelství
- Kovové profily, ocelová konstrukce: SteelPro4
- Dodavatel hliníkových oken a dveří: Samat
- Střešní sendvičový panel: Kingspan
- Polykarbonátová fasáda: DANPALON
- Venkovní dlažba: BEST
- Obklady: Casalgrande Padana
- Vstupní garážová vrata: Jap-Jacina
- Vinylové podlahy: Tarkett
- Zásuvky a vypínače: ABB
- AL okna a dveře: Aluprof
- Interiérové dveře: HSE
- Informační a svolávací systém pro hasiče Fireport: FRP Services