
Architektura
/
interiér
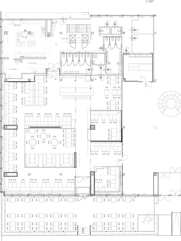
Náměstí mezi čtyřmi stěnami
Přestože Praha není Florencie, srdce jednoho místa na Vinohradech má tep živoucího náměstí po celý rok. Při návrhu interiéru restaurace hledali architekti inspiraci v základní stavební jednotce každého města – ve veřejném prostranství. Navodit atmosféru náměstí mezi čtyřmi stěnami nebyl lehký cíl, přesvědčivému výsledku však napomohlo prostorové řešení či výběr vhodných materiálů.
RAP partners s. r. o. , 4. 1. 2017
- Autoři: Ondřej Píhrt, Ondřej Laciga
- Ateliér: RAP partners s. r. o.
- Země: Česká republika
- Město: Praha 3 - Vinohrady
- Ulice, číslo: Vinohradská 2396/184
- PSČ: 130 00
- Datum projektu: 2013
- Realizace: 2014
- Užitná plocha: 613.50m2
- Foto ©: Ondřej Laciga