
Nová chata na podezdívce ze sedmdesátek. V Posázaví si ji postavili majitelé zahrádkáři
Novostavba od základu se zde postavit nesměla, a tak tu využili podezdívku ze staré chatky. Nad tou vyrostla moderní dřevostavba, ze které se otevírají výhledy do krajiny se vzrostlými stromy.
EARCH.CZ , 2. 10. 2024
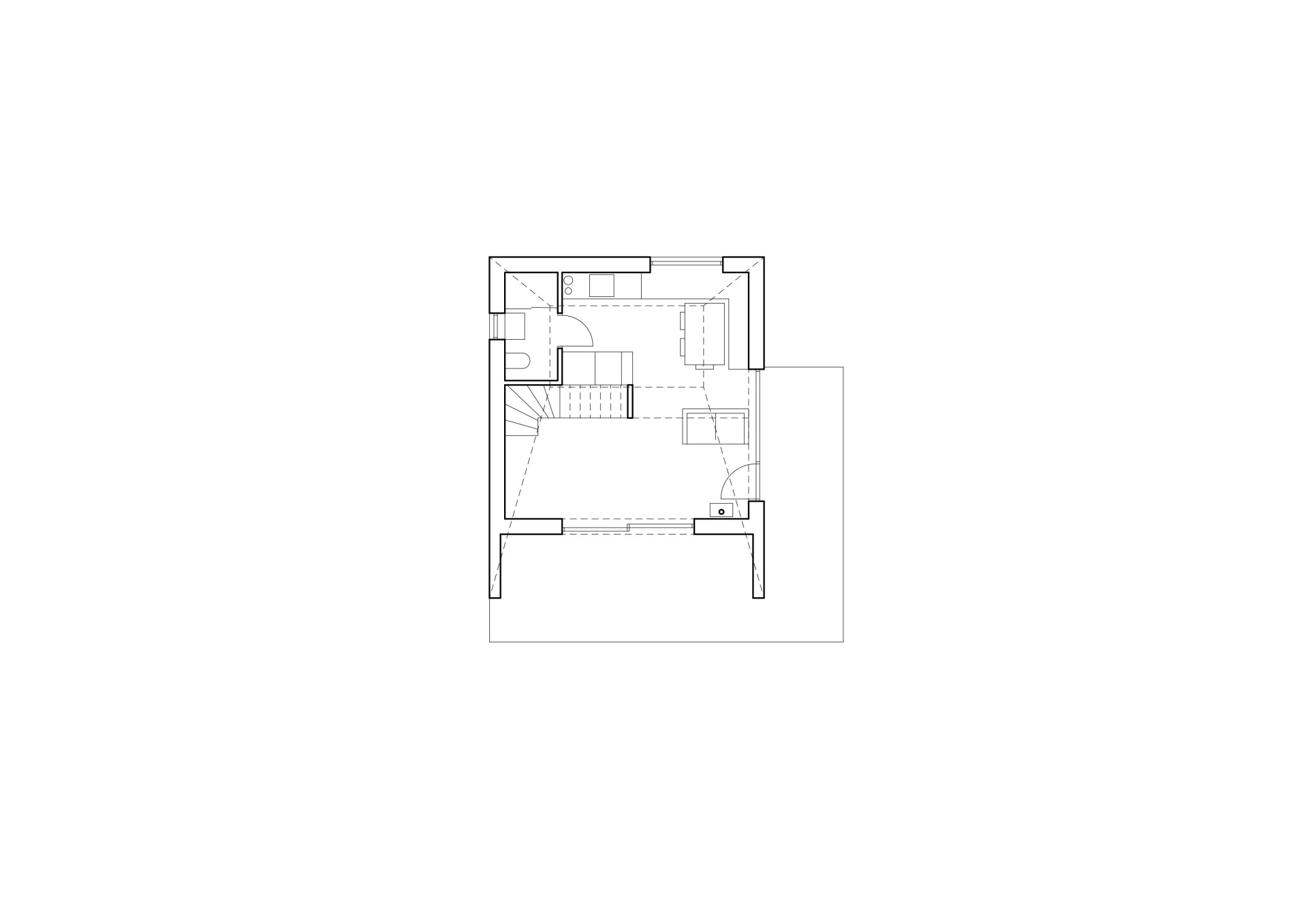
Vypadá sice malá, vešlo se toho do ní ale hodně. Obývací pokoj, kuchyně, koupelna, ložnice a má i sklep. Všechno je navíc prostorné. Zastavěná plocha chaty v Posázaví je jenom 46 metrů čtverečních. Užitná plocha je ovšem větší, ta má čtverečních metrů asi 80. Je tomu tak díky patru, které ale zvenčí není téměř vidět.
Chata navržená architektem Martinem Hajným má vysokou asymetrickou střechu, pod kterou je umístěná ložnice. Zvenčí ale podkroví jako obytné nevypadá, střecha po svém obvodu totiž nemá žádná okna. Tmavou kobkou ložnice přesto není, světlo do ní přivádějí světlíky. Na střeše jsou umístěné tak, že na ně ze země nedohlédnete.

Celkový vzhled a taky výška stavby bylo totiž velké téma. Úřady ani sousedé nechtěli, aby se toho na místě moc měnilo, hlavně co se hmoty chaty týče. Původně tady stála malá jednopodlažní chatka, ze které si ta dnešní nechala kamennou podezdívku. Kompletní novostavba nebyla povolena.
Předešlá chata, která pocházela ze 70. let, ale byla dle architekta už zchátralá. „Do svého útočiště před městským ruchem se velmi těšili, a dokonce absolvovali kurz zahradničení, ale problémem byla stavba ve velmi špatném technickém stavu. Navíc nevyhovovala ani dispozičně, protože investoři si přáli rozšířit přízemní místnost o podkrovní ložnici,“ popisuje to Martin Hajný. A tak se začala hledat cesta – taková, na kterou by přistoupili všichni, majitelé, sousedé i úřady.

Objekt se nakonec podařilo rozšířit právě patrem, předešlá chatka byla jen jednopodlažní. Příliš do výšky se ale taky jít nesmělo, maximální povolená výška byla 7,7 metru. Všechno se vešlo jen tak tak, lehce asymetrický tvar chaty se seříznutou střechou v místě světlíků tedy není samoúčelný. Vyrovnává se s požadavkem na maximální výšku a současně se snaží reagovat na tradiční chatkové tvarosloví.
Hlavní konstrukce současné chaty je řešená jako sloupková dřevostavba (tj. systém tvořený dřevěným rámovým skeletem z hranolů) na železobetonové desce. „Střecha i fasáda jsou opláštěny trapézovým plechem, bezúdržbovým materiálem s dlouhou životností, který svým tvarem připomíná dřevěné laťky,“ říká k materiálovému řešení chaty architekt.
Více k tématu
Barva pláště byla zvolena antracitová, má stavbě pomoci splynout s okolím se vzrostlými stromy. Snad se nebude na slunci moc přehřívat. Martin Hajný k tomu říká, že by v chatě po celý rok mělo panovat příjemné klima. Bude se prý dobře větrat, díky střešním světlíkům tady funguje komínový efekt.
Interiéry s vybavením jsou pak laděné do dřeva, působí to „chatařsky“. Více méně všechno je z borovicové překližky – kuchyně, podhledy, skříně. Jednolitost materiálu rozbíjejí velké průhledy ven. Chata má na celkem třech svých stranách nějaké velké okno, tato okna jsou další výhodou novostavby, kterou by původní chata neposkytla.
- Autoři: Martin Hajný
- Ateliér: Atelier Hajný
- Spolupráce: Markéta Šornová
- Země: Česká republika
- Umístění projektu: Posázaví
- Projekt: 2020
- Realizace: 2024
- Zastavěná plocha: 46 m²
- Užitná plocha: 80 m²
- Hrubá podlahová plocha: 100 m²
- Plocha pozemku: 500 m²
- Fotograf: Radek Úlehla
- Světlíky CVP: Velux
- Plech: Lindab
- Židle: Ton
- Umyvadlo: Gravelli