
Nový dům od Ateliéru 111 architekti se inspiruje podobou tradičních jihočeských stavení
Ateliér 111 architekti chce svým rodinným domem na jihu Čech ukázat, jak se dá stavět efektivně, současně, a navíc s respektem k prostředí. „Obyčejný dům“ se proto za nic neschovává, dává na odiv svou archetypální formu a svírá soukromý ústřední dvůr.
Adéla Vaculíková , 21. 9. 2022
„Stavení v Dolním Miletíně je naší odpovědí, jak vstoupit současnou architekturou do prostředí jihočeské vesnice,“ říkají o své nedávno dokončené realizaci architekti Barbora a Jiří Wienzettlovi, kteří společně vedou Ateliér 111 architekti.
Nová zástavba rodinných domů na okrajích měst a vesnic, nebo přímo v satelitních obcích, kvalitami většinou zrovna neoplývá. Příkladů, nimiž se architekti snaží ukázat, že to jde i lépe, ale přibývá. Jednou takovou realizací je třeba i dřevostavba od Matěje Petránka, která stejně jako dům od Ateliéru 111 architekti řeší téma soukromí bez nutnosti tvořit hradby z plných plotů.
Více k tématu
Novostavba rodinného domu v Dolním Miletíně od Barbory a Jiřího Wienzettlových je střídmá, pádná a pro své okolí také velmi kontextuální – připomíná klasické jihočeské stavení. „Od začátku jsme věděli, že chceme vytvořit jednoduchý a velkorysý objem, který pojme všechny požadavky rodiny. Dům, který nebude potřebovat skrývat se před okolím, aby si vytvořil vlastní intimitu,“ popisují architekti.
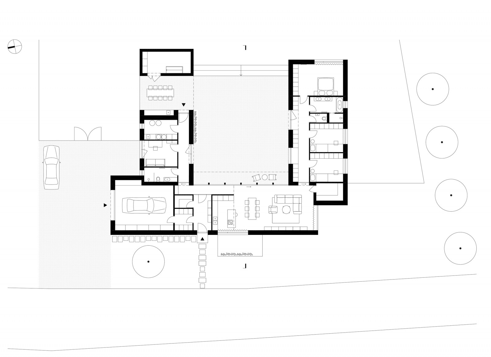
Střídmý archetypální objekt s bíle omítnutým zdivem a pálenou taškovou střechou stojí na půdoryse ve tvaru písmene U. Jednoduché a časem prověřené uspořádání vymezuje soukromý dvůr, do kterého vidí pouze obyvatelé domu. Architekti ho nechali vydláždit a vytvořili tak velkou pobytovou plochu, která se přímo propojuje s venkovní kuchyní skrytou v jednom z bočních křídel domu.

Do dvora se dále obrací především hlavní obytné místnosti. V čele je to obývací pokoj s kuchyní, v bočních křídlech se zase uplatňují průhledy z chodeb, které zpřístupňují ložnice, dětské nebo hostinské pokoje a pracovnu. Hlavní ložnice situovaná v čele jednoho z bočních křídel se navíc do krajiny otevírá vlastním velkoformátovým oknem.
„Průčelí domu doplňuje charakter zástavby, nevzniká jen tvrdá hranice ‚moje za plotem‘ a to okolo,“ říkají autoři projektu. Hlavní průčelí domu je až minimalistické, nachází se zde pouze dveře a okno, kterým lze prohlédnout do obývacího pokoje a dále až do vydlážděného dvora. „Obyčejný dům“ od Barbory a Jiřího Wienzettlových v sobě skrývá také několik neobyčejných momentů. Prostřední křídlo se oproti dvěma bočním o něco posouvá a vytváří efektní, ale zároveň praktické příležitosti. Na jižní straně je to okno, které přivádí světlo do obývacího pokoje ještě z další světové strany, na severní zase vystrčená garáž, která se skrze odstavnou plochu napojuje na silnici.
Rodinný dům v Dolním Miletíně poblíž Českých Budějovic má velmi podobné parametry jako dřívější realizace téhož studia, a to rodinný dům v Praze-Jinonicích. Ačkoliv každá z novostaveb řeší odlišnou situaci, obě spojuje přirozené splynutí se staršími strukturami.

- Autoři: Barbora Weinzettlová, Jiří Weinzettl
- Ateliér: ateliér 111 architekti
- Země: Česká republika
- Město: Dolní Miletín
- Realizace: 2021