Dvojčata ze dřeva. Rodinný dům na Vysočině postavil architekt s přáteli svépomocí
V rodinném domě v Humpolci se můžete schovávat za perforované panely, uchýlit se do soukromého dvora nebo se těšit ze zcela otevřeného výhledu do zahrady. To vše za vůně dřeva.
Adéla Vaculíková , 26. 7. 2022
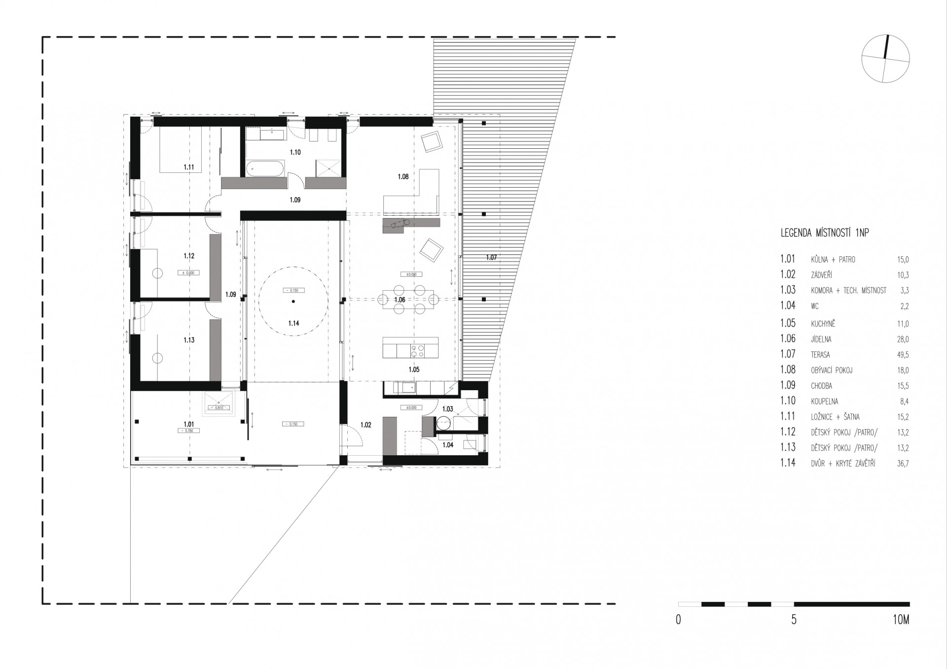
Rodinný dům od Matěje Petránka stojí na okraji Humpolce, konkrétně v jeho rozvojovém území. Ačkoliv se zde dnes nachází osamoceně, zanedlouho už tomu tak nebude. „Jednou v budoucnosti bude obestoupen blízkými sousedy. Proto je tvořen dvěma hmotami svírajícími malý dvorek,“ vysvětluje architekt.
Více k tématu
Konstrukčně se jedná o dřevostavbu. Dřevo pak stavbu charakterizuje jak v interiéru, tak v exteriéru – fasády tvoří originálně pojaté panely ze smrkových desek. „Panely byly CNC strojem vyzdobeny reliéfem, respektive perforací, v místech plné fasády,“ popisuje Matěj Petránek. Za touto fasádou se ve skutečnosti skrývají okna a vstup do vnitřního dvora. Vše však předstupují posuvné panely, které chrání před sluncem a zajišťují soukromí. Interiéry domu se poté otevírají do míst, kam není z ulice vidět. Zahradní průčelí domu tvoří velkoformátová posuvná okna, která zde úplně nahradila plné stěny.
Matěj Petránek dům nerozdělil jen po vizuální stránce, ale také z hlediska účelu a funkce. Každá hmota domu má svou vlastní náplň. V jedné části jsou společné obytné prostory, druhá je zase klidová. „Ve větší z hmot domu se nachází veliký, do krovu otevřený prostor kuchyně, jídelny a obývacího pokoje. Spojitý prostor je příčně dělený kuchyňským ostrůvkem, jídelním stolem a knihovnou s krbovými kamny. V menší z hmot se skrývá ložnice se šatnou a dva dětské pokoje s prostornými spacími patry. Ve spojovacím krčku s plochou zelenou střechou je koupelna domu,“ popisuje dispoziční řešení rodinného domu architekt Matěj Petránek, který se na realizaci stavby podílel společně s dalšími spolupracujícími osobami vlastníma rukama.

V exteriéru i interiéru domu se uchytila zelená barva. Na vnější posuvné panely barevně navazuje kuchyňská linka, jemně probarvená podlaha nebo interiérové dveře. Nedílnou roli ve výsledku hraje i bohatá sbírka pokojových rostlin majitelů rodinného domu. „Kromě rostlin v domě bydlí čtyřčlenná rodina a dvě kočky,“ dodává s nadsázkou Matěj Petránek.
- Autoři: Matěj Petránek
- Spolupráce: Vladimír Suchánek, Kateřina Vondráková, Karel Wheeler, Jiří Hustoles
- Země: Česká republika
- Město: Humpolec
- Projekt: 2020
- Realizace: 2021
- Plocha pozemku: 860 m²
- Zastavěná plocha: 205 m²
- Užitná plocha: 172,4 m²
- Obestavěný prostor: 762,5 m³