 
					
                    				Obchodní dům Prior nahradila Galerie Martin podle návrhu Ateliéru 8000
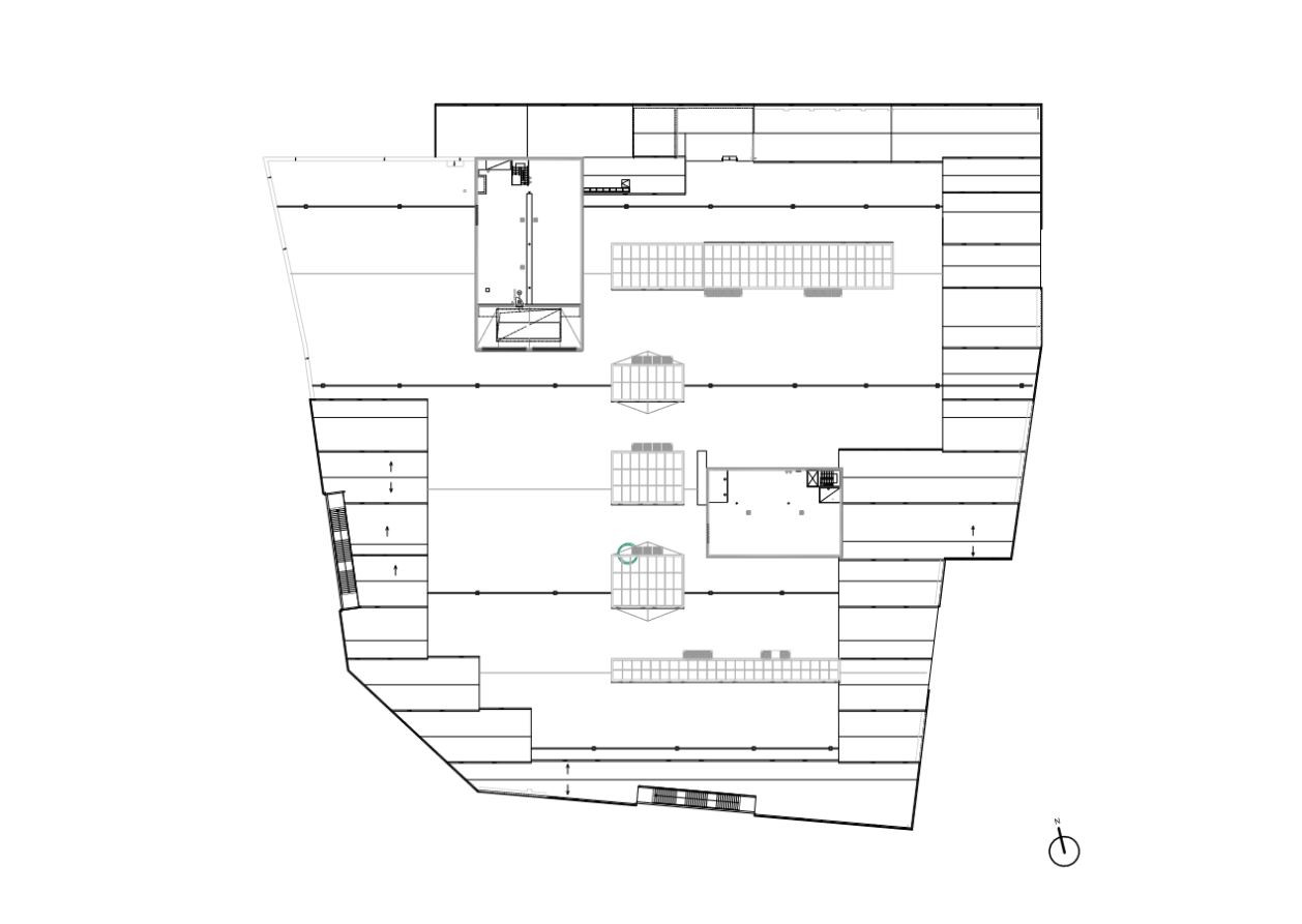
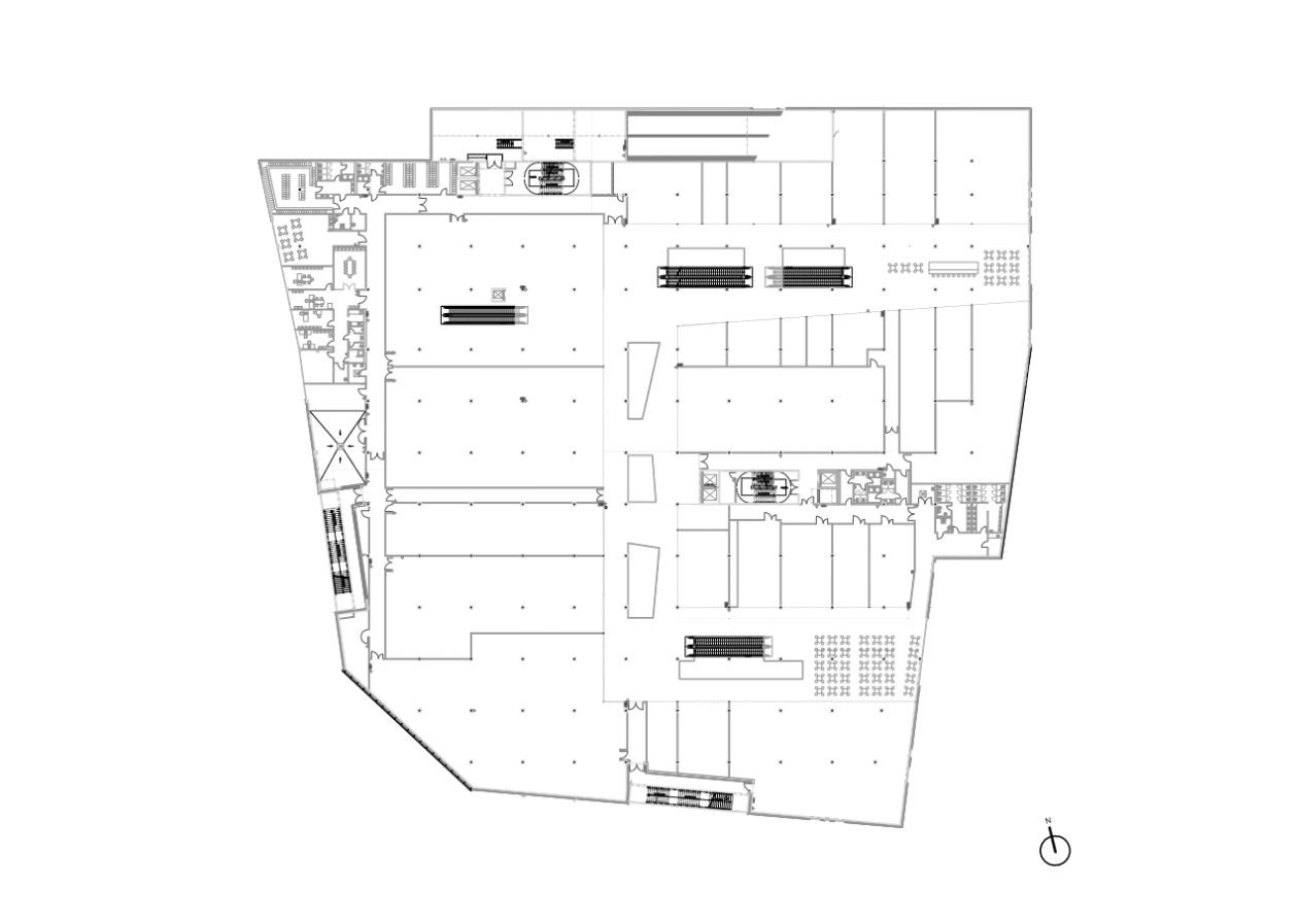
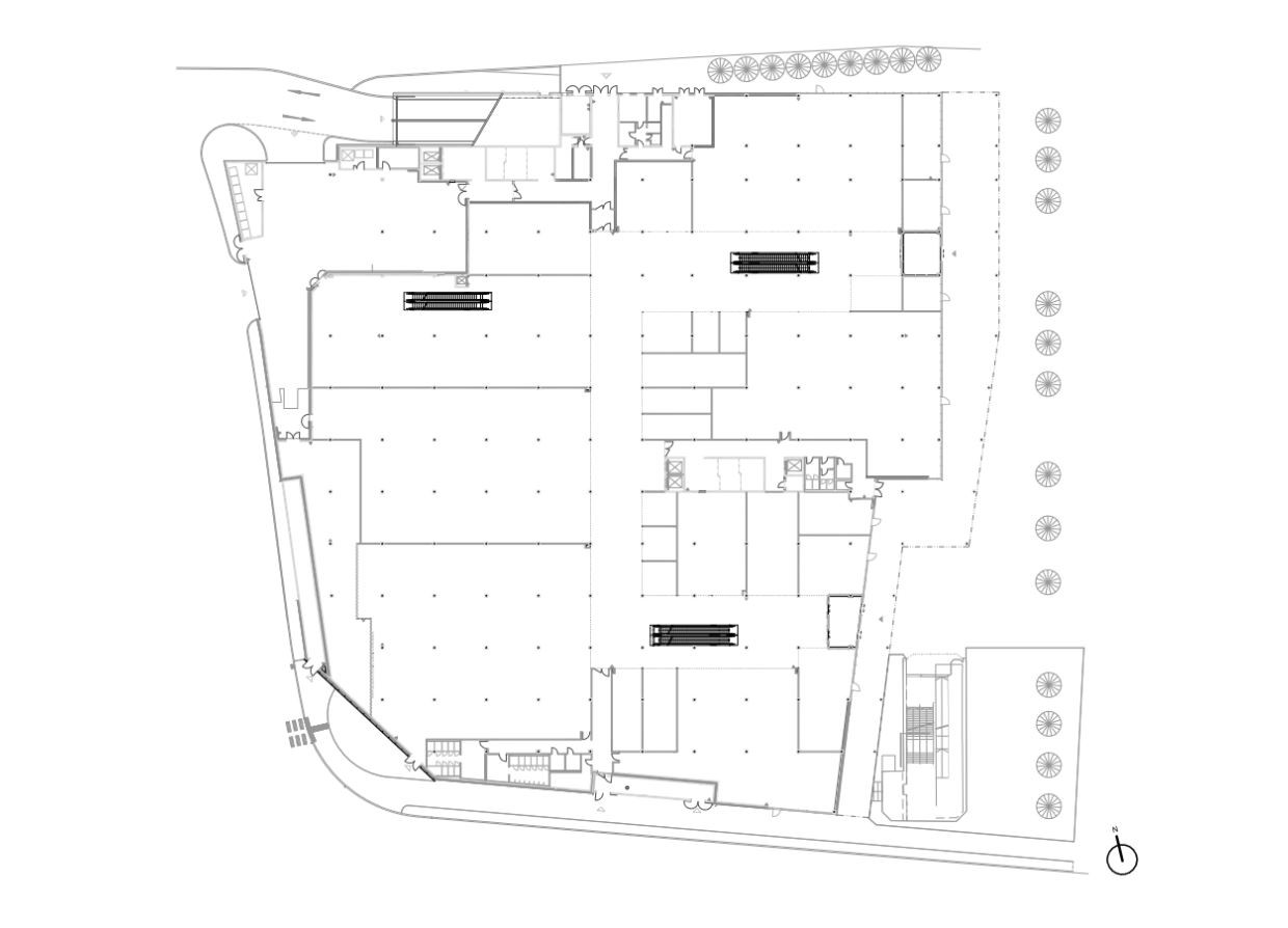
S cílem revitalizovat území bývalého obchodního domu Prior ve městě Martin na severozápadě Slovenska se investor obrátil na českobudějovické architektonické studio Atelier8000. To nahradilo původní budovu novou obchodní galerií Martin, která navázala na nedávno zrekonstruovaný prostor městského centra. Ve snaze zasadit stavbu co nejvíce do kontextu okolní městské struktury přizpůsobili architekti řešení objektu tvarosloví a měřítku okolní střešní krajiny. Nové obchodní centrum svým tvarem odráží štíty a sedlové střechy sousedních historických domů, které navzdory svým dominantním rozměrům nezatlačuje do pozadí.
A8000 , 10. 12. 2018
- Ateliér: ATELIER8000
- Země: Slovensko
- Generální dodavatel: Metrostav a.s.
- Město: Martin
- Ulice, číslo: Námestie SNP, 2
- Suma: 16 000 000.00
- Měna: EUR
- Datum projektu: 2012
- Realizace: 2017
- Užitná plocha: 33 555.00m2
- Zastavěná plocha: 10 316.00m2
- Plocha pozemku: 14 284.00m2
 
                             
                             
                             
                             
                             
                                 
            
         
            
         
            
         
            
         
            
         
            
         
            
         
            
         
            
         
            
         
                             
                             
                             
                             
                             
                             
                             
                             
                             
                             
                             
                             
                             
                             
                             
                             
                             
                             
    
	 
            		 
            		 
            		 
            		 
            		 
            		 
            		 
            		 
                     
                     
            		 
            		 
            		 
            		 
            		 
                     
					 
                                                                                                             
                                                         
                                                         
                                                                                                             
                                                         
                                                         
				 
				 
				 
				 
				 
				 
				 
				 
				 
				 
				 
				 
				 
				 
				 
				 
				 
				 
				 
				 
				 
				 
				