Pařížská hra fasád
Nenápadně nápadná, netradičně tradiční, uprostřed pařížské haussmannovské zástavby poutá pozornost každého kolemjdoucího. Před pár měsíci dokončená novostavba rozmazává limity mezi architekturou a jejím obrazem.
Karolína Munková , 11. 5. 2017
Jaká je obytná budova postavená v proluce obklopené historickou zástavbou? Jistě není pochyb o tom, že se jedná o architekturu současnou, přestože první vizuální dojem nás může zmást. Tento důvtipný koncept reaguje na mnohdy přehnané urbanistické předpisy a stává se poznávacím prvkem stavby.
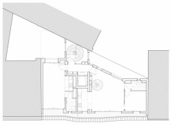
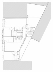
Objekt se nachází v centru Paříže, pár ulic od katedrály Sacre-Coeur. Díky značné členitosti této parcely si projekt vyžádal netradiční řešení. Architekti, i přes relativně málo prostoru, zvládli do budovy vklínit dva světelné tubusy, které tvoří příjemně provzdušněné místnosti plné světla. Těchto kvalit dosahuje i přístupové schodiště. Na jeho kovových prvcích se odráží přírodní světlo rozptylované skrze obvodové zdi za skleněných dlaždic. Technické zázemí je šikovně schováno ve vstupní chodbě za šedé keramické tabule, odkud dále můžeme projít na společný dvorek.
V každém patře je ze schodiště přístup do malé chodby, z níž se vstupuje do bytových jednotek. Na každém patře jsou maximálně dvě. Celkem objekt disponuje 12ti byty různých velikostí. Nechybí zde ani byt mezonetový, který zabírá poslední dvě patra a nabízí úchvatné výhledy na již zmiňovanou katedrálu. Při pohledu z ulice je mezonet důmyslně schován za prvky fasády.
Fasáda objektu navazuje na linii fasád sousedních domů, které byly většinou postaveny v druhé polovině 19. století za vlády Napoleona III. V té době byla pod taktovkou architekta George Eugéna Haussmanna asanována a přestavěna významná část Paříže. Rue Championnet , ulice, kde se stavba nachází, tak disponuje řadou typických, autenticky vypadajících Haussmannovských fasád. Na ty se architekti rozhodli navázat a aplikovat jejich prvky na fasádu svého projektu, doslovně a s lehkou dávkou ironie.
Fasáda je vytvořena z pixelizovaného obrazu reprodukovaného na tabule, které oblékají budovu do pomyslného pláště. Tento obraz je složen z kódů Haussmannovské ulice a zobrazuje tak fasádu autentickou s okolními domy. Lesklé, odolné, potištěné panely propouštějící světlo jsou zafixovány na kovové konstrukci a ukrývají za sebou lodžie bytů. Pro větší přístup světla je s tabulemi možno manipulovat, čímž se podoba budovy kontinuálně mění a dovoluje kolemjdoucím nahlédnout pod její slupku. Ta není precizně zarovnána s uliční linií, jakoby se dmula do prostorů města, deformovala se, nadýmala se, chtíc zabírat maximum místa a nabídnout ho svým obyvatelům. Stavba příjemně oživuje zdejší zástavbu a za svoji zdánlivě uzavřenou maskou nabízí kvality vzdušných a světlých prostor.
- Autoři: Karine Chantier, Thomas Corbasson
- Ateliér: Chartier-Corbasson architectes
- Spolupráce: Luca Muratorio, Michelle Ramirez, Emmanuel Leroy
- Země: Francie
- Realizace: 2017
- Město: Paříž
- Ulice, číslo: 85 rue Championnet
- Suma: 2 100 000.00
- Měna: EUR
- Realizace: 2017
- Užitná plocha: 932.00m2
- Foto ©: Romain Meffre & Yves Marchand