
Architektura
/
rodinné domy
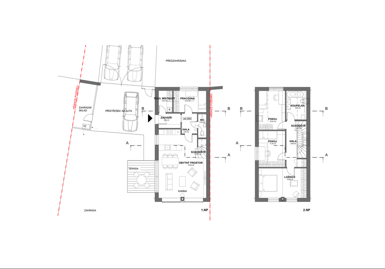
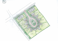
Pavel Hnilička navrhl kompaktní soubor rodinných domů s návsí
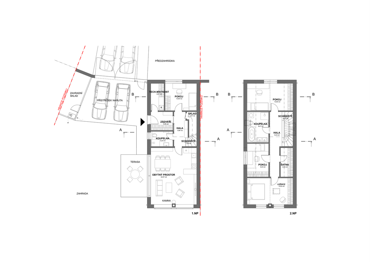
Ateliér Pavla Hniličky zpracoval řešení nového obytného souboru v Újezdě nad Lesy. Projekt se skládá z 12 rodinných domů rozdělených do tří rozměrových standardů. Součástí návrhu je také veřejné prostranství jako moderní obdoba návsi.
Pavel Hnilička Architects+Planners , 23. 3. 2018
- Autoři: Pavel Hnilička
- Ateliér: Pavel Hnilička Architects+Planners
- Země: Česká republika
- Město: Újezd nad Lesy
- Datum projektu: 2018