 
					
                    				Přestavba špejcharu na Českolipsku zachovává historii bývalé hospodářské usedlosti
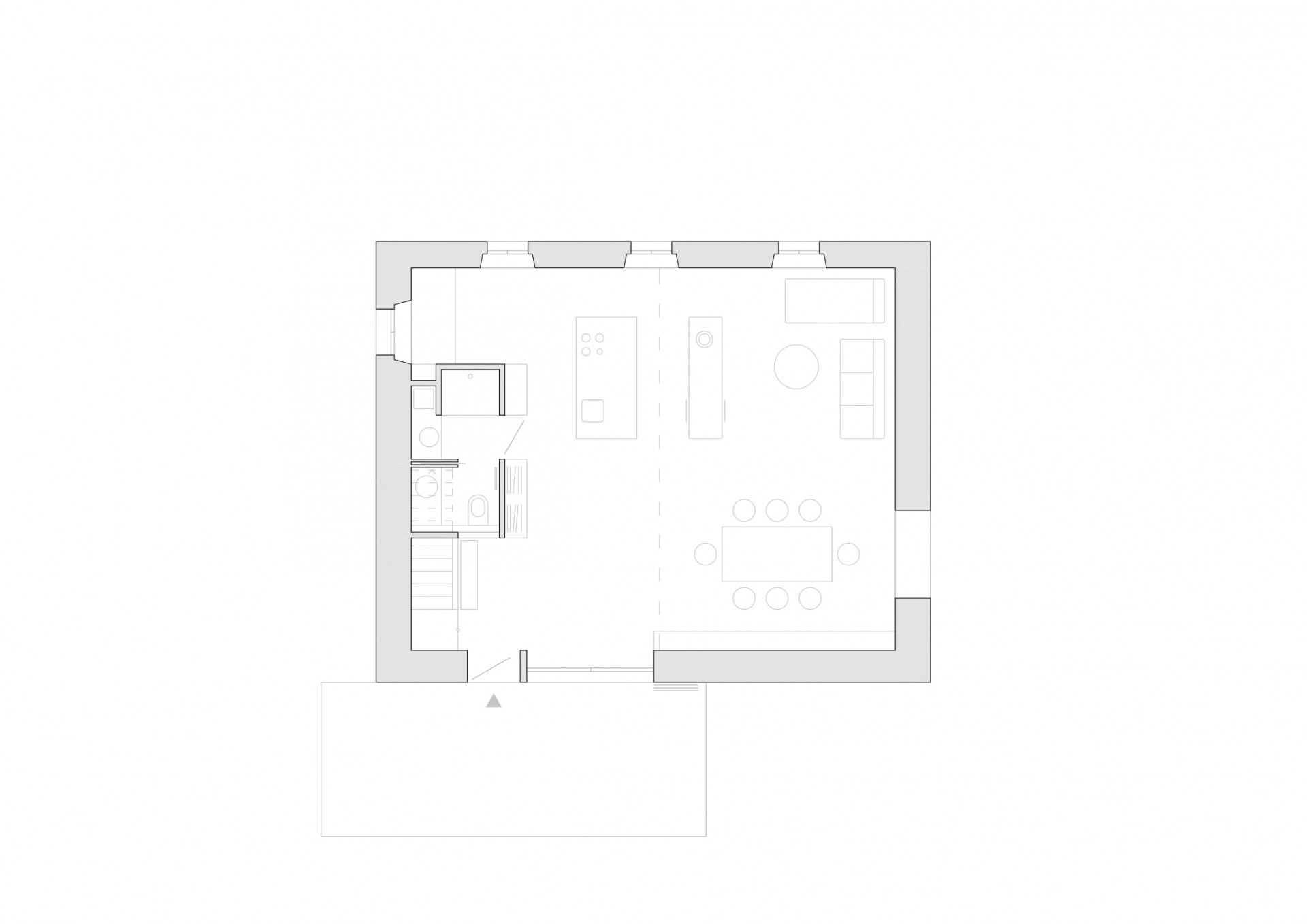
Na okraji jedné obce na Českolipsku bychom ještě před pár lety našli značně zchátralé budovy vysloužilé hospodářské usedlosti. První vlaštovkou celkové proměny usedlosti je nedávno dokončená přestavba původního špejcharu, objektu, kde se kdysi skladovalo zrní a sušil chmel. Architekt Jan Mareš z něj svým návrhem vytvořil místo pro rekreační pobyty nových majitelů, které ovšem ctí původní hospodářský charakter stavby. Srdcem objektu je velký otevřený obytný prostor s výhledem do všech světových stran. Historii objektu vypráví například také fasáda sjednocená vápenným zátěrem, kde byly ponechány stopy a vrstvy původních stavebních materiálů.
JMA , 31. 5. 2021
- Autoři: Jan Mareš
- Spolupráce: atelier FAR
- Země: Česká republika
- Datum projektu: 2013
- Realizace: 2018
- Užitná plocha: 147.20m2
- Zastavěná plocha: 81.50m2
 
                             
                             
                             
                             
                             
                                 
            
         
            
         
            
         
            
         
            
         
            
         
            
         
            
         
            
         
            
         
                             
                             
                             
                             
                             
                             
                             
                             
                             
                             
                             
                             
    
	 
            		 
            		 
            		 
            		 
            		 
            		 
            		 
            		 
                     
                     
                     
            		 
            		 
            		 
            		 
            		 
                     
					 
                                                                                                             
                                                         
                                                         
                                                                                                             
                                                         
                                                         
				 
				 
				 
				 
				 
				 
				 
				 
				 
				 
				 
				 
				 
				 
				 
				 
				