Projekt sídla firmy POHL cz od Rusina Frei Architekti uplatnil naplno výhody metodiky BIM
Nové hlavní sídlo české stavební firmy POHL cz od atelieru Rusina Frei architekti získalo v soutěži Stavba roku Středočeského kraje 2021 zvláštní cenu za inovativní řešení administrativního prostoru.
EARCH.CZ , 25. 5. 2022 / Advertorial
Čtyřpodlažní budovu koncipovali architekti jako vlajkovou loď firmy. Jejich návrh tak spojuje jak praktické nároky administrativního provozu, tak odpovídá požadavku vytvořit prostor pro vlastní prezentaci firmy ve svém oboru. Součástí zadání investora tak bylo mimo jiné použít k projektování software umožňující BIM modelování.
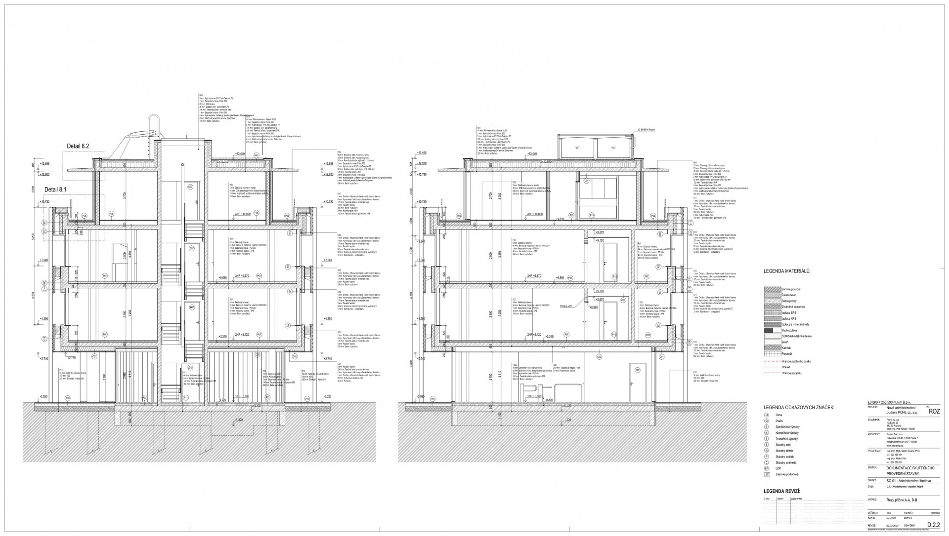
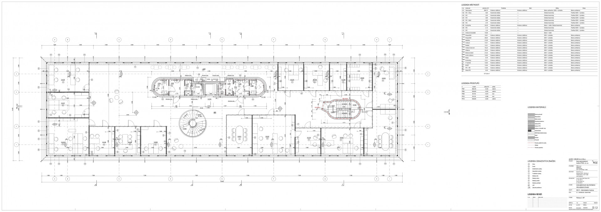
Základ metodiky BIM tvoří podrobný 3D model. Ten byl během celého procesu přípravy i realizace stavby efektivním nástrojem pro prezentaci projektu investorovi. Architekti tak mohli jednoduše zobrazit flexibilní prostorový koncept objektu, který umožňuje betonový skelet, pásová okna a stavebnicové příčky kanceláří. Koncept volné dispozice přízemí umožňuje průchod napříč celým objektem, vyšší dvě patra pak kombinují velkoprostorové otevřené kanceláře s uzavřenými buňkami. Nejvyšší ustupující patro s průběžnou terasou je určeno pro vedení firmy. Celou stavbu pak přes všechna tři podlaží propojuje točité ocelové schodiště.
Více k tématu
Funkční a zároveň vlídné
Stavba záměrně přebírá některé industriální prvky ze stavebnictví zaměřeného na podzemní stavby, což je jedna z oblastí činnosti firmy POHL cz.
Obálku budovy tvoří opláštění z vlnitých cortenových plechů odkazujících na štětovnice a pažení kolektorů, zaoblená jádra a fasádní pláště jsou pak zase připomínkou technologických zařízení. Ve stejném duchu řešili projektanti i vnitřní instalace, které jsou instalovány viditelně přiznané.
Zvláštní důraz kladli architekti na vyváženost mezi prostorovými možnostmi a příjemným pracovním prostředím. Průmyslový charakter okolí podpořili i výběrem nové vegetace a osázením hlubokých parapetů, terasy a střechy popínavými a převislými rostlinami v kontrastu ke cortenové fasádě.

BIM v projektu i na stavbě
Tvůrčí tým z Rusina Frei architektu využíval při návrhu a projektování Archicad Teamwork, což umožnilo souběžnou práci více architektů, kteří mohli současně pracovat na jednotlivých částech dokumentace v různých měřítkách, detailech a souvislostech. Během přípravy dokumentace pro provedení stavby autoři do BIMx modelu vkládali jednotlivé IFC modely profesantů ke vzájemné koordinaci. Díky tomu dokázali eliminovat kolize a snadněji komunikovali potřebné změny a úpravy.
Celý model byl složený z prvků označených vlastním ID kódem, na jejichž základě dokázali projektanti automaticky generovat tabulky prvků, skladeb a výrobků vč. popisů, rozměrů, 3D obrázků a množství. Díky tomu předešli chybějícím položkám ve výkazu výměr. 3D autoři návrhu využívali i pro přípravu stavby a naceňování jednotlivých částí – například fasády. Díky podrobnému modelu jejího konstrukčního řešení včetně detailů mohli pak poptávané dodavatelské firmě na prostorových axonometriích snadno vysvětlit požadavky zadání.

V průběhu realizace stavby měli na kontrolních dnech všichni k dispozici stále aktualizovaný BIM model přímo na stavbě. Bylo tak možné snadno prohlížet konkrétní část aktuálně stavěné konstrukce, detailu nebo spleť pohledových rozvodů na stropech a ve stísněných technických místnostech.
Program Twinmotion využili architekti i při finálním řešení interiéru, kdy překládali investorovi barevná řešení lazurovaných pohledových betonů nebo konzultovali rozložení nábytku v kancelářích a v openspace. Vznikly tak přesné 2D a 3D výkresy pro výrobu mobiliáře a dřevěných obkladů stěn.
- Ateliér: Rusina Frei architekti
- Autoři: Martin Frei, Martin Rusina, Markéta Poláčková
- Spolupráce: Jan Vlach, Adam Brich, Anna Cisariková
- Země: Česká republika
- Město: Roztoky
- Projekt: 2017
- Realizace: 2021
- Užitná plocha: 1721 m²
- Zastavěná plocha: 725 m²
- Obestavěný prostor: 5798 m³
- Investor: Pohl cz, a.s.
- Fotograf: Tomáš Souček
- Krajinářští architekti: PARTERO